Demolition UnderBehandling Other

Riving av naust og oppføring av kai og slipp i Haukanesvegen, Samnanger

📍 Haukanesvegen 120 , 5652 ÅRLAND

Nøkkelinfo

Sakstype
Riving
Bygningstype
Other
Bruksareal
111 m²
Kommune
Samnanger
Fylke
Vestland
Gnr / Bnr
24 / 310
Saksnummer
2024/1354
Fase
Under behandling

Om byggesaken

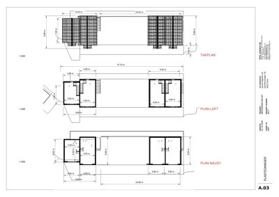
Prosjektet omfatter riving av et eksisterende naust under 70 m² på eiendommen Haukanesvegen, Gnr 24 Bnr 310, og oppføring av en ny kai på 111 m² og en slipp på 21,5 m². Kaien bygges i natursteinsmur med betongdekke på toppen for soliditet og varighet, tilpasset terrenget og eksisterende omgivelser. Slippen støpes i betong og tilpasses naboeiendommens slipp for å oppnå god helhet og minimalt inngrep. Kaien strekker seg 3-4 meter utenfor gjeldende byggegrense mot sjø, noe som krever dispensasjon. Tiltaket inkluderer også tilpasning til eksisterende trapp og sikrer trygg og hensiktsmessig atkomst for båt og bruk av naustene. Prosjektet er i naustområde og har fått flere uttalelser, hvorav noen anbefaler forsiktighet med hensyn til strandsonen og landskap.

Produkter og materialer

Trapper Utendørs trapp

Antall: 1

Eksisterende trapp tilpasses kaiens sør/østside, vurderes med rekkverk og snøfanger

Tilpasning av eksisterende trapp mot kai for trygg atkomst

Fasade Betongslipp

🧱 Betong

Slipp på 21,5 m² støpt i betong, tilpasset nabos slipp

Oppføring av betongslipp tilpasset eksisterende slipp hos nabo

Grunnarbeid Terrengtilpasning

Terrengtilpasning for kai og slipp, inkludert natursteinsmur og betongarbeid

Grunnarbeid for oppføring av kai og slipp, inkludert fundamentering og terrengtilpasning

Betong Betongdekke kai og slipp

🧱 Betong

Betongdekke på kai og slipp for solid og varig overflate

Betongarbeid for dekke på kai og slipp

Riving Riving av naust under 70 m²

Antall: 1

Eksisterende naust rives før oppføring av ny kai og slipp

Riving av eksisterende naust under 70 m² på eiendommen

Fasade Natursteinsmur kai

🧱 Naturstein og betong

Kai på 111 m² med natursteinsmur og betongdekke på toppen

Oppføring av kai i natursteinsmur med betongdekke tilpasset terreng og omgivelser

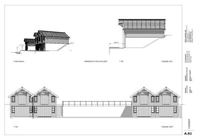
Fasader

Enebolig

Syd
Materiale
Tre
Taktype
Saltak
Vinduer
0
Dører
0
Balkonger
1
Synlige etasjer
2
Vest
Materiale
Tre
Taktype
Saltak
Vinduer
10
Dører
2
Synlige etasjer
2
Nord
Materiale
Tre
Taktype
Saltak
Vinduer
0
Dører
0
Balkonger
1
Synlige etasjer
2
Øst
Materiale
Tre
Taktype
Saltak
Vinduer
2
Dører
0
Synlige etasjer
1

Hendelser

13.04.2026 Vedrørande dykkar spørsmål om ny part i byggesak - svar
07.04.2026 Tilgang til byggesak
30.03.2026 Vedrørande ramme- og disp.søknad om kai - Eigedom 24/310 - Haukanesvegen
30.03.2026 Oversending av uttaler
27.03.2026 Uttale - dispensasjon - Samnanger 24/310 - Haukanesvegen - oppføring av brygge
26.03.2026 Uttale til søknad om dispensasjon - kai - gnr. 24 bnr. 310 mfl. - Samnanger kommune
26.03.2026 Fiskeridirektoratets uttalelse - søknad om oppføring av brygge gnr24 bnr310 Haukanesvegen - Samnanger kommune
09.03.2026 Oversending for uttale - Søknad om dispensasjon og rammeløyve brygge - GBNR 24/310 - Haukanesvegen - Samnanger kommune
27.01.2026 Stadfesting på mottatt søknad - GBNR 24/310 - Haukanesvegen - Ramme- og disp.søknad
19.12.2025 Rammesøknad - Nytt anlegg, Naust - nytt anlegg/konstruksjon,Riving av bygg - riving av bygning under 70 m2 - 24/310
04.08.2025 Notat om telefonsamtale
30.06.2025 Godkjenning - GBNR 34/304, 305 og 310 - Haukanesvegen - Søknad om igangsetting
18.06.2025 Søknad om igangsettelse GBNR 24/310