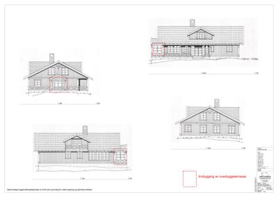
Facade
Fasadetegning som viser utsiden av en bygning (Uthus) med mål og detaljer.
1 / 30
Extension
Rammetillatelse
Other
Frittstående pergola med dispensasjon i Dalenveien 35B, Drammen
📍 Dalenveien 35B , 3031 DRAMMEN
Nøkkelinfo
- Sakstype
- Tilbygg
- Bygningstype
- Other
- Bruksareal
- 22 m²
- Boenheter
- 1
- Kommune
- Drammen
- Fylke
- Buskerud
- Gnr / Bnr
- 80 / 502
- Saksnummer
- 26/06232
- Fase
- Rammetillatelse
Om byggesaken
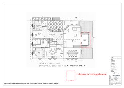
Frittstående pergola på 22 m² oppført på terrasse på berg, med flatt tak og tre som hovedmateriale. Pergolaen er en lav, åpen konstruksjon uten oppholdsrom eller vesentlig volum, plassert 0,8 meter fra nærmeste eiendomsgrense med dispensasjon fra regulert byggegrense. I tillegg er det innbygging av en overbygget terrasse til utestue på 8 m², som ikke øker bebygd areal. Pergolaen har god arkitektonisk utforming og visuelle kvaliteter, og tiltaket er etablert siden 2015 uten negative nabomerknader. Bygget er plassert på eiendom med eksisterende enebolig og garasje.
Produkter og materialer
Tømrer
Bygningskonstruksjon
🧱 Tre
Tømrerarbeid for pergola og innbygging av terrasse
Tømrerarbeid knyttet til oppføring av pergola og terrasseinnbygging
Terrasse
Innbygging av overbygget terrasse til utestue
Antall: 1
Innbygging av overbygget terrasse på 8 m² til utestue, uten økning i bebygd areal
Byggematerialer for innbygging av terrasse til utestue
Grunnarbeid
Fundamentering på berg
Antall: 1
Pergola oppført på terrasse på berg, ingen terrenginngrep
Fundamentering og underlag for pergola på berggrunn
Fasade
Pergola konstruksjon
🧱 Tre
Antall: 1
Frittstående pergola på 22 m², lav og åpen konstruksjon uten oppholdsrom, flatt tak med tegl takmateriale
Materialer og konstruksjon for pergola på terrasse, inkludert bærende treverk og tak
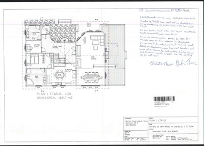
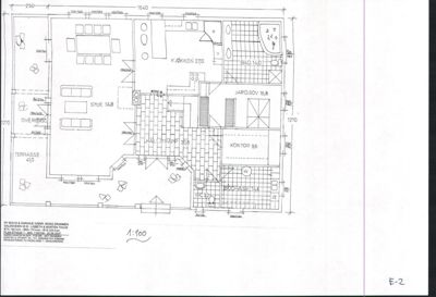
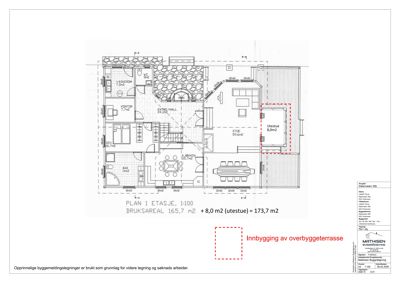
Plantegning
Enebolig 260.7 m²
Etasje 1 173.7 m²
| Rom | Areal | Vinduer | Dører |
|---|---|---|---|
| Vaskerom 101 | 7.5 m² | 0 | 1 |
| WC 102 | 3.0 m² | 0 | 1 |
| Kontor 103 | 7.7 m² | 1 | 1 |
| SDV 104 | 16.7 m² | 1 | 1 |
| Bad 105 | 14.0 m² | 0 | 1 |
| Kjøkken 106 | 25.7 m² | 1 | 2 |
| Stue 107 | 59.6 m² | 3 | 2 |
| Utestue 108 | 8.0 m² | 2 | 1 |
| Entre/Hall 109 | 24.1 m² | 0 | 3 |
| Sov. 110 | 0.0 m² | 1 | 1 |
| Entre 111 | 0.0 m² | 0 | 1 |
| Kontor 112 | 0.0 m² | 0 | 1 |
| Minikjøkken 113 | 0.0 m² | 0 | 0 |
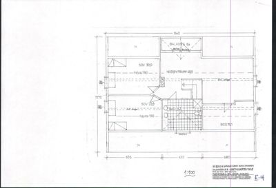
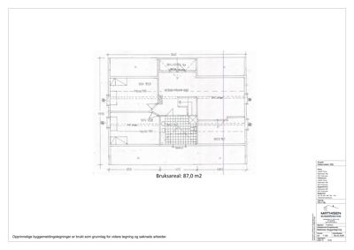
Etasje 2 87.0 m²
| Rom | Areal | Vinduer | Dører |
|---|---|---|---|
| Sov 201 | 22.0 m² | 1 | 1 |
| Sov 202 | 22.0 m² | 1 | 1 |
| Bad 203 | 14.2 m² | 0 | 1 |
| Bod 204 | 15.1 m² | 0 | 1 |
| Balkong 205 | 6.4 m² | 0 | 0 |
Ekst. Bygning 0.0 m²
Etasje -1 0.0 m²
| Rom | Areal | Vinduer | Dører |
|---|
Garasje 89.0 m²
Etasje 1 44.5 m²
| Rom | Areal | Vinduer | Dører |
|---|---|---|---|
| Garasje 445 | 44.5 m² | 0 | 1 |
| Garasje BRA 44,5 | 44.5 m² | 0 | 1 |
| Hems/Bod HEMS/BOD 44,5 | 44.5 m² | 0 | 0 |
Etasje 0 44.5 m²
| Rom | Areal | Vinduer | Dører |
|---|---|---|---|
| Hems/Bod 445 | 44.5 m² | 0 | 0 |
Fasader
Uthus
Ukjent
- Materiale
- Tre
- Taktype
- Flatt tak
- Høyde
- 2.9 m
- Mønehøyde
- 6.2 m
- Vinduer
- 0
- Dører
- 0
- Synlige etasjer
- 1
Nord
- Materiale
- Tre
- Taktype
- Flatt tak
- Takmat.
- Tegl
- Høyde
- 2.9 m
- Mønehøyde
- 2.9 m
- Vinduer
- 0
- Dører
- 0
- Synlige etasjer
- 1
Sør
- Materiale
- Tre
- Taktype
- Flatt tak
- Takmat.
- Tegl
- Høyde
- 2.9 m
- Mønehøyde
- 2.9 m
- Vinduer
- 0
- Dører
- 0
- Synlige etasjer
- 1
Øst
- Materiale
- Tre
- Taktype
- Flatt tak
- Takmat.
- Tegl
- Høyde
- 2.9 m
- Mønehøyde
- 2.9 m
- Vinduer
- 0
- Dører
- 0
- Synlige etasjer
- 1
Vest
- Materiale
- Tre
- Taktype
- Flatt tak
- Takmat.
- Tegl
- Høyde
- 2.9 m
- Mønehøyde
- 2.9 m
- Vinduer
- 0
- Dører
- 0
- Synlige etasjer
- 1
Hendelser
10.04.2026
Dalenveien 35B, Tillatelse til oppføring av frittstående pergola med dispensasjon fra regulert byggegrense
24.02.2026
Dalenveien 35B, melding om mottatt søknad
23.02.2026
Dalenveien 35B Søknad om tillatelse i ett trinn 80/502