SitePlan
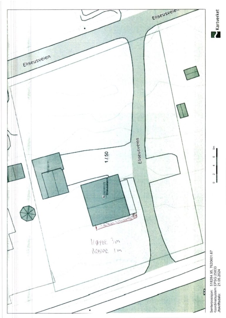
Situasjonsplan som viser tomtens beliggenhet i forhold til Eliseusveien, plassering av bygninger, og en skriftlig notat om høyde og bredde.
1 / 1
Extension
UnderBehandling
Other
Ny veranda på Eliseusveien 6, Sortland
📍 Eliseusveien 6 , 8406 SORTLAND
Nøkkelinfo
- Sakstype
- Tilbygg
- Bygningstype
- Other
- Bruksareal
- 3 m²
- Kommune
- Sortland - Suortá
- Fylke
- Nordland - Nordlánnda
- Gnr / Bnr
- 1 / 50
- Saksnummer
- 2024/3541
- Fase
- Under behandling
Om byggesaken
Ny veranda bygges på vestsiden av eksisterende bolig på Eliseusveien 6 i Sortland. Verandaen skal være inntil 1 meter bred og knyttes til eksisterende veranda, med tilknytning til verandadør for bedre bruk. Prosjektet omfatter en mindre tilbygging som utvider utearealet på fasaden. Byggematerialer og detaljer er ikke spesifisert, men det er et enkelt tilbygg som skal forbedre uteplassen.
Produkter og materialer
Tømrer
Bygging av veranda
Antall: 1
Tømrerarbeid for oppføring av veranda
Fasade
Veranda
Antall: 1
Veranda på ca. 1 meter bredde, tilknyttet eksisterende veranda og verandadør
Ny veranda som utvidelse av eksisterende uteplass på vestsiden av huset
Grunnarbeid
Fundamentering for veranda
Antall: 1
Grunnarbeid og fundamentering for ny veranda
Hendelser
15.04.2026
Etterlyser svar
10.12.2025
Etterlyser status på sak
30.09.2025
Etterlyser status på sak
29.08.2024
Gnr. 1, bnr. 50 - foreløpig svar på søknad
29.07.2024
Denne er rett Byggesøknad med signatur. Saksnr: 24/3541
25.07.2024
Byggesøknad veranda