Extension Ferdigattest Other

Oppføring av uteareal med scene og matvogn, Geitøyveien 6

📍 Geitøyveien 6 , 7284 MAUSUND

Nøkkelinfo

Sakstype
Tilbygg
Bygningstype
Other
Bruksareal
350 m²
Kommune
Frøya
Fylke
Trøndelag - Trööndelage
Gnr / Bnr
65 / 54
Saksnummer
2025/760
Fase
Ferdigattest

Om byggesaken

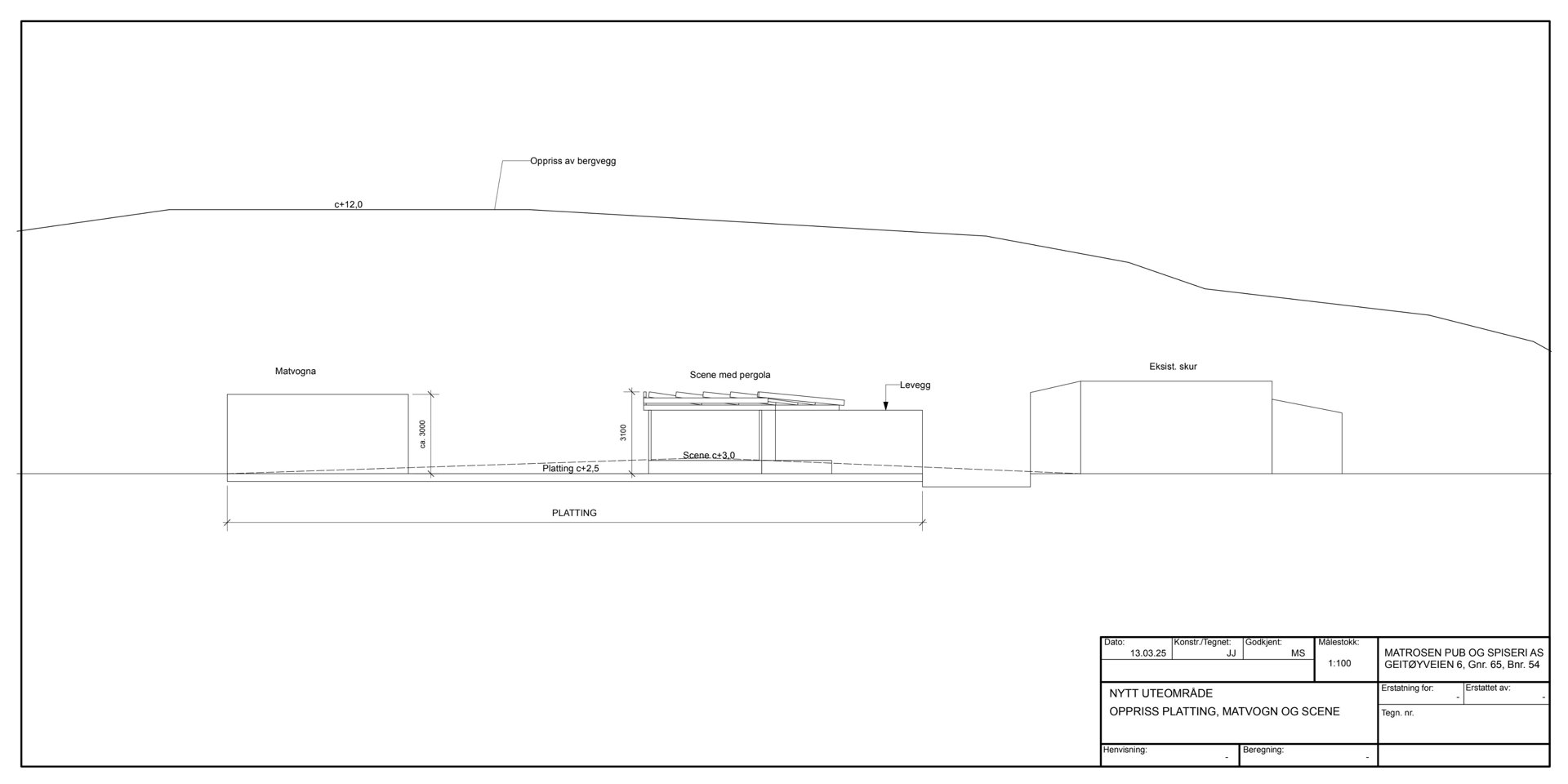
Ny opparbeidelse av uteareal på ca. 350 m² bestående av to plattinger på ca. 230 m² og 120 m², en liten opphøyd scene med pergola og mulighet for seilduk/presenning, samt plassering av en matvogn. Plattingene tilpasses terrenget med trapp og levegger i høyder 1,8 og 2,4 meter. Scene er opphøyd 50 cm over platting og har en gesimshøyde på ca. 3 meter. Matvognen er plassert i tilknytning til serveringsdriften på eiendommen og skal fungere som avlastning for kjøkken og bar for uteområdet. Tiltaket er tilpasset omkringliggende terreng og bergvegg, og er godkjent i henhold til kommuneplanens arealformål for fritids- og turistformål.

Produkter og materialer

Terrasse Scene med pergola

Antall: 1

Scene opphøyd 50 cm over platting med pergola og mulighet for seilduk/presenning

Opphøyd scene for serveringsareal og arrangementer

Grunnarbeid Terrengtilpasning

Tilpasning av plattinger under omkringliggende terreng og bergvegg

Grunnarbeid for opparbeidelse av plattinger og scene

Fasade Levegg

Antall: 3

Levegg i høyder 1,8 meter og 2,4 meter

Levegger for avskjerming rundt plattingene

Trapper Terrassetrapper

Trapper tilpasset terrenget mellom plattinger

Trapper for adkomst mellom plattinger og terreng

Terrasse Platting

Antall: 2

Plattinger på ca. 230 m² og 120 m², tilpasset terreng med trapp

Nye plattinger for uteservering og uteareal

Annet Matvogn

Antall: 1

Plassering av matvogn tilknyttet serveringsdrift

Matvogn for avlastning av kjøkken og bar for uteområdet

Fasader

Uthus

Nord
Høyde
3.0 m
Vinduer
0
Dører
1
Synlige etasjer
1

Skur

Nord
Vinduer
0
Dører
1
Synlige etasjer
1

Hendelser

09.04.2026 Gbnr 65/54 - Ferdigattest - uteareal/plattinger med en liten scene, plassering av matvogn - Godkjent
27.03.2026 søknad om ferdigattest
02.06.2025 Gbnr 65/54 - Midlertidig brukstillatelse - uteareal/plattinger med en liten Scene, plassering av matvogn - Godkjent
30.05.2025 Gbnr 65/54 - Midlertidig brukstillatelse - Geitøyveien 6 - Platting og scene mot vest
22.04.2025 Gbnr 65/54 - Ett-trinns søknad - uteareal/plattinger, plassering av matvogn - Godkjent
07.04.2025 Gbnr 65/54 - Bekreftelse på mottatt søknad - Ett-trinns søknad - uteareal/plattinger med en liten Scene, plassering av matvogn
01.04.2025 Gbnr 65/54 -Ett-trinns søknad - Geitøyveien 6 - uteareal/plattinger med en liten Scene, plassering av matvogn