Extension UnderBehandling Other

Oppføring av nye terrasser i 2. etasje, Kaasbøls vei 16 og 18

📍 Kaasbøls vei 16 og 18

Nøkkelinfo

Sakstype
Tilbygg
Bygningstype
Other
Bruksareal
30 m²
Kommune
Kristiansund
Fylke
Møre og Romsdal
Saksnummer
25/03824
Fase
Under behandling

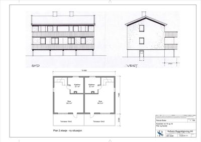
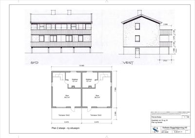
Om byggesaken

Nye terrasser etableres i 2. etasje på boligbygget i Kaasbøls vei 16 og 18. Terrassene plasseres direkte over eksisterende terrasser i 1. etasje og har samme størrelse, form og uttrykk. Bygget er et murbygg med eksisterende terrasser i trekonstruksjon med terrassegulv og rekkverk i tre. De nye terrassene oppføres i tilsvarende materialer og utforming, og tiltaket medfører ingen endring av byggets volum eller hoveduttrykk. Terrassene vil forbedre uteoppholdsarealet for leilighetene i 2. etasje uten å endre byggets karakter eller tilpasning til omgivelsene.

Produkter og materialer

Grunnarbeid Ingen nye grunnarbeider

Terrassene plasseres over eksisterende terrasser, ingen nye grunnarbeider nødvendig

Ingen nye grunnarbeider da terrassene bygges over eksisterende terrasser

Terrasse Terrasse i 2. etasje over eksisterende terrasse

🧱 Trekonstruksjon med terrassegulv og rekkverk i tre

Antall: 2

Terrassene har samme størrelse, form og uttrykk som eksisterende terrasser i 1. etasje

Nye terrasser i trekonstruksjon med terrassegulv og rekkverk i tre, tilpasset eksisterende arkitektur

Fasade Fasadeendring ved terrassepåbygg

🧱 Pusset murbygg

Ingen endring av byggets volum eller hoveduttrykk, naturlig videreføring av eksisterende fasade

Fasadeendring knyttet til terrassepåbygg i 2. etasje på murbygg

Tømrer Trekonstruksjon terrasse og rekkverk

🧱 Tre

Terrassekonstruksjon og rekkverk i tre, tilsvarende eksisterende terrasser

Tømrerarbeid for oppføring av terrasse og rekkverk i tre

Fasader

Enebolig

Syd
Materiale
Pusset
Taktype
Saltak
Vinduer
6
Dører
0
Balkonger
2
Synlige etasjer
2
Vest
Materiale
Pusset
Taktype
Saltak
Vinduer
2
Dører
1
Balkonger
2
Synlige etasjer
2
Sør
Materiale
Betong
Taktype
Saltak
Vinduer
8
Dører
2
Balkonger
2
Synlige etasjer
2

Hendelser

20.04.2026 25/03824-14 Kaasbøls vei 16 og 18, - oppdaterte tegninger
30.03.2026 25/03824-13 Kaasbøls vei 16 og 18, foreløpig tilbakemelding på supplering til søknad om oppføring av veranda
16.03.2026 25/03824-12 Kaasbøls vei 16 og 18 - supplerende opplysninger
30.09.2025 25/03824-11 Kaasbøls vei 16 og 18, tilbakemelding på søknad om bygging av veranda
18.09.2025 25/03824-10 Kaasbøls vei 16 og 18 - ber om tilbakemelding
19.08.2025 25/03824-9 Kaasbøls vei 16 og 18 - attest
07.07.2025 25/03824-8 Kaasbøls vei 16 og 18 - Spørsmål vedrørende bygging av veranda
27.06.2025 25/03824-7 Kaasbøls vei 16 og 18 - opplysninger om utdanning
25.06.2025 25/03824-6 Kaasbøls vei 16 og 18, tilbakemelding på spørsmål om sammenføyning av bruksenheter
24.06.2025 25/03824-5 Kaasbøls vei 16 og 18 - spørsmål om sammenslåing av nr