Extension Rammetillatelse Other

Endring av gjesteparkering og utomhusareal på Kirkebakken 51

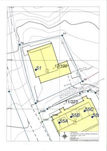
📍 Kirkebakken 51 , 3830 ULEFOSS

Nøkkelinfo

Sakstype
Tilbygg
Bygningstype
Other
Bruksareal
225 m²
Kommune
Nome
Fylke
Telemark
Gnr / Bnr
12 / 100
Saksnummer
21/2831
Fase
Rammetillatelse

Om byggesaken

Endring av utomhusareal på eiendommen Kirkebakken 51 (gnr 12, bnr 100) med etablering av 1 ny gjesteparkeringsplass og tilhørende manøvreringsareal. Endringen innebærer at en opprinnelig gjesteparkeringsplass for sameiet Kirkebakken 55 fjernes, og ny parkeringsløsning etableres på eiendommen 12/100. Arealet opparbeides i tråd med SINTEF-anbefalinger for parkering og manøvreringsareal, og det inngås tinglyst avtale om rettigheter for parkering og garasjeplasser for naboeiendommen 11/223. Endringen omfatter totalt ca. 225 m² utomhusareal og parkeringsareal, og sikrer tilfredsstillende parkeringsdekning for boligseksjonene i sameiet.

Produkter og materialer

Grunnarbeid Utomhusareal opparbeidelse

Opparbeidelse av uteareal for gjesteparkering og manøvreringsareal i henhold til SINTEF anbefalinger (Byggforskserien 312.130).

Opparbeidelse av uteareal for parkeringsplass og tilhørende manøvreringsareal.

Fasade Gjerde

Gjerde i grense mellom 12/100 og 12/197 skal ikke oppføres i sin helhet for å ivareta manøvreringsareal, eller avkortes ved brudd på avtale.

Gjerde som påvirker manøvreringsareal må tilpasses eller ikke oppføres.

Annet Tinglyst avtale om parkeringsrettigheter

Antall: 1

Tinglyst avtale som sikrer rett til bruk av 4 garasjeplasser og 1 gjesteparkeringsplass for eiendom 11/223 på eiendom 12/100.

Juridisk avtale for parkering og garasjeplasser mellom eiendommer.

Garasjeport Eksisterende garasjeport østligste garasje

Antall: 1

Manøvreringsareal for østligste garasjeplass ivaretas, garasjeport stopper ved gjerde.

Eksisterende garasjeport som påvirker manøvreringsareal.

Mur Rabatt mellom uteareal og adkomstvei

Antall: 1

Opprinnelig rabatt mellom eiendom 12/100 og adkomstvei til 12/197 etableres ikke.

Rabatt som ikke skal etableres i ny løsning.

Hendelser

16.04.2026 Endringstillatelse - utomhusareal/parkering - gbnr 12/100
25.03.2026 Gjesteparkering gbnr. 12/100
25.04.2025 Vedrørende gjesteparkeringsplasser for sameiet for Kirkebakken 55 A-D
25.04.2025 Parkeringsplasser og utomhusareal - gbnr 12/100