Extension UnderBehandling Other

Oppføring av 7 naust med slipp og mur på Langeneset

📍 Langeneset 74 , 5912 SEIM

Nøkkelinfo

Sakstype
Tilbygg
Bygningstype
Other
Bruksareal
249 m²
Kommune
Alver
Fylke
Vestland
Gnr / Bnr
60 / 3
Saksnummer
2024/2746
Fase
Under behandling

Om byggesaken

Prosjektet omfatter oppføring av 7 naust i rekke med samlet bruksareal på ca. 243 m² og felles bygd areal på ca. 257 m², plassert på eiendom gbnr 60/3 på Langeneset. Naustene har tilpasset takhøyde og tilbaketrukket plassering for god landskapstilpasning. Det etableres to felles slipp med tilhørende mur og betongdekker på totalt 249 m², som er nødvendig for båtopptrekk og sikring av naustene mot utvasking. Murene bygges i naturstein og betong med høyde opptil 1,3 meter. Det er opparbeidet gangsti for tilkomst til naustene. Tiltaket ligger i et regulert naustområde, men slipp og mur krever dispensasjon fra reguleringsplan og byggegrense mot sjø. Dispensasjon er gitt med vilkår, og tiltaket er underlagt krav fra Fiskeridirektoratet og Bergen Havn. Grunnarbeider er utført, og byggegruve er anlagt. Prosjektet inkluderer også nødvendige terrengtilpasninger og sikringstiltak i strandsonen.

Produkter og materialer

Betong Støpt platting og slipp

🧱 Betong

Antall: 249

To felles slipp og dekker i betong, samlet areal 249 m²

Betongslipp for båtopptrekk til 7 naust

Gangvei Gangsti

Antall: 1

Opparbeidet gangsti for tilkomst til naustene

Gangsti mellom naustene og til offentlig veg

Dører Naustdører

Antall: 7

Hver naust har 1 dør

Dører til naustene

Mur Naturstein og betongmur

🧱 Naturstein og betong

Mur med høyde fra 0 til 1,3 meter, tilpasset terreng og landskap

Murer for sikring av naust og slipp mot utvasking og terrengstabilisering

Fasade Naustfasader i tre

🧱 Tre

Antall: 7

Naust i rekke med tilpasset takvinkel og farge, tilbaketrukket plassering

Naustbygninger med trefasader og valmtak

Grunnarbeid Byggegruve og terrengarbeid

Grunnarbeider og byggegruve anlagt for tiltaket, uten behov for ytterligere terrenginngrep

Grunnarbeid for fundamentering av naust, mur og slipp

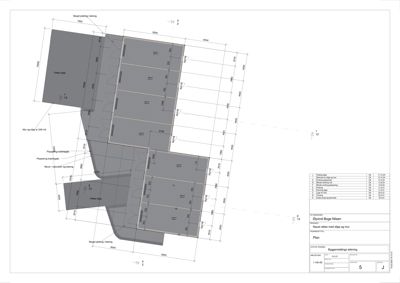
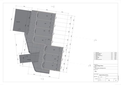
Plantegning

Enebolig 168.5 m²

Etasje 1 168.5 m²

Rom Areal Vinduer Dører
Stue 101 42.0 m² 2 2
Soverom 102 14.0 m² 1 1
Soverom 103 14.0 m² 1 1
Soverom 104 14.0 m² 1 1
Soverom 105 14.0 m² 1 1
Gang 106 12.0 m² 0 3
Bad 107 6.0 m² 0 1
Kjøkken 108 18.0 m² 1 2
Vaskerom 109 4.0 m² 0 1
Teknisk rom 110 4.5 m² 0 1

Naust rekke med slipp og mur 249.0 m²

Etasje 1 249.0 m²

Rom Areal Vinduer Dører
Felles slipp Felles slipp. 249.0 m² 0 0
Naust 1 Naust 1 34.6 m² 0 0
Naust 2 Naust 2 34.9 m² 0 0
Naust 3 Naust 3 34.9 m² 0 0
Naust 4 Naust 4 34.9 m² 0 0
Naust 5 Naust 5 34.6 m² 0 0
Naust 6 11 34.9 m² 0 0
Naust 7 12 34.6 m² 0 0
Naust 1 1 34.6 m² 0 1
Naust 2 2 34.9 m² 0 1
Naust 3 3 34.9 m² 0 1
Naust 4 4 34.9 m² 0 1
Naust 5 5 34.6 m² 0 1
Naust 6 6 34.9 m² 0 1
Naust 7 7 34.6 m² 0 1
Felles slipp 101 110.0 m² 0 0
Felles slipp Felles slipp 249.0 m² 0 0
Naust 6 Naust 6 34.5 m² 0 1
Naust 7 Naust 7 34.5 m² 0 1

Etasje 0 0.0 m²

Rom Areal Vinduer Dører
Naust 1 1 34.6 m² 0 1
Naust 2 2 34.9 m² 0 1
Naust 3 3 34.9 m² 0 1
Naust 4 4 34.9 m² 0 1
Naust 5 5 34.9 m² 0 1
Naust 6 6 34.9 m² 0 1
Naust 7 7 35.8 m² 0 1
Felles slipp 11 0.0 m² 0 0
Felles slipp 12 0.0 m² 0 0
Felles slipp 13 0.0 m² 0 0
Naust 6 8 34.9 m² 0 1
Naust 7 9 35.8 m² 0 1
Naust 1 Nautt 1 34.9 m² 0 1
Naust 2 Nautt 2 34.9 m² 0 1
Naust 3 Nautt 3 34.9 m² 0 1
Naust 4 Nautt 4 34.9 m² 0 1
Naust 5 Nautt 5 34.9 m² 0 1
Naust 6 Nautt 6 34.9 m² 0 1
Naust 7 Nautt 7 34.9 m² 0 1

Fasader

Slipp

Øst
Materiale
Tre
Taktype
Valmtak
Vinduer
0
Dører
7
Synlige etasjer
1
Nord
Materiale
Tre
Taktype
Flatt tak
Takmat.
Solcellepaneler
Vinduer
0
Dører
0
Synlige etasjer
1
Vest
Materiale
Tre
Taktype
Valmtak
Vinduer
0
Dører
0
Synlige etasjer
1
Sør
Materiale
Tre
Taktype
Flatt tak
Takmat.
Solcellepaneler
Vinduer
0
Dører
0
Synlige etasjer
1

Hendelser

13.04.2026 Ber om svar på videre saksgang etter klageavgjerd - gbnr. 60/3
10.04.2026 Klageavgjerd i byggjesak - gbnr. 60/3 - Langeneset - oppføring to felles slippar, mur og dekke til sju naust
01.08.2025 Oppnevning av settestatsforvalter - Alver kommune - gbnr. 60/3 - Langeneset - Slipp og mur til naust
28.07.2025 Ber om oppnemning av settestatsforvaltar - Dispensasjon - gbnr. 60/3 - Langeneset - slipp og mur til naust
18.07.2025 Melding om vedtak i Utval for areal, plan og miljø - gbnr. 60/3 Langeneset
23.06.2025 Oversender vedtak til endeleg klageavgjerd - Dispensasjon frå naustføremål på land, arealføremålet bruk og vern av sjø og frå byggegrense mot sjø for etablering av 2 felles slippar, mur og dekker til 7 naust på vilkår – gbnr 60/3 Langeneset
04.06.2025 Informasjon om politisk behandling - gbnr 60/3 Langeneset
16.05.2025 Oversending av kommentar til klage fra Statsforvalteren
14.05.2025 Vurdering av utsatt iverksetting - gbnr 60/3 Langeneset