Extension Rammetillatelse Other

Ny garasje, terrasse og svømmebasseng i Myrveien 32, Nesøya

📍 Myrveien 32 , 1397 NESØYA

Nøkkelinfo

Sakstype
Tilbygg
Bygningstype
Other
Bruksareal
340 m²
Kommune
Asker
Fylke
Akershus
Gnr / Bnr
40 / 652
Saksnummer
24/2642
Fase
Rammetillatelse

Om byggesaken

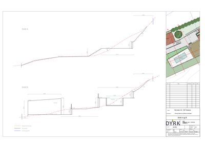
Ny frittstående dobbelgarasje på 50 m² med flatt grønt tak av sedum, tilpasset boligens arkitektur med mørkt treverk og gesimshøyde på 3,28 m. Garasjen har plass til biler og sykler, og er plassert lavt i terrenget med vegetasjonsbelte som skjerming mot naboer. Ny terrasse på ca. 60 m² med nedsenket svømmebasseng (3,3 x 7,05 m) bygges inn i skrånende terreng, støttet opp av betong- og skiferstøttemurer med maks høyde 1,5 m. Terrassen gir nye uteoppholdsarealer i bratt terreng og er plassert for å minimere sjenanse for naboer. Fasadeendring og arealreduksjon på eksisterende carport inngår også. Tiltaket inkluderer teknisk rom under terrassen for bassenget, overvannshåndtering på egen tomt, og beplantning for visuell tilpasning. Totalt bebygd areal etter tiltaket er ca. 340 m² på en tomt på 2271 m², med godkjent dispensasjon for overskridelser i garasjens størrelse, gesimshøyde og terrenginngrep.

Produkter og materialer

Garasjeport Dobbel garasjeport

Antall: 1

Garasje med flatt tak, gesimshøyde 3,28 m, grønt tak med sedum

Dobbel garasjeport til garasje på 50 m² med flatt grønt tak

Grunnarbeid Terrenginngrep og drenering

Fjell og løsmasser fjernes og gjenbrukes på tomten, overvann infiltreres på egen grunn, dreneringskum og rist er planlagt

Terrengarbeid for terrasse, basseng og garasje, inkl. overvannshåndtering

VVS Svømmebasseng teknisk rom

Antall: 1

Teknisk rom under terrassen med luke i gulvet, kjemifri elektrolysebehandling av vann, lukket system uten tilkobling til kommunalt vann og avløp

Teknisk rom for svømmebasseng med vannbehandling

Dører Ytterdør garasje

Antall: 2

Garasjedører og dør til sykkelbod

Dører til garasje og sykkelbod

Mur Støttemur

🧱 Betong og skifer

Støttemurer med maks høyde 1,5 m, plassert med avstand til nabogrense

Støttemurer for terrasse og basseng i skråning

Gulv Terrassegulv

Terrassegulv på ny terrasse rundt basseng

Gulv på terrasse for uteopphold

Utendørs Beplantning og vegetasjonsskjerming

🧱 Busker, hekk, tre

Vegetasjonsbelte mellom garasje og nabogrense, beplantning for visuell tilpasning av terrenginngrep

Skjerming og estetisk tilpasning av tiltak med beplantning

Terrasse Terrasse med svømmebasseng

🧱 Betong, skifer

Terrasse ca. 60 m² med nedsenket svømmebasseng 3,3 x 7,05 m, støttet opp av betong- og skiferstøttemurer

Terrasse med integrert svømmebasseng og støttemurer i bratt terreng

Fasade Tre kledning

🧱 Tre

Mørkt treverk, flatt tak, tilpasset boligens arkitektur

Fasade i treverk på garasje med flatt tak

Tak Grønt tak

🧱 Sedum

Grønt tak med sedum for fordrøyning av overvann

Tak på garasje med sedum for overvannshåndtering

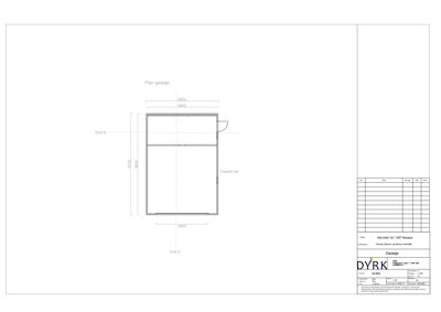
Plantegning

Garasje 31.5 m²

Etasje 0 31.5 m²

Rom Areal Vinduer Dører
Garasjerom 31.5 m² 0 1
Garasjerom 31.5 m² 0 1

Fasader

Garasje

Vest
Materiale
Tre
Taktype
Flatt tak
Høyde
3.3 m
Vinduer
0
Dører
1
Synlige etasjer
1
Øst
Materiale
Tre
Taktype
Flatt tak
Høyde
3.3 m
Vinduer
0
Dører
0
Synlige etasjer
1
Nord
Materiale
Tre
Taktype
Flatt tak
Høyde
3.3 m
Vinduer
0
Dører
0
Synlige etasjer
1
Sør
Materiale
Tre
Taktype
Flatt tak
Høyde
3.3 m
Vinduer
2
Dører
1
Synlige etasjer
1

Hendelser

13.04.2026 40/652 Myrveien 32 - Svar på spørsmål om endring av tiltak ved søknad om igangsettingstillatelse
18.03.2026 40/652 Myrveien 32 - Godkjent dispensasjon og rammetillatelse - Svar på kommunens brev av 280226
07.03.2025 40/652 Myrveien 32 - Godkjent dispensasjon og rammetillatelse - Terrasse, svømmebasseng og garasje
18.02.2025 40/652 Myrveien 32 - Redegjørelse
18.12.2024 40/652 Myrveien 32 - Supplering av søknad
23.10.2024 40/652 Myrveien 32 - Mangelbrev og varsel om avslag for deler av tiltaket
11.09.2024 40/652 - Informasjon om Myrveien 32
19.07.2024 40/652 Myrveien 32 - Bekreftelse på at vi har mottatt din søknad
17.07.2024 40/652 Myrveien 32 - Søknad om etablering av støttemurer, terrasse og svømmebasseng