Rendering
3D-visualisering (rendering) av en bygning sett fra en vinkel, som viser fasade, takform og balkonger.
1 / 8
Extension
Soeknad
Other
Tilbygg med terrasse og utestue på Nesevegen 93, Fitjar
📍 Nesevegen 93 , 5419 FITJAR
Nøkkelinfo
- Sakstype
- Tilbygg
- Bygningstype
- Other
- Bruksareal
- 48 m²
- Kommune
- Fitjar
- Fylke
- Vestland
- Gnr / Bnr
- 73 / 2
- Saksnummer
- 2026/398
- Fase
- Søknad
Om byggesaken
Ny tilbygg bestående av en terrasse på 32 m² og en utestue på 16 m² som bygges ut fra vegg på eksisterende bolighus på Nesevegen 93. Tilbygget inkluderer tak og bærende konstruksjoner som dimensjoneres av materialleverandører. Bygget plasseres innenfor byggegrenser på eiendommen og har trevegger med saltak som takform. Terrassen får overvann ført til terreng, og det er ikke planlagt innlagt vann i tilbyggene. Bygget er tilknyttet eksisterende boligstruktur med trevegger og saltak, i tråd med eksisterende fasade og materialbruk.
Produkter og materialer
Fasade
Trevegger
🧱 Tre
Tilbygg med trevegger i tråd med eksisterende boligfasade
Yttervegger i tre som matcher eksisterende bolig
Vinduer
Utestue vinduer
Vinduer i utestue, antall og type ikke spesifisert
Tømrer
Bærende konstruksjoner
Tak og bærende konstruksjoner dimensjoneres av materialleverandører
Bærende konstruksjoner for tak og tilbygg
Tak
Saltak
Saltak som takform på terrasse og utestue
Tak med saltak som tilpasses eksisterende bygg
Dører
Utvendig dør til utestue
Dør til utestue, type og materiale ikke spesifisert
VVS
Overvannshåndtering
Takvann/overvann føres til terreng, ingen innlagt vann
Overvannshåndtering for takvann fra terrasse og utestue
Grunnarbeid
Fundamentering
Fundamentering for terrasse og utestue iht. byggegrenser
Grunnarbeid og fundamentering for tilbygg
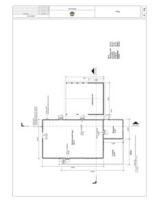
Plantegning
Carport 50.0 m²
Etasje 1 50.0 m²
| Rom | Areal | Vinduer | Dører |
|---|---|---|---|
| Carport | 50.0 m² | 0 | 1 |
Fasader
Hovedbygg
Ukjent
- Materiale
- Tre
- Taktype
- Saltak
- Vinduer
- 3
- Dører
- 1
- Synlige etasjer
- 2
Enebolig
Sør
- Materiale
- Tre
- Taktype
- Saltak
- Vinduer
- 5
- Dører
- 1
- Balkonger
- 1
- Synlige etasjer
- 2
Øst
- Materiale
- Tre
- Taktype
- Saltak
- Vinduer
- 2
- Dører
- 1
- Synlige etasjer
- 2
Nord
- Materiale
- Tre
- Taktype
- Saltak
- Vinduer
- 3
- Dører
- 1
- Synlige etasjer
- 2
Vest
- Materiale
- Tre
- Taktype
- Saltak
- Vinduer
- 8
- Dører
- 0
- Balkonger
- 1
- Synlige etasjer
- 2
Carport
Ukjent
- Materiale
- Tre
- Taktype
- Valmtak
- Vinduer
- 0
- Dører
- 0
- Synlige etasjer
- 1
Hendelser
15.04.2026
Stadfesting på motteken søknad - 73/2 Søknad om tiltak utan ansvarsrett - oppføring av terrasse og utestove
15.04.2026
73/2 Søknad om tiltak utan ansvarsrett - oppføring av terrasse og utestove