Rendering
3D-visualisering av et nytt ismaskinrom (nybygg) som skal tilknyttes en eksisterende bygning, inkludert lastebrygge og biloppkjørsel.
1 / 17
Extension
Rammetillatelse
Other
Tilbygg og islager på Sauøya 56, Henningsvær
📍 Sauøya 35 , 8312 HENNINGSVÆR
Nøkkelinfo
- Sakstype
- Tilbygg
- Bygningstype
- Other
- Bruksareal
- 58 m²
- Kommune
- Vågan
- Fylke
- Nordland - Nordlánnda
- Gnr / Bnr
- 5 / 4
- Saksnummer
- 25/3019
- Fase
- Rammetillatelse
Om byggesaken
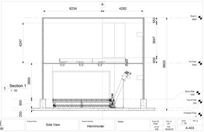
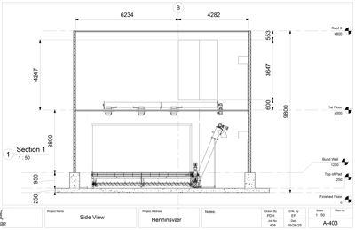
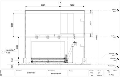
Nybygg av et mindre tilbygg i to etasjer på eksisterende næringsbygg på Sauøya 56, Henningsvær, med funksjon som islager og ismaskinrom. Bygget fundamenteres på fjell med bærende konstruksjoner i stål og betong, og fasader i grå sandwich-elementer for å harmonere med eksisterende bygg. 1. etasje brukes til islager, mens 2. etasje huser ismaskinen. Bygget har en grunnflate på ca. 58,3 m² og en gesimshøyde på 9,8 meter. Tiltaket inkluderer moderne, energieffektiv ismaskin uten farlige miljøgasser. Bygget plasseres ca. 15-20 meter fra sjøen, og det er gitt dispensasjon fra byggeforbud langs vann og vassdrag. Tiltaket reduserer tungtransport og forbedrer arbeidsforhold og miljøprofil for bedriften.
Produkter og materialer
Fasade
Sandwichelementer
🧱 Sandwichpaneler
Grå farge, tilpasset eksisterende bygg
Fasade- og veggelementer i sandwich for isolasjon og estetikk
Grunnarbeid
Utsikking og grunnarbeid
Utsikking og grunnarbeid for fundamentering på fjell
Grunnarbeid for fundamentering av tilbygg
Stål
Bærende stålkonstruksjoner
🧱 Stål
Bærende konstruksjoner i stål for tilbygg
Stålkonstruksjoner som bærende elementer i bygget
VVS
Ismaskin
Antall: 1
Moderne ismaskin uten farlige miljøgasser, energieffektiv
Ismaskin for produksjon av isbiter til lagring og eksport
Betong
Fundamentering på fjell
🧱 Betong
Fundamentering på fjell med betongkonstruksjoner
Fundamentering og bærende konstruksjoner i betong
Maling
Fasademaling
🧱 Grå maling
Grå farge på fasade for å harmonere med eksisterende bygg
Maling av fasadeelementer
Fasader
Nybygg
Ukjent
- Vinduer
- 0
- Dører
- 0
- Synlige etasjer
- 0
Hendelser
14.04.2026
Søknad om tillatelse til tiltak - tilbygg-/ islager - gbn 5/4 Sauøya 56, Henningsvær
13.04.2026
Dispensasjonsvedtak - Tilbygg-/ islager - gbn 5/4 Sauøya 56
23.03.2026
Kulturminnefaglig uttalelse - tilbygg- islager - gnr 5 bnr 4 i Vågan kommune - Sauøya 56
16.02.2026
Oversender søknad til uttalelse - tilbygg-/ islager - gbnr. 5/4 Sauøya 56 - Vågan kommune
12.02.2026
Oversender søknad til uttalelse - tilbygg-/ islager - gbn 5/4 Sauøya 56
06.01.2026
Søknad om dispensasjon fra kommuneplanens §1,15.
11.12.2025
Tilbakemelding om mangler - tilbygg-/ islager - gbn 5/4 Sauøya 56
24.11.2025
KOPI - Vi innvilger søknaden om samtykke etter automatisk saksbehandling
18.11.2025
Sauøya 56 Søknad om tillatelse i ett trinn 5/4