Photo
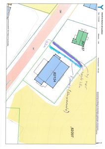
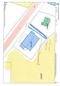
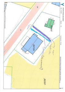
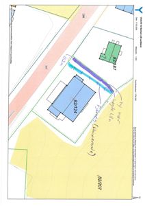
Fotografi av en tomt med overlappende grøntfargete arealer (muligens byggeområder) og et punktmerke som indikerer en spesifikk plassering.
1 / 7
Extension
UnderBehandling
Other
Tilbygg med natursteinsmur i Skålagato 3, Rosendal
📍 Skålagato 3 , 5470 ROSENDAL
Nøkkelinfo
- Sakstype
- Tilbygg
- Bygningstype
- Other
- Kommune
- Kvinnherad
- Fylke
- Vestland
- Gnr / Bnr
- 82 / 124
- Saksnummer
- 2026/2337
- Fase
- Under behandling
Om byggesaken
Ny natursteinsmur oppføres som tilbygg på eiendommen i Skålagato 3, Rosendal. Muren erstatter en gammel betong/leca mur og har en høyde som varierer fra 1,8 meter i nordenden til 0,2 meter mot fylkesvei 500. Lengden på muren er noe over 20 meter, og den plasseres i eiendomsgrensen mot naboeiendommen 82/187. Muren trappes ned i høyde mot veien og er tilpasset krav til byggegrense med dispensasjon. Prosjektet inkluderer riving av eksisterende mur og oppføring av ny natursteinsmur i naturstein, med tilhørende grunnarbeid og tilpasning til terreng.
Produkter og materialer
Tømrer
Arbeid knyttet til mur
Utførelse av murarbeid av ansvarlig entreprenør
Utførelse av murarbeid i henhold til prosjektering og ansvarserklæring
Grunnarbeid
Fundamentering for mur
Grunnarbeid for oppføring av natursteinsmur, inkludert riving av eksisterende mur
Riving av gammel mur og forberedelse av grunn for ny natursteinsmur
Mur
Natursteinsmur
🧱 Naturstein
Mur med høyde fra 1,8 m til 0,2 m, lengde over 20 m, trappet ned mot fylkesvei 500
Oppføring av ny natursteinsmur som erstatning for gammel betong/leca mur, plassert i eiendomsgrense mot naboeiendom
Hendelser
13.04.2026
Svar på søknad om dispensasjon fra byggegrense - flytting mur - fv. 500 - 82/124 - Kvinnherad kommune
16.03.2026
Ber om uttale - natursteinsmur - 82/124
16.03.2026
Mangelbrev - Eitt-trinns søknad - 82/124
10.03.2026
Søknad om tiltak - Eitt-trinns - 82/124
10.03.2026
Stadfesting på mottatt søknad - Eitt-trinns søknad - 82/124
18.02.2026
Svar på nabovarsel - 82/124 - Rosendal