Extension Soeknad Other

Tilbygg og fasadeendring på Sundsvegen 162, Sunde

📍 Sundsvegen 162 , 5450 SUNDE I SUNNHORDLAND

Nøkkelinfo

Sakstype
Tilbygg
Bygningstype
Other
Bruksareal
50 m²
Kommune
Kvinnherad
Fylke
Vestland
Gnr / Bnr
153 / 424
Saksnummer
2026/3339
Fase
Søknad

Om byggesaken

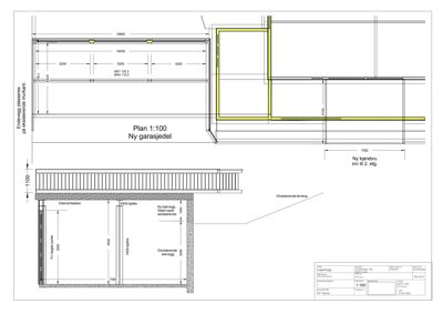
Ny lagerdel/garasje på eiendommen Sundsvegen 162 i Sunde, med tilbygg større enn 50 m² og omfattende fasadeendringer. Bygget er et to-etasjes lagerbygg med trekledning og kombinasjon av saltak og flatt tak. Tilbygget inkluderer ny garasjedel med kjørebru til andre etasje, støpt fundament oppå eksisterende murkant, og elementdekke med HEB-bjelker. Fasadene mot nord, sør, øst og vest får nye vinduer, balkonger og garasjeport, med materialer og detaljer vist i 2D og 3D tegninger. Prosjektet omfatter også bruk av kommunal vei og vegrett iht. tinglyst erklæring.

Produkter og materialer

Betong Elementdekke

🧱 Betong

Elementdekke med HEB-bjelker som bærekonstruksjon

Bærende elementdekke i tilbygg med stålbjelker

Fasade Trekledning

🧱 Tre

Ny fasadekledning i tre som vist i 2D og 3D fasadetegninger

Fasadeendringer med ny trekledning på alle fasader

Stål HEB-bjelker

🧱 Stål

HEB-bjelker brukt i bærende konstruksjon

Bærende stålbjelker i elementdekke og veggkonstruksjon

Grunnarbeid Støpt fundament

🧱 Betong

Støpt fundament oppå eksisterende murkant

Grunnarbeid med støpt fundament for tilbygg

Vinduer Fasadevindu

🧱 Tre eller aluminium (ikke spesifisert)

Antall: 15

Vinduer fordelt på fasader: 8 på vest, 4 på nord, 2 på øst, 1 på sør

Nye fasadevinduer i ulike fasader iht. tegninger

Balkong Balkong med rekkverk

Antall: 3

Balkonger på vest, øst og sørfasade

Nye balkonger med rekkverk iht. fasadetegninger

Tak Saltak og flatt tak

Saltak på nord- og sørfasade, flatt tak på vest- og østfasade

Taktekking med kombinasjon av saltak og flatt tak iht. tegninger

Dører Ytterdør

Antall: 1

Dør på nordfasade

Ny ytterdør på nordfasade

Tømrer Kjørebru til 2. etasje

Antall: 1

Kjørebru inn til andre etasje som vist på tegninger

Ny kjørebru for adkomst til 2. etasje i tilbygg

Garasjeport Garasjeport

Antall: 1

Garasjeport på vestfasade

Ny garasjeport i tilbyggets vestfasade

Fasader

Lagerbygg

Vest
Materiale
Tre
Taktype
Flatt tak
Vinduer
8
Dører
0
Balkonger
1
Synlige etasjer
2
Nord
Materiale
Tre
Taktype
Saltak
Vinduer
4
Dører
1
Synlige etasjer
2
Øst
Taktype
Flatt tak
Vinduer
2
Dører
0
Balkonger
1
Synlige etasjer
1
Sør
Taktype
Saltak
Vinduer
1
Dører
0
Balkonger
1
Synlige etasjer
2

Hendelser

15.04.2026 Stadfesting på mottatt søknad - Eitt-trinns søknad - 153/424
14.04.2026 Søknad om tiltak - Eitt-trinns - 153/424
01.04.2026 Svar på nabovarsel - tilbygg - 153/ 424 - Sundsvegen - Kvinnherad kommune