Extension Soeknad Other

Tilbygg og ventilasjonsanlegg på renseanlegg, Skarsmoen 13

📍 Tjøreskarv 34 , 5763 SKARE

Nøkkelinfo

Sakstype
Tilbygg
Bygningstype
Other
Bruksareal
21 m²
Kommune
Ullensvang
Fylke
Vestland
Gnr / Bnr
38 / 60
Saksnummer
2025/1518
Fase
Søknad

Om byggesaken

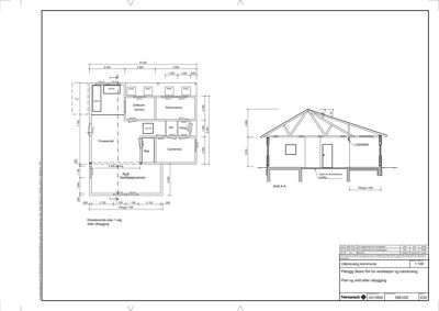
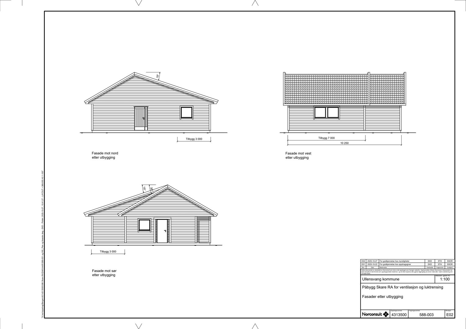
Ny påbygg på 21 m² BYA på eksisterende renseanlegg i Skarsmoen 13 med formål å installere et nytt ventilasjonsanlegg for luktfjerning og forbedret arbeidsmiljø. Tilbygget bygges i tre med isolerte vegger (150 mm mineralull) og tak (200 mm mineralull), utvendig liggende kledning, malt gips innvendig og takstein på taket. Takformen endres fra 30 til 19 grader over tilbygget. Fundamentering skjer på isolert ringmur og isolert betongplate. Innvendig romfordeling inkluderer driftsrom, personalrom, garderobe, prosesshall og nytt ventilasjonsrom. Ventilasjonsanlegget inkluderer et avansert to-trinns renseanlegg med UV/ozon og aktivt kull for effektiv luktfjerning, styrt via SD-anlegg. Bygget ligger innenfor asfaltert areal nær elva Opo, med dispensasjon for byggegrense og arealformål.

Produkter og materialer

Gulv Betongplate med overflate

Betongplate på grunn som gulv i tilbygget

Gulv i tilbygget

Betong Isolert ringmur og betongplate

🧱 Betong

Fundamentering på isolert ringmur og isolert betongplate på grunn

Fundamentering for tilbygget

Isolasjon Mineralull i vegger og tak

🧱 Mineralull

150 mm isolasjon i vegger, 200 mm i tak

Isolasjon for vegger og tak i tilbygget

Fasade Liggende kledning i tre

🧱 Tre

Utvendig liggende kledning, malt

Kledning for tilbyggets yttervegger

Dører Innvendige dører

Antall: 8

Dører til rom som driftsrom, personalrom, WC, garderobe, gang, blås, prosesshall og ventilasjonsrom

Innvendige dører i tilbygget

Ventilasjon Ventilasjonsanlegg med luktfjerningsenhet

Antall: 1

To-trinns renseanlegg med UV/ozon og aktivt kull (500 kg), levert av Lindum Clairs, med spylefunksjon og SD-styring

Nytt ventilasjons- og luktfjerningsanlegg for renseanlegget

Tak Saltak med takstein

🧱 Takstein

Takform endres fra 30 til 19 grader, takstein på taket

Nytt tak over tilbygget

Annet Maling innvendig

🧱 Maling

Malt gips innvendig i tilbygget

Innvendige veggoverflater i tilbygget

Plantegning

Påbygg Skare RA 102.5 m²

Etasje 1 102.5 m²

Rom Areal Vinduer Dører
Driftsrom (kontor) 101 29.0 m² 0 1
Personalrom 102 39.5 m² 0 1
WC 103 3.0 m² 0 1
Gang 104 3.0 m² 0 1
Garderobe 105 12.0 m² 0 1
Blås 106 3.0 m² 0 1
Prosesshall 107 21.0 m² 0 1
Nytt Ventilasjonsrom 108 15.0 m² 0 1

Fasader

Enebolig

Nord
Materiale
Tre
Taktype
Saltak
Vinduer
1
Dører
1
Synlige etasjer
1
Vest
Materiale
Tre
Taktype
Saltak
Vinduer
2
Dører
0
Synlige etasjer
1
Sør
Materiale
Tre
Taktype
Saltak
Vinduer
1
Dører
1
Synlige etasjer
1

Hendelser

16.04.2026 Oversender søknad om dispensasjon for uttale - Gnr 38, bnr 60 - Skarsmoen 13 - tilbygg/påbyggg