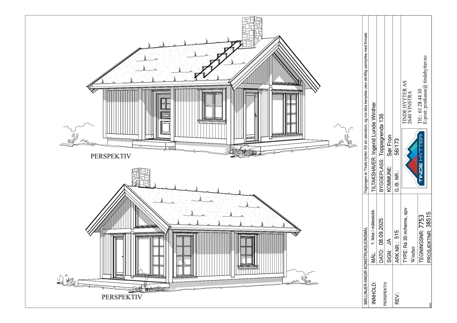
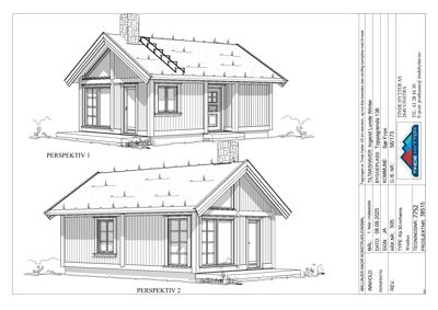
Rendering
Tegning med to perspektivtegninger (3D-visualiseringer) av en planlagt hytte, vist fra front og side.
1 / 15
Extension
Unknown
Other
Oppføring av to anneks
📍 Toppagrenda 136 , 2646 GÅLÅ
Nøkkelinfo
- Sakstype
- Tilbygg
- Bygningstype
- Other
- Kommune
- Sør-Fron
- Fylke
- Innlandet
- Gnr / Bnr
- 56 / 173
- Saksnummer
- 2025/964
- Fase
- Unknown
Om byggesaken
Saken gjelder søknad om tillatelse til oppføring av to anneks ved Toppagrenda 136. Saken inneholder planfaglig vurdering, tegninger for fasade og snitt, samt svar på mangelbrev knyttet til tiltaket.
Fasader
Enebolig
Nord
- Materiale
- Tre
- Taktype
- Flatt tak
- Vinduer
- 1
- Dører
- 1
- Synlige etasjer
- 1
Vest
- Materiale
- Tre
- Taktype
- Valmtak
- Vinduer
- 2
- Dører
- 1
- Synlige etasjer
- 1
Øst
- Materiale
- Tre
- Taktype
- Valmtak
- Vinduer
- 1
- Dører
- 0
- Synlige etasjer
- 1
Sør
- Materiale
- Tre
- Taktype
- Flatt tak
- Vinduer
- 2
- Dører
- 0
- Synlige etasjer
- 1
Hendelser
16.04.2026
Svar på e-post datert 09.04.2026 - Gnr/bnr 56/173 - Toppagrenda 136 - Anneks
09.04.2026
Svar vedrørende Gnr/bnr 56/173 – Toppagrenda 136- Winther
27.03.2026
Svar på e-post av 19.03.2026
20.03.2026
Spørsmål om redegjørelse 56/173
17.03.2026
Svar på e-post datert 11.03.2026
13.03.2026
Svar vedrørende planfaglig vurdering 56/173
06.03.2026
Vedrørende mangelbrev - Gnr/bnr 56/143 - Toppagrenda 136 - Anneks
05.03.2026
Svar vedrørende mangelbrev Gnr/bnr 56/173 - Toppagrenda 136 - Oppføring av 2 anneks
23.02.2026
Tilbakemelding om mangler - Gnr/bnr 56/173 - Toppagrenda 136 - Oppføring av 2 anneks
04.12.2025
Søknad om tillatelse til tiltak 56/173