Extension UnderBehandling Other

Riving og nyoppføring av anneks i Tverrdalsøyveien 56, Arendal

📍 Tverrdalsøyveien 56 , 4920 STAUBØ

Nøkkelinfo

Sakstype
Tilbygg
Bygningstype
Other
Bruksareal
28 m²
Kommune
Arendal
Fylke
Agder
Gnr / Bnr
74 / 247
Saksnummer
2026/2487
Fase
Under behandling

Om byggesaken

Nyoppføring av anneks/bod tilknyttet fritidsbolig på Tverrdalsøyveien 56 i Arendal kommune. Det eksisterende annekset og plattingen rives på grunn av dårlig teknisk stand og ugunstig plassering ved en bekk. Det nye annekset bygges med tilsvarende fotavtrykk (BYA 28 m², BRA 24,5 m²), men forskyves 1 meter bort fra nabogrense og bekk for bedre bygningskonstruksjon. Bygget får trepanel som fasademateriale, saltak og valmtak med tegl taktekking. Nytt anneks inneholder soverom, bod og et lite rom med WC/servant. Bygget tilpasses lokal byggeskikk og landskap, og oppgraderes til moderne byggestandard med tilknytning til vann- og avløpsanlegg. Tiltaket krever dispensasjon fra LNF-område og 100-metersbeltet langs sjøen, og nabovarsel er gjennomført uten merknader.

Produkter og materialer

Elektro Elektriske installasjoner

Elektriske installasjoner utføres av Tvedestrand elektro

Elektroarbeid i nytt anneks

Grunnarbeid Fundamentering og drenering

Ny plassering 1 meter fra bekk, nødvendig grunnarbeid og drenering

Grunnarbeid for nytt anneks med forskyvning fra bekk

Tømrer Bygging av anneks

🧱 Tre

Oppføring av nytt anneks med tilsvarende fotavtrykk som eksisterende

Tømrerarbeid for nytt anneks

Tak Saltak og valmtak

🧱 Tegl

Saltak og valmtak med tegl taktekking

Taktekking med tegl på saltak og valmtak

VVS Toalett og vask

Antall: 1

WC og servant tilkoblet eksisterende vann- og avløpsanlegg

Sanitærinstallasjoner i anneks

Fasade Trepanel

🧱 Tre

Fasade i trepanel, tilpasset lokal byggeskikk

Utvendig kledning av trepanel på nytt anneks

Dører Ytterdører

Antall: 2

2 dører mot sørfasade

Ytterdører i nytt anneks

Vinduer Fasadevindu

Antall: 3

2 vinduer mot sør, 1 vindu mot vest

Fasadevinduer i nytt anneks

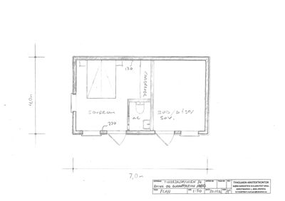
Plantegning

Enebolig 39.2 m²

Etasje 0 28.0 m²

Rom Areal Vinduer Dører
Soverom 16.8 m² 1 1
Bod/Diso/Sov. 9.8 m² 0 1
WC 1.4 m² 0 1
Soverom 16.8 m² 1 1
Bod/Diso/Sov. 9.8 m² 0 1
WC 1.4 m² 0 1

Etasje 1 11.2 m²

Rom Areal Vinduer Dører
Stue 11.2 m² 0 0
Stue 35.2 m² 2 1
Kjøkken 8.0 m² 0 1
Bad 4.8 m² 0 1

Fasader

Anneks

Nord
Materiale
Tre
Taktype
Flatt tak
Takmat.
Tegl
Høyde
3.8 m
Mønehøyde
4.4 m
Vinduer
0
Dører
0
Synlige etasjer
1
Øst
Materiale
Tre
Taktype
Saltak
Høyde
4.4 m
Vinduer
0
Dører
0
Synlige etasjer
1
Vest
Materiale
Tre
Taktype
Valmtak
Høyde
4.5 m
Vinduer
1
Dører
0
Synlige etasjer
1
Sør
Materiale
Tre
Taktype
Valmtak
Takmat.
Tegl
Høyde
3.8 m
Vinduer
2
Dører
2
Synlige etasjer
1

Enebolig

Vest
Materiale
Tre
Taktype
Saltak
Vinduer
5
Dører
1
Synlige etasjer
2

Hovedbygg

Sør
Materiale
Tre
Vinduer
2
Dører
2
Synlige etasjer
2

Uthus

Vest
Materiale
Tre
Taktype
Saltak
Vinduer
1
Dører
0
Synlige etasjer
1

Hendelser

10.04.2026 Ber om uttalelse - 74/247/0/0 - Tverrdalsøyveien 56 - rive anneks/platting, oppføre et nytt anneks
10.04.2026 Midlertidig svar - Tverrdalsøyveien 56 Søknad om tillatelse i ett trinn 74/247
08.04.2026 DOK-analyse - 74/247/0/0 Tverrdalsøyveien 56
07.04.2026 Tverrdalsøyveien 56 Søknad om tillatelse i ett trinn 74/247
27.01.2026 Søknaden avvises - 74/247 - Søknad om tillatelse til tiltak
22.01.2026 Tverrdalsøyveien 56, melding om mottatt søknad
21.01.2026 74/247 - Søknad om tillatelse til tiltak