Extension Rammetillatelse Other

Midlertidig garderobeanlegg ved Tverrliggeren 10, Drammen

📍 Tverrliggeren 10 , 3038 DRAMMEN

Nøkkelinfo

Sakstype
Tilbygg
Bygningstype
Other
Bruksareal
48 m²
Kommune
Drammen
Fylke
Buskerud
Gnr / Bnr
26 / 136
Saksnummer
26/06508
Fase
Rammetillatelse

Om byggesaken

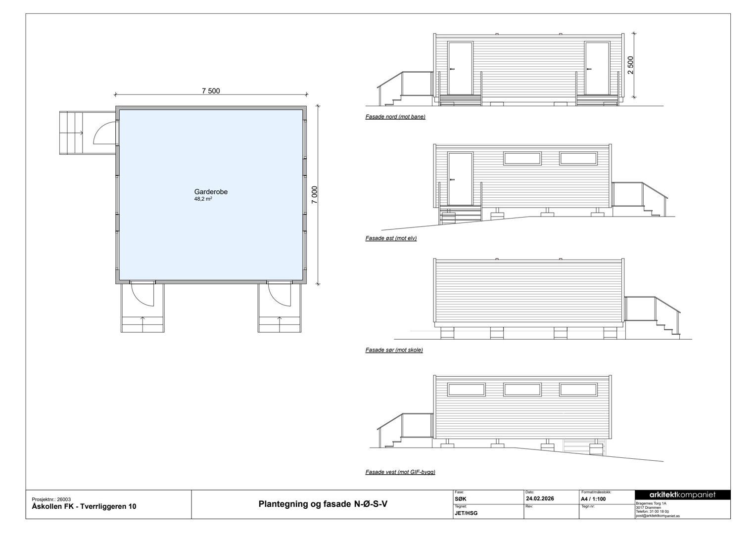
Ny midlertidig garderobebygning på 48,2 m² med gesimshøyde 2,5 m oppføres på Leca-blokker uten plasstøpt fundamentering, noe som gir minimale inngrep i grunnen. Bygget har trekledning som matcher eksisterende kiosk/utstyrsbod, og inneholder et enkelt omkledningsrom uten sanitærinstallasjoner. Bygget plasseres delvis på to kommunale eiendommer og skal benyttes til fotballklubbens treninger. Det er én etasje med fire vinduer og to dører, og en trapp. Bygget er midlertidig med varighet på to år og skal fjernes innen 20.04.2028. Det er ikke ventilasjonssystem, men sirkulasjon sikres med lufteventiler i fasaden. Takrenner leder overvann til terreng.

Produkter og materialer

Fasade Trekledning

🧱 tre

Trekledning tilsvarende eksisterende kiosk/utstyrsbod ved banen

Fasadebekledning i tre som matcher eksisterende bygg

Tømrer Bygningskonstruksjon

🧱 tre

Enkel konstruksjon med trekledning og tak, gesimshøyde 2,5 m

Bygningskonstruksjon for midlertidig garderobeanlegg

Vinduer Fasadevindu

Antall: 4

Fire fasadevinduer for naturlig lys og ventilasjon

Ventilasjon Lufteventiler i fasade

Ingen mekanisk ventilasjon, sirkulasjon sikres med lufteventiler i fasaden

Naturlig ventilasjon via ventiler i fasaden

Dører Ytterdør

Antall: 2

To dører for adkomst til garderoben

Tak Takrenner med nedløp

Takrenner med nedløp til terreng på nord- og sørfasade

Avrenning av takvann til terreng

Trapper Innvendig trapp

Antall: 1

En trapp i bygget

Grunnarbeid Fundamentering på Leca-blokker

🧱 Leca-blokker

Bygget plasseres på Leca-blokker uten plasstøpt fundamentering for minimal grunninngrep

Fundamentering som muliggjør enkel oppføring og demontering

Plantegning

Garderobe 48.2 m²

Etasje 1 48.2 m²

Rom Areal Vinduer Dører
Garderobe 101 48.2 m² 4 2

Hendelser

20.04.2026 Tverrliggeren 10, tillatelse til oppføring av midlertidig garderobeanlegg
30.03.2026 Tverrliggeren 10 Supplering av søknad 26/136
20.03.2026 Tverrliggeren 10, svar på henvendelse om arbeidstilsynets samtykke
17.03.2026 Tverrliggeren 10, vi trenger flere opplysninger for å behandle søknaden din
25.02.2026 Tverrliggeren 10 Søknad om tillatelse til tiltak uten ansvarsrett 26/136