Photo
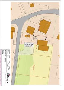
Et utsnitt fra Google Maps som viser et område med en vei, en parkeringsplass og en bygning i bakgrunnen.
1 / 43
Unknown
Unknown
Other
Oppføring av nettstasjon og lagerhall med dispensasjon og nabovarsel
Nøkkelinfo
- Sakstype
- Unknown
- Bygningstype
- Other
- Kommune
- Dielddanuorri - Tjeldsund
- Fylke
- Troms - Romsa - Tromssa
- Saksnummer
- 2020/5323
- Fase
- Unknown
Om byggesaken
Saken omhandler et omfattende prosjekt med oppføring av nettstasjon og lagerhall, inkludert søknad om dispensasjon fra byggegrense, riving av eksisterende bygg, utfylling av elveleie og etablering av brannstasjon. Saken inneholder flere nabovarsler, tegninger for fasader, plan og snitt, samt vedtak om detaljregulering for Evenskjer næringsområde.
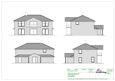
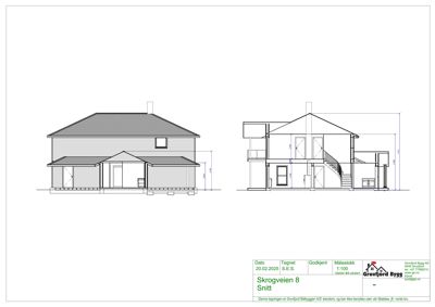
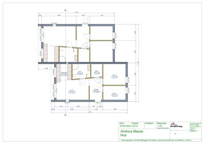
Fasader
Enebolig
Nord
- Materiale
- Tre
- Taktype
- Saltak
- Takmat.
- Tegl
- Høyde
- 2.9 m
- Mønehøyde
- 4.6 m
- Vinduer
- 2
- Dører
- 1
- Synlige etasjer
- 1
Sør
- Materiale
- Tre
- Taktype
- Saltak
- Høyde
- 2.4 m
- Mønehøyde
- 4.9 m
- Vinduer
- 2
- Dører
- 1
- Synlige etasjer
- 1
Øst
- Materiale
- Tre
- Taktype
- Saltak
- Høyde
- 2.4 m
- Mønehøyde
- 4.9 m
- Vinduer
- 2
- Dører
- 1
- Synlige etasjer
- 1
Vest
- Materiale
- Tre
- Taktype
- Saltak
- Takmat.
- Tegl
- Høyde
- 2.4 m
- Mønehøyde
- 4.9 m
- Vinduer
- 2
- Dører
- 1
- Synlige etasjer
- 1
Ukjent
- Materiale
- Tre
- Taktype
- Saltak
- Takmat.
- Tegl
- Høyde
- 2.6 m
- Mønehøyde
- 5.7 m
- Vinduer
- 4
- Dører
- 1
- Synlige etasjer
- 1
HALL - DuoPitch
Ukjent
- Taktype
- Saltak
- Vinduer
- 0
- Dører
- 2
- Synlige etasjer
- 1
Kvarter
Nordøst
- Materiale
- Tre
- Taktype
- Flatt tak
- Takmat.
- Stål
- Høyde
- 10.6 m
- Mønehøyde
- 13.9 m
- Vinduer
- 21
- Dører
- 0
- Synlige etasjer
- 3
Hendelser
20.04.2026
Varsel om oppmålingsforretning
24.03.2026
Nabovarsel
24.03.2026
Gnr. 17 bnr. 66 - lagerhall - Skånlandsveien 461
24.03.2026
Nabovarsel Skånlandsveien 125
24.03.2026
Nabovarsel
24.03.2026
Nabovarsel
24.03.2026
Planvarsel - oppstart av reguleringsarbeid
24.03.2026
Nabovarsel
24.03.2026
Nabovarsel
24.03.2026
Nabovarsel
24.03.2026
Nabovarsel
24.03.2026
Nabovarsel
13.10.2025
Svar på nabovarsel - etablering av brannstasjon og riving av bygg - fylkesveg 8240
11.09.2025
Svar på nabovarsel - Utfylling av gammelt elveleie - gnr 164 bnr 30 - Kong Olavs vei 2004 - Tjeldsund kommune
02.09.2025
Svar på nabovarsel - oppføring av bygg - fylkesveg 825 - gbnr. 10/168 - Tjeldsund kommune
19.08.2025
Nabovarsel til Tjeldsund kommune
04.08.2025
Svar - Nabovarsel
15.07.2025
Vedrørende - Søknad om dispensasjon fra byggegrense - oppføring av nettstasjon
03.07.2025
VS: Nabovarsel til Dielddanuori Suohkan - Tjeldsund kommune
20.06.2025
Nabovarsel 175/11
11.06.2025
Svar på nabovarsel 188/3