ChangeOfUse UnderBehandling Tomannsbolig

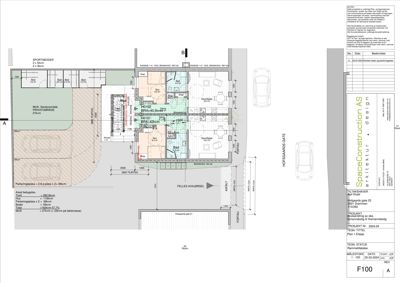
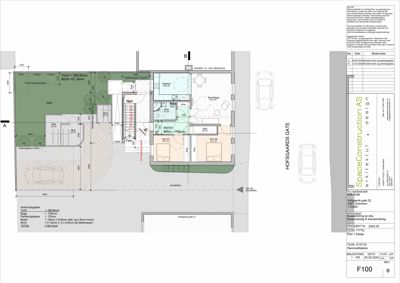
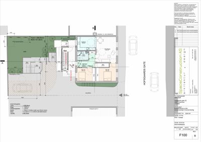
Oppføring og ombygging til tremannsbolig i Hofgaards gate 23, Drammen

📍 Hofgaards gate 23 , 3012 DRAMMEN

Nøkkelinfo

Sakstype
Bruksendring
Bygningstype
Tomannsbolig
Bruksareal
251 m²
Boenheter
3
Kommune
Drammen
Fylke
Buskerud
Gnr / Bnr
113 / 262
Saksnummer
25/08158
Fase
Under behandling

Om byggesaken

Prosjektet omfatter ombygging av en eksisterende tomannsbolig til en tremannsbolig med totalt 3 boenheter. Bygningen får nytt saltak og loftsetasje, samt et nytt tilbygg på 24,5 m² i to etasjer på bakfasaden. Fasadeendringer inkluderer utskifting av horisontale vinduer med vertikale vinduer i tråd med eldre estetikk, og ny trappegang som erstatter eksisterende. Totalt areal er ca. 251 m² fordelt på tre etasjer med kjeller, og det etableres nye uteoppholdsarealer både på bakken og takterrasser. Bygget oppgraderes til gjeldende TEK-krav med hensyn til brannsikkerhet, isolasjon, støynivå og sanitære forhold. Det er gjennomført omfattende vurderinger av støy, flomfare, kulturminneverdier og uteoppholdsareal, med tilhørende dispensasjonssøknader. Parkering løses med to plasser og frikjøp for en plass. Prosjektet inkluderer også oppgradering av felles avkjørsel og tilrettelegging for universell utforming.

Produkter og materialer

Terrasse Takterrasse

Antall: 2

Private takterrasser på ca. 8,5 m² hver, universelt tilgjengelige

Takterrasser for boenheter i loftsetasje

Betong Fundament og grunnmur

🧱 Betong

Oppgradering av fundament og kjellervegger i henhold til geologirapport og TEK17

Grunnarbeid og fundamentering for tilbygg og påbygg

Trapper Utvendig trapp

🧱 Tre/stål

Antall: 1

Ny utvendig trappestruktur til andre etasje, med tilhørende rampe

Erstatning av eksisterende trapp med større og forskriftsmessig trapp

Elektro Brannvarsling

Optiske røykvarslere tilkoplet strømnettet i alle boenheter

Brannalarmanlegg i henhold til TEK17 for firemannsbolig

Fasade Rekkverk

🧱 Tre

Nye rekkverk trukket tilbake fra gesims

Rekkverk på takterrasser og balkonger

Vinduer Takvindu

🧱 Tre/aluminium

Antall: 6

Velux 78x140 cm takvinduer

Nye takvinduer i loftsetasje og påbygg

Sykkelparkering Sykkelplasser

Antall: 6

Seks sykkelplasser i henhold til krav

Sykkelparkering for beboere

Trapper Innvendig trapp

🧱 Tre/stål

Antall: 1

Innvendig hovedtrapp som forbinder andre etasje og loftsetasje i to leiligheter

Ny innvendig trapp i påbygg og eksisterende del

Gulv Innvendige gulv

Oppgradering i henhold til TEK17, detaljer ikke spesifisert

Nye gulv i boenheter og fellesarealer

Maling Innvendig og utvendig maling

Oppgradering av overflater, detaljer ikke spesifisert

Maling av fasader og innvendige flater

Grunnarbeid Drenering og overvannshåndtering

Regnbed, infiltrasjonsgrøft, permeabel belegning på parkeringsplass, overvannshåndtering iht. TEK17 og plan- og bygningsloven

Lokal overvannshåndtering med infiltrasjon, fordrøyning og kontrollert bortledning

Vinduer Fasadevindu

🧱 Tre

Antall: 8

Nye vertikale vinduer med tverrstolper, lydreduksjon R'w + Ctr = Lden – 26 dB eller bedre, i tråd med kulturmiljøets stil og dimensjoner

Utskifting av eksisterende horisontale vinduer med nye vertikale vinduer på gatefasade og bakfasade

VVS Sanitærinstallasjoner

Oppgradering av sanitærinstallasjoner i henhold til TEK17

Sanitærprosjektering for nye boenheter

Fasade Kledning

🧱 Off-white staffpanel i tre

Ny vertikal staffpanelkledning som matcher eksisterende og nærliggende bygninger

Fasadeoppgradering med ny kledning og fasadebehandling

Dører Ytterdør

🧱 Tre

Antall: 3

Separate private innganger til hver boenhet

Nye dører til boenheter og tilbygg

Tak Saltak

🧱 Takstein

Nytt saltak med dekorative utskjæringer på sperrer og møner, i tråd med eksisterende stil

Nytt tak med loftsetasje som erstatter eksisterende valmtak

Parkering Biloppstillingsplass

Antall: 2

To parkeringsplasser på tomten, med mulighet for frikjøp av en plass

Biloppstillingsplasser i henhold til kommuneplanens krav

Brannvern Brannslokkeutstyr

Håndslokkingsutstyr i alle boenheter og etasjer, evt. fastmontert husbrannslange

Slokkeutstyr i henhold til brannstrategi

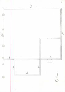
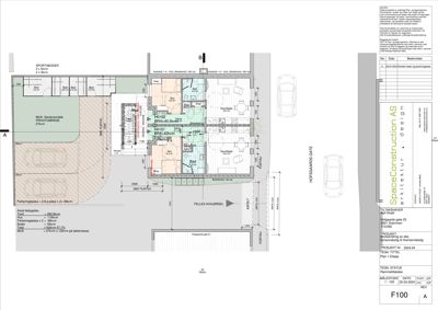
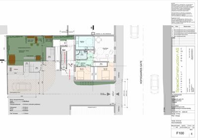
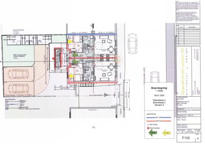
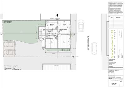
Plantegning

Enebolig 251.0 m²

Etasje 1 120.5 m²

Rom Areal Vinduer Dører
Stue/Spise 101 22.4 m² 1 2
Kjøkken 102 10.8 m² 1 1
Bad 103 4.5 m² 0 1
Sov 01 104 10.7 m² 1 1
Sov 02 105 13.1 m² 1 1
Bod 106 2.4 m² 0 1
Bod 107 5.0 m² 0 1
Bod 108 2.6 m² 0 1
Bod 109 5.0 m² 0 1
Gang 110 15.0 m² 0 3
Trapp 111 4.4 m² 0 0
Stue/Spise H0101 22.4 m² 1 2
Sov 01 H0201 10.7 m² 1 1
Gang H0202 5.9 m² 0 2
Parkering 112 36.0 m² 0 0
Parkering 113 36.0 m² 0 0

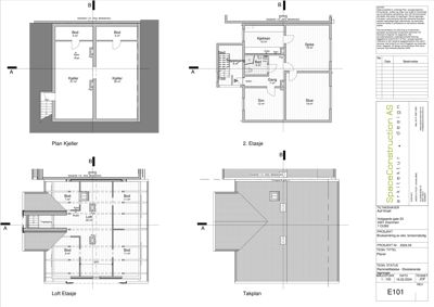
Etasje 0 14.5 m²

Rom Areal Vinduer Dører
Trappgang 001 14.5 m² 0 1
Kjeller 002 30.0 m² 0 1
Bod 003 5.0 m² 0 1
Bod 004 5.0 m² 0 1
Bod H0101 5.2 m² 0 1
Bod H0201 5.2 m² 0 1
Bod H0202 5.2 m² 0 1
Bod H0102 5.2 m² 0 1
Felles område Felles 32.8 m² 0 1
Gang Gang 10.0 m² 0 2
Felles gang FELLES GANG 14.5 m² 0 1
Felles område FELLES OMRÅDE 32.8 m² 0 2
Bod Bod H0101 5.2 m² 0 1
Bod Bod H0201 5.2 m² 0 1
Bod Bod H0202 5.2 m² 0 1
Bod Bod H0102 5.2 m² 0 1

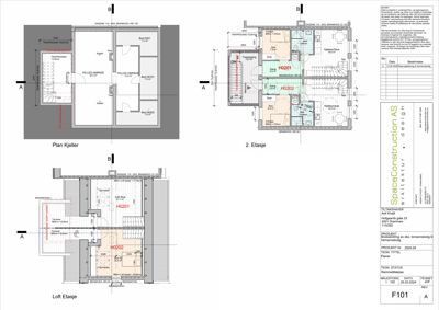
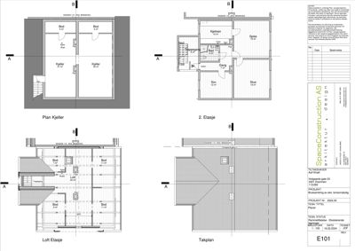
Etasje 2 58.0 m²

Rom Areal Vinduer Dører
Kjøkken/Stue 201 15.9 m² 2 2
Sov 202 8.0 m² 1 1
Bad 203 4.8 m² 0 1
Skap 204 0.5 m² 0 0
Gang 205 5.9 m² 0 2
Sov 206 7.9 m² 1 1
Bad 207 4.8 m² 0 1
Skap 208 0.5 m² 0 0
Bov 01 Bov 01 9.4 m² 1 1
Bov 02 Bov 02 9.0 m² 1 1
Bov 03 Bov 03 9.4 m² 1 1
Bov 04 Bov 04 9.0 m² 1 1
Gang Gang 6.0 m² 0 2
Stue Stue 20.0 m² 2 1
Kjeller Kjeller 10.0 m² 0 1
Soverom Sov 01 8.3 m² 1 1
Soverom Sov 02 9.0 m² 1 1
Bad Bad 4.6 m² 0 1
Skap Skap 0.0 m² 0 0
Bod Bod 2.8 2.8 m² 0 1
Bod Bod 2.7 2.7 m² 0 1
Gang H0202 0.0 m² 0 0
Gang H0201 0.0 m² 0 0

Etasje 3 58.0 m²

Rom Areal Vinduer Dører
Loft Stue 301 21.1 m² 2 1
Sov 02 302 20.5 m² 2 1
Terrasse 303 8.5 m² 0 1
Terrasse 304 8.5 m² 0 1
H0202 H0202 11.0 m² 1 1
H0201 H0201 11.0 m² 1 1
Stue Stue 20.0 m² 2 1
Kjeller Kjeller 10.0 m² 0 1
Gang Gang 6.0 m² 0 2
Kjøkken Kjøkken 5.9 m² 2 1
Terrasse Terrasse 11.0 m² 0 0

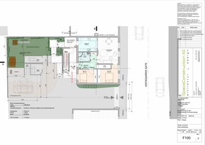
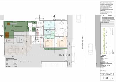
Utomhusplan 0.0 m²

Etasje 0 0.0 m²

Rom Areal Vinduer Dører
Terrasse 23 8.5 m² 0 0
Gress 110 0.0 m² 0 0
Parkeringsplass 21 27.0 m² 0 0

Kjeller 167.6 m²

Etasje 0 167.6 m²

Rom Areal Vinduer Dører
Kjeller 001 167.6 m² 0 0

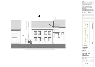
Fasader

Enebolig

Vest
Materiale
Tre
Taktype
Saltak
Høyde
7.0 m
Mønehøyde
10.0 m
Vinduer
4
Dører
2
Balkonger
1
Synlige etasjer
3
Sør
Materiale
Tre
Taktype
Saltak
Høyde
7.0 m
Mønehøyde
10.0 m
Vinduer
2
Dører
1
Balkonger
1
Synlige etasjer
3
Øst
Materiale
Tre
Taktype
Saltak
Høyde
7.0 m
Mønehøyde
10.0 m
Vinduer
8
Dører
1
Synlige etasjer
3
Ukjent
Materiale
Tre
Taktype
Saltak
Vinduer
6
Dører
1
Balkonger
1
Synlige etasjer
3
Nord
Materiale
Betong
Taktype
Saltak
Høyde
6.1 m
Mønehøyde
8.2 m
Vinduer
0
Dører
1
Balkonger
1
Synlige etasjer
3

Tremannsbolig

Øst
Materiale
Tre
Taktype
Saltak
Høyde
7.0 m
Mønehøyde
10.0 m
Vinduer
8
Dører
0
Synlige etasjer
3

Hendelser

09.04.2026 113/262, Hofsgaars gate 23, ny boenhet-nytt bolignummer
25.02.2026 Hofgaards gate 23 Supplering av søknad 113/262
25.02.2026 Hofgaards gate 23 - Dokumentasjon på krav til minimum uteoppholdsareal
19.02.2026 Hofgaards gate 23, vi trenger flere opplysninger for å behandle søknaden din
27.01.2026 Hofgaards gate 23, supplering av søknad
19.01.2026 Hofgaards gate 23, svar på spørsmål
09.01.2026 Hofgaards gate 23, spørsmål vedr. MUA for leiligheten i første etasje
17.12.2025 Hofgaards gate 23, vi trenger flere opplysninger for å behandle søknaden din
17.10.2025 Hofgaards gate 23, Supplering av søknad - søknad om dispensasjon fra plankrav mm.
04.09.2025 Hofgaards gate 23, vi trenger flere opplysninger for å behandle søknaden din
26.06.2025 Hofgaards gate 23 Supplering av søknad 113/262
25.06.2025 Hofgaards gate 23, informasjon angående innsendelse av revidert søknad
11.06.2025 Hofgaards gate 23, informasjon, utsatt frist for innsendelse
06.06.2025 Hofsgaards gate 23 - Søknad om forlengelse av fristen
27.05.2025 Hofgaards gate 23, ber om søknadsskjema
25.04.2025 Hofgaards gate 23, utsatt frist for innsendelse
08.04.2025 Hofgaards gate 23 - ønsker å endre tiltaket i søknad
31.03.2025 Hofgaards gate 23, vi vurderer å avslå søknaden din
14.03.2025 Hofgaards gate 23, ettersender vedlegg til søknad - Støyrapport
25.02.2025 Hofgaards gate 23 Søknad om rammetillatelse 113/262