FacadeChange UnderBehandling Tomannsbolig

Fasadeendring og ny boenhet i underetasje, Fagerliveien 95

📍 Fagerliveien 95 , 1605 FREDRIKSTAD

Nøkkelinfo

Sakstype
Fasadeendring
Bygningstype
Tomannsbolig
Bruksareal
209 m²
Boenheter
3
Kommune
Fredrikstad
Fylke
Østfold
Gnr / Bnr
201 / 47
Saksnummer
2026/3310
Fase
Under behandling

Om byggesaken

Eksisterende tomannsbolig i empirestil med trepanel og valmet saltak i tegl gjennomgår fasadeendringer inkludert utskifting av vinduer med tidsriktig inndeling og ny balkongdør på sørfasade. Det etableres en ny boenhet i underetasjen på 28 m² med tilhørende bad, bod og teknisk rom, samt ny utvendig trapp på baksiden. Terrenget justeres med nye støttemurer og gårdsplass med to biloppstillingsplasser og seks sykkelplasser. Totalt areal for boligen er ca. 209 m² fordelt på tre etasjer, med 3 boenheter og egne boder. Byggets høyde økes noe, og det planlegges en trapp med tett kledning i tråd med husets stil. Utearealet på 300 m² deles i to nivåer for private soner.

Produkter og materialer

Vinduer Fasadevindu

🧱 Tre med tidsriktig inndeling

Antall: 14

Vinduer byttet med samme størrelse, belistning som tidligere

Utskifting av fasadevindu med trekarmer og tidsriktig inndeling i tråd med eksisterende stil

Fasade Lektekledning

🧱 Tre

Omvendt lektekledning på ny trapp, fasade i tre med empirestil

Fasade med trepanel i empirestil, inkludert ny kledning på trapp

Parkering Biloppstillingsplasser og sykkelparkering

2 biloppstillingsplasser og 6 sykkelparkeringsplasser på gårdsplass

Opparbeidelse av parkeringsplasser for bil og sykkel på tomten

VVS Sanitærinstallasjoner

Nye sanitærinstallasjoner i ny boenhet og bad

Sanitærarbeid for ny boenhet i underetasje og øvrige bad

Tømrer Innvendig og utvendig tømrerarbeid

Tømrerarbeid i bolig, inkludert trapper og kledning

Utførelse av tømrerarbeid i bolig og utvendige konstruksjoner

Dører Balkongdør og ytterdører

🧱 Tre

Antall: 7

Ny balkongdør på sørfasade, flere inngangsdører til boenheter og boder

Nye dører til balkong, innganger og boder i tre, tilpasset fasadens stil

Gulv Innvendige gulv

Ikke spesifisert i detalj, men nødvendig for ny boenhet og oppussing

Innvendige gulv i ny boenhet og øvrige rom

Tak Saltak med takstein

🧱 Teglstein

Valmet saltak med teglstein som eksisterende

Tak med valmet saltak og teglstein, opprettholdt i prosjektet

Trapper Utvendig trapp med tett kledning

🧱 Tre med omvendt lektekledning

Antall: 2

Ny trapp på baksiden, kledd med tette felt og omvendt lektekledning i tråd med huset

Utvendig trapp til 2. og 3. etasje, estetisk tilpasset byggets stil

Ventilasjon Ventilasjonsanlegg bolig

Prosjektering og utførelse av ventilasjon i bolig

Ventilasjonsanlegg for ny boenhet og eksisterende bolig

Maling Utvendig og innvendig maling

Maling av fasade og innvendige flater for å tilpasse ny utførelse

Maling av trepanel og innvendige flater

Grunnarbeid Støttemurer og gårdsplass

🧱 Betong/støttemur

Ny støttemur mot vei og fjellrabb, gårdsplass med plass til 2 biler

Grunnarbeid med støttemurer og opparbeidelse av gårdsplass for parkering

Plantegning

Enebolig 209.2 m²

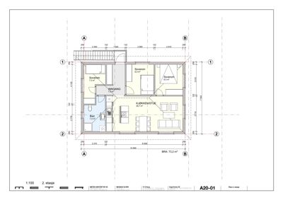
Etasje 2 73.2 m²

Rom Areal Vinduer Dører
Soverom 201 7.3 m² 1 1
Soverom 202 9.3 m² 1 1
Soverom 203 9.3 m² 1 1
Kjøkken/Stue 204 29.7 m² 2 0
Bad 205 7.2 m² 0 1
Inngang 206 7.2 m² 0 1

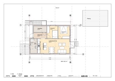
Etasje 1 68.3 m²

Rom Areal Vinduer Dører
Kjøkken/Stue 01 30.5 m² 2 4
Bad 02 6.5 m² 1 1
Inngang 03 5.0 m² 0 2
Vask/Bod 04 5.4 m² 1 1
Soverom 05 8.8 m² 2 1
Soverom 06 9.3 m² 1 1

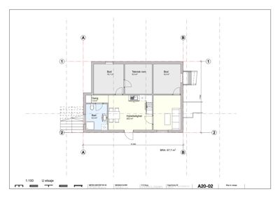
Etasje 0 67.7 m²

Rom Areal Vinduer Dører
Bod U01 10.1 m² 0 1
Teknisk rom U02 9.3 m² 0 1
Bod U03 9.2 m² 0 1
Gang U04 1.9 m² 0 2
Bad U05 6.3 m² 0 1
Hybelleilighet U06 28.0 m² 3 2

Fasader

Enebolig

Sør
Materiale
Tre
Taktype
Saltak
Takmat.
Tegl
Høyde
6.2 m
Mønehøyde
8.3 m
Vinduer
4
Dører
2
Synlige etasjer
3
Nord
Materiale
Tre
Taktype
Saltak
Takmat.
Tegl
Høyde
2.9 m
Mønehøyde
5.1 m
Vinduer
2
Dører
1
Balkonger
1
Synlige etasjer
2

Hendelser

10.04.2026 Foreløpig vurdering - Fasadeendring - Fagerliveien 95 - Eiendom 201/47
29.01.2026 Bekreftelse på mottatt søknad - Fasadeendring - Fagerliveien 95 - Eiendom 201/47
29.01.2026 Rammesøknad - Fagerliveien 95 - Eiendom 201/47 - Fasadeendring (mindre endringer) på eksisterende tomannsbolig, samt opprettelse av ny boenhet i underetasje
30.06.2025 Klage på betydelig fasadeendring i Fagerliveien 95