FacadeChange UnderBehandling Tomannsbolig

Fasadeendring og ombygging av tomannsbolig i Vestre veien 282

📍 Vestre veien 282 , 1680 SKJÆRHALDEN

Nøkkelinfo

Sakstype
Fasadeendring
Bygningstype
Tomannsbolig
Bruksareal
175 m²
Boenheter
2
Kommune
Hvaler
Fylke
Østfold
Gnr / Bnr
22 / 138
Saksnummer
2024/2207
Fase
Under behandling

Om byggesaken

Tomannsboligen fra 1930-tallet på Vestre veien 282 skal moderniseres og ombygges fra horisontalt delt til vertikalt delt bolig med to boenheter over to plan. Fasadeendringene inkluderer etterisolering av fasaden, utskifting av vinduer og dører med nye som oppfyller moderne energikrav, samt justering av vindusstørrelser for rømningsformål. Det etableres nye uteplasser tilpasset terrenget, og taket skal skiftes til rød teglstein. Byggets opprinnelige sveitserstil og kulturhistoriske verdier skal i størst mulig grad bevares, med særlig hensyn til fasadeuttrykk, vindusplassering og kjellervinduer med smijernsinnfatning. Innvendig endres planløsningen for bedre brann- og lydisolasjon, og det etableres ny pipe. Totalt areal er ca. 175 m² fordelt på to etasjer, med 2 trapper og flere vinduer og dører som skal byttes ut eller justeres.

Produkter og materialer

Vinduer Energiglassvinduer tilpasset sveitserstil

🧱 Tre med 3-lags energiglass

Antall: 14

Nye vinduer med samme størrelse, plassering og proporsjoner som eksisterende, oppfyller TEK17 krav til lufttetthet, energi og lydisolasjon

Utskifting av alle fasadevinduene med moderne, energieffektive vinduer som bevarer byggets opprinnelige arkitektur

Fasade Trepanel med sveitserstil detaljer

🧱 Tre

Etterisolering av fasade med bevaring av opprinnelig kledning og detaljer som krysspost og vannbrett

Fasade etterisoleres med innblåsing i reisverk og innvendig etterisolering for å bevare fasadens uttrykk

Tømrer Innvendige vegger og skillevegger

🧱 Tre og lydisolerende materialer

Ny vertikal seksjonering mellom boenhetene med lyd- og brannisolasjon

Oppbygging av nye skillevegger for bedre brann- og lydisolasjon mellom boenheter

Bad Nye bad med sanitærutstyr

Antall: 2

Etablering av ett bad per boenhet i andre etasje

Nye bad tilpasset moderne standard og bruk

Kjøkken Nye kjøkkeninnredninger

Antall: 2

Oppgradering av kjøkken i begge boenheter

Nye kjøkkeninnredninger i begge boenheter

Tak Saltak med teglstein

🧱 Rød teglstein

Antall: 1

Nytt tak med rød teglstein, eventuelt gjenbruk av eldre stein, med lavtbyggende undertak og vindsperre

Erstatte eksisterende blikktak med teglstein for å tilbakeføre opprinnelig uttrykk

Pipe Teglsteinspipe

🧱 Teglstein

Antall: 1

Etablering av ny pipe, rehabilitering av eksisterende pipe med opprinnelig uttrykk

Ny pipe tilknyttet ildsted, tilpasset byggets stil

Dører Ytterdører i tre

🧱 Tre

Antall: 5

Nye ytterdører i samme størrelse og plassering som eksisterende, inkludert to nye dører mot nordfasade

Bytte og etablering av ytterdører i fasaden i tråd med ny planløsning

Grunnarbeid Uteplasser og terrengtilpasning

🧱 Steinbelagt platting

Antall: 2

To uteplasser tilpasset terreng, en platting inntil huset og en frittliggende steinplass

Etablering av marktilpassede uteplasser som ikke fremstår som fremmedelementer i terrenget

Gulv Standard gulvbelegg

Oppgradering av gulv i forbindelse med ombygging

Oppgradering av gulvflater i boenhetene

VVS Ildsted og pipe

Antall: 1

Ny pipe og ildsted installeres

Etablering av ildsted med tilhørende pipe

Elektro Skjulte elektriske installasjoner

Oppgradering av elektriske installasjoner skjult i konstruksjonen

Modernisering av elektrisk anlegg i forbindelse med ombygging

Isolasjon Innvendig og innblåst isolasjon

🧱 Mineralull eller tilsvarende

Innblåsing av isolasjon i reisverkskonstruksjon og 5 cm innvendig etterisolering, forbedret isolasjon i tak

Isolasjonstiltak for å oppnå energistandard tilsvarende TEK10 uten å skade fasadens uttrykk

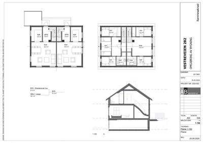
Plantegning

Enebolig 175.1 m²

Etasje 1 91.5 m²

Rom Areal Vinduer Dører
Stue 101 34.0 m² 2 1
Kjøkken 102 11.8 m² 1 1
Gang 103 8.0 m² 0 2
Soverom 104 16.4 m² 1 1
Bad 105 3.1 m² 0 1
Gang 106 18.3 m² 0 2

Etasje 2 83.6 m²

Rom Areal Vinduer Dører
Stue 201 15.5 m² 2 1
Kjøkken 202 13.1 m² 1 1
Gang 203 18.3 m² 0 2
Soverom 204 13.1 m² 1 1
Bad 205 3.2 m² 0 1
Alkove 206 7.7 m² 1 1

Fasader

Enebolig

Sør
Materiale
Tre
Taktype
Saltak
Vinduer
4
Dører
0
Synlige etasjer
2
Øst
Materiale
Tre
Taktype
Saltak
Vinduer
4
Dører
1
Synlige etasjer
2
Vest
Materiale
Tre
Taktype
Saltak
Vinduer
0
Dører
2
Synlige etasjer
1
Nord
Materiale
Tre
Taktype
Saltak
Vinduer
4
Dører
1
Synlige etasjer
2

Hendelser

19.03.2026 Redegjørelse - kravene av TEK .17 - fasadeendring - 22/138 - Vestre veien 282
10.03.2026 Søknad om tiltak - korrigert fasadetegning - fasadeendring - 22/138 - Vestre veien 282, Bølingshavn
10.03.2026 Utsettelse av frist og forslag til avklaringsmøte - fasadeendring - 22/138 - Vestre Veien 282, Bølingshavn
04.03.2026 Supplering av søknad - fasadeendring - 22/138 - Vestre veien 282
16.01.2026 Viser til brev 11.12.2025 - utsettelse av frist - søknad om rammetillatelse - fasadeendring - 22/138 - Vestre veien 282
07.01.2026 Uttalelse - søknad om rammetillatelse - fasadeendring - 22/138 - Vestre veien 282
06.01.2026 Behov for ytterligere opplysninger - søknad om rammetillatelse - fasadeendring - 22/138 - Vestre veien 282
10.12.2025 Oversendelse for uttalelse - søknad om rammetillatelse - fasadeendring - 22/138 - Vestre veien 282
29.09.2025 Søknad om rammetillatelse - fasadeendring - 22/138 - Vestre veien 282
01.10.2024 Referat - forhåndskonferanse - fasadeendring - 22/138 - Vestre veien 282
17.09.2024 Forhåndskonferanse - tilleggsdokumentasjon - fasadeendring - 22/138 - Vestre veien 282
30.08.2024 Forslag til tidspunkt - forhåndskonferanse - fasadeendring - Vestre veien 282
19.08.2024 Forhåndskonferanse - fasadeendring - 22/138 - Vestre veien 282