NewConstruction UnderBehandling Tomannsbolig

Oppføring av vertikaldelt tomannsbolig på Eitrheim 3, Odda

📍 Eitrheim 3A , 5750 ODDA

Nøkkelinfo

Sakstype
Nybygg
Bygningstype
Tomannsbolig
Bruksareal
240 m²
Boenheter
2
Kommune
Ullensvang
Fylke
Vestland
Gnr / Bnr
64 / 256
Saksnummer
2026/859
Fase
Under behandling

Om byggesaken

Prosjektet omfatter oppføring av en vertikaldelt tomannsbolig på eiendommen Eitrheim 3, gnr. 64, bnr. 256 i Ullensvang kommune. Bygget har et bebygd areal på 174 m² og et bruksareal på 240,5 m² fordelt på to etasjer. Boligen inneholder flere soverom, bad, vaskerom, bod, og parkeringsplasser. Bygget er planlagt med saltak og trekledning, og fasadene har flere vinduer og dører. Tomannsboligen er regulert til boligformål i reguleringsplan for Eitrheim Vest, og tiltaket er i samsvar med gjeldende reguleringsplan og dispensasjoner. Adkomst til tomten skjer via en vei som kommunen anser som offentlig kommunal vei, men det pågår uenighet om veiens status og vedlikeholdsansvar. Prosjektet inkluderer tilknytning til offentlig vann- og avløpsnett, og byggegrunnen er dokumentert trygg mot skred og naturfare. Det foreligger godkjente ansvarsrettserklæringer for prosjektering, utførelse og kontroll fra flere foretak.

Produkter og materialer

Fasade Trekledning

🧱 Tre

Antall: 1

Trekledning på fasader

Dører Ytterdører og innerdører

🧱 Tre

Antall: 15

Ytterdører og innerdører i tre til boligen

Betong Betongarbeid

Utført av Brødrene Mæland Bygg & Betong AS

Betongarbeid i forbindelse med bygging

VVS Sanitærinstallasjoner

Sanitærinstallasjoner i henhold til prosjektering og utførelse

Trapper Innvendige trapper

Antall: 2

To innvendige trapper i tomannsboligen

Tak Saltak

🧱 Tre og taktekking

Antall: 1

Saltak med trestruktur og taktekking

Tømrer Tømrerarbeid

Utført av Brødrene Mæland Bygg & Betong AS

Tømrerarbeid i forbindelse med bygging

Kjøkken Kjøkkeninnredning

Kjøkkeninnredning i tomannsboligen

VVS Membran

Membranarbeid utført av EDVARD'S BYGGSERVICE AS

Membran for våtrom og andre områder

Grunnarbeid Veiarbeid og grunnarbeider

Utført av ULLENSVANG ENTREPRENØR AS

Grunnarbeid og veiarbeid for tomannsboligen

Vinduer Fasadevindu

🧱 Tre

Antall: 14

Fasadevindu i tre, fordelt på ulike rom i tomannsboligen

Ventilasjon Ventilasjonssystem

Ventilasjon i boligen i henhold til krav

Gulv Gulvbelegg og overflater

Gulvbelegg i boligrom og våtrom

Elektro Elektrisk installasjon

Elektriske installasjoner i henhold til forskrifter

Garasjeport Garasjeport i tre

🧱 Tre

Antall: 1

Garasjeport tilknyttet tomannsboligen

Bad Baderomsinnredning

Antall: 2

Baderomsinnredning for to bad i boligen

Terrasse Terrasse

🧱 Tre

Antall: 2

Terrasser på begge boenheter, ca. 14 m² hver

Utendørs terrasseareal tilknyttet hver boenhet

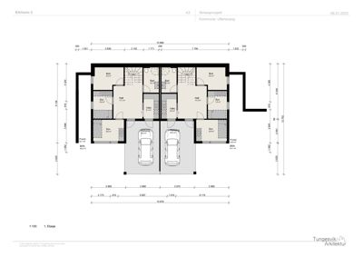
Plantegning

Enebolig 288.4 m²

Etasje 1 288.4 m²

Rom Areal Vinduer Dører
Sov 101 8.6 m² 1 1
P-rom 102 54.1 m² 1 1
BRA 103 54.2 m² 0 0
Sov 104 8.6 m² 1 1
Hall 105 17.1 m² 0 2
Sov 106 6.8 m² 1 1
Bod 107 8.3 m² 1 1
Vaks 108 5.1 m² 0 1
Bad 109 5.2 m² 0 1
Vaks 110 5.0 m² 0 1
Bad 111 5.2 m² 0 1
Hall 112 17.3 m² 0 2
Sov 113 7.0 m² 1 1
Bod 114 8.3 m² 1 1
P-rom 115 54.0 m² 1 1
BRA 116 54.1 m² 0 0
Parking 117 24.6 m² 0 1
Parking 118 25.0 m² 0 1

Fasader

Enebolig

Vest
Materiale
Tre
Taktype
Saltak
Vinduer
4
Dører
1
Balkonger
1
Synlige etasjer
2
Nord
Materiale
Tre
Taktype
Saltak
Vinduer
4
Dører
0
Synlige etasjer
1
Øst
Materiale
Tre
Taktype
Saltak
Vinduer
4
Dører
0
Synlige etasjer
2
Sør
Materiale
Tre
Taktype
Saltak
Vinduer
10
Dører
3
Balkonger
1
Synlige etasjer
2

Hendelser

14.04.2026 Svar på ny henvendelse - riktigheten av Statsforvalterens rettsanvendelse
31.03.2026 Sivilombudet har mottatt din henvendelse
30.03.2026 Svar på anmodning om å vurdere riktigheten av Statsforvalterens rettsanvendelse
30.03.2026 Orientering om svar fra Sivilombudet på anmodning om vurdering av sak
24.03.2026 Svar på anmodning om å vurdere riktigheten av Statsforvalterens rettsanvendelse
06.03.2026 Anmodning om vurdering av Statsforvalteren i Vestland sitt vedtak - uriktig lovforståelse og feil rettsanvendelse