NewConstruction Rammetillatelse Tomannsbolig

Ny firemannsbolig med endring på Glimmeråsen 42, Gjerstad

📍 Glimmeråsen 42 , 4993 SUNDEBRU

Nøkkelinfo

Sakstype
Nybygg
Bygningstype
Tomannsbolig
Bruksareal
370 m²
Boenheter
4
Kommune
Gjerstad
Fylke
Agder
Gnr / Bnr
3 / 401
Saksnummer
2025/284
Fase
Rammetillatelse

Om byggesaken

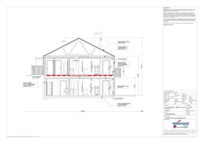
Ny firemannsbolig oppføres på Glimmeråsen 42 i Gjerstad kommune, med et bebygd areal på 232,2 m² og et bruksareal på 369,9 m² etter endring. Bygget er plassert på samme akser som opprinnelig planlagt, men er redusert i lengde fra 24,6 m til 19,2 m, noe som gir bedre avstand til nabobygget. Boligen består av fire leiligheter på ca. 80 m² hver, med moderne konstruksjon i tre, saltak med teglstein, og god isolasjon i henhold til TEK17. Bygget har to etasjer, med funksjonelle rom som stue, kjøkken, bad, vaskerom og flere soverom. Det er lagt vekt på universell utforming, sikkerhetsglass i vinduer og dører, og god visuell utforming i forhold til omgivelsene. Utomhusarealer, parkering og gangveier er planlagt i tråd med reguleringsplanen, og det er krav om ferdigattest ved ferdigstillelse.

Produkter og materialer

Pipe Skorstein

Antall: 1

Skorstein kreves for boenheter uten vannbåren varme

Skorstein for ildsted i boligene, unntatt der vannbåren varme benyttes

Ventilasjon Mekanisk ventilasjon

Ventilasjonssystem prosjektert i henhold til TEK17

Ventilasjon for god luftkvalitet i alle boenheter

Elektro Elektriske installasjoner

Elektriske installasjoner iht. TEK17 og gjeldende forskrifter

El-installasjoner for belysning, varme og utstyr i alle leiligheter

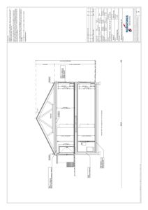
Tak Saltak med teglstein

🧱 Teglstein taktekking, taksperrer og takstoler dimensjonert av leverandør

Antall: 1

Takvinkel 35-40°, REI 30 brannklasse i takoverbygg

Saltak med teglstein som takmateriale, isolert iht. energiberegning

Terrasse Uteoppholdsareal og gangveier

Uteområder, gangveier og parkeringsplasser i tråd med reguleringsplan

Ferdigstilte uteområder med gangveier og parkeringsløsninger

Isolasjon Vegger, tak og gulv

🧱 Mineralull isolasjon klasse 34 og 35, Jackon Thermomur 350 mm mot terreng

U-verdi vegg ca 0,198 W/m²K, tak og gulv isolert iht. energiberegning

Isolasjon i yttervegger, tak og gulv for energieffektivitet og lydisolasjon

Tømrer Bjelker, stendere, søyler og losholter

🧱 Limtre GL 30c, stål S355

Bærekonstruksjon med limtre og stål, dimensjonert iht. statiske krav

Bærekonstruksjon for vegger, tak og etasjeskiller

Bad Våtromsinnredning og membran

Membran og tetting i våtrom iht. produktspesifikasjon og tekniske godkjenninger

Bad og vaskerom med godkjente våtromsløsninger og fall mot sluk

VVS Vann- og avløpsinstallasjoner

Tilknytning til offentlig vann og avløp, installasjon av vannmåler kreves

VVS-installasjoner for alle leiligheter, inkludert bad, vaskerom og kjøkken

Dører Ytterdører og balkongdører

🧱 Tre med FC-godkjent låskasse, EI30 brannklasse på enkelte dører

Antall: 8

Luminanskontrast 0,4 på hovedinngangsdører, låsbare med systemlås

Ytterdører til leiligheter og balkongdører med sikkerhetsglass

Vinduer Fasadevindu og balkongdør

🧱 Tre med 3-lags energiglass, sikkerhetsglass der brystningshøyde <0,8m

Antall: 32

U-verdi ca 1,0 W/m²K, sikkerhetsglass iht. Plan- og bygningsloven og glassbransjens anbefalinger

Vinduer og balkongdører for alle leiligheter, inkludert toppsving og fast glass

Gulv Innvendige gulv

Gulvkonstruksjoner med lydisolasjon og varmeisolasjon

Innvendige gulv med lyd- og varmeisolasjon, egnet for boligbruk

Rekkverk Sikkerhetsrekkverk på uteområder

Gjerder og rekkverk for sikring mot fall der nødvendig

Sikkerhetsrekkverk på tomt og uteområder for å ivareta sikkerhet

Grunnarbeid Oppmåling, plassering og natursteinsmur

Oppmåling og plassering med GPS, natursteinsmur utført av Kragerø Naturstein AS

Grunnarbeid og støttemurer for tomt og bygning

Fasade Stående trepanel

🧱 Trepanel, stående dobbelfals, malt i NCS S 0502-Y og Setersvart NCS S 8502-Y

Antall: 1

Utvendig kledning med lufting horisontalt og vertikalt

Yttervegger med stående trepanel og god isolasjon

Betong Plate på mark og fundamenter

🧱 Betongplate med armering, dimensjonert etter lokale grunnforhold

Antall: 1

Plate på mark (ESP) 450 mm, fundamenter dimensjonert av entreprenør

Fundament og plate på mark for byggets bærekraft

Fasader

Enebolig

Nord
Materiale
Tre
Taktype
Saltak
Takmat.
Tegl
Høyde
6.5 m
Mønehøyde
8.2 m
Vinduer
3
Dører
1
Synlige etasjer
2
Vest
Materiale
Tre
Taktype
Saltak
Takmat.
Tegl
Høyde
6.5 m
Mønehøyde
8.2 m
Vinduer
1
Dører
1
Balkonger
1
Synlige etasjer
2
Sør
Materiale
Tre
Taktype
Saltak
Takmat.
Tegl
Høyde
6.5 m
Mønehøyde
8.2 m
Vinduer
6
Dører
1
Balkonger
1
Synlige etasjer
2
Øst
Materiale
Tre
Taktype
Saltak
Takmat.
Tegl
Høyde
6.5 m
Mønehøyde
8.2 m
Vinduer
2
Dører
1
Synlige etasjer
2
Ukjent
Taktype
Saltak
Høyde
5.7 m
Mønehøyde
8.4 m
Vinduer
2
Dører
1
Synlige etasjer
2

Hendelser

19.02.2026 Glimmeråsen 42, godkjent endring - nytt bygg - boligformål
19.02.2026 Faktura grunnlag - endring av firemannsbolig - Glimmeråsen 42
16.02.2026 Glimmeråsen 42 Søknad om endring av gitt tillatelse eller godkjenning 3/401
16.06.2025 Glimmeråsen 42, vedtak nytt bygg - boligformål
16.06.2025 Fakturagrunnlag - byggesak - oppføring av firemannsbolig Glimmeråsen -Bygg H
26.03.2025 Glimmeråsen 42 Søknad om tillatelse i ett trinn 3/401