NewConstruction UnderBehandling Tomannsbolig

Ny tomannsbolig i Hjortetråkket 105 og 107, Vestfossen

📍 Hjortetråkket 105 , 3320 VESTFOSSEN

Nøkkelinfo

Sakstype
Nybygg
Bygningstype
Tomannsbolig
Bruksareal
313 m²
Boenheter
2
Kommune
Øvre Eiker
Fylke
Buskerud
Gnr / Bnr
62 / 435
Saksnummer
2026/2324
Fase
Under behandling

Om byggesaken

Ny tomannsbolig i to etasjer med totalt oppvarmet bruksareal på ca. 252 m² og totalt BRA på 313,4 m². Bygget har saltak og trekledning, med flere fasadevinduer og dører fordelt på alle fire fasader. Planløsningen inkluderer stue/kjøkken, flere soverom, bad, vaskerom, bod og gang/trapp. Det er avsatt plass til to dobbeltgarasjer som ikke inngår i denne byggesaken. Bygget har pipe og ventilasjonsanlegg, og det er planlagt radonsikring, mur- og betongarbeider, samt grunnarbeider og VA-tilknytning. Terrengtilpasning er prosjektert med hensyn til nabogrense og vei. Prosjektet følger TEK17 og Norsk Standard.

Produkter og materialer

Tømrer Tømrerarbeider

Tømrerarbeider for bygging av tomannsbolig

Tømrerarbeid for konstruksjon og innvendige arbeider

Vinduer Innvendige vinduer

Antall: 10

Vinduer i soverom og oppholdsrom

Innvendige vinduer i bolig

VVS Rørarbeider vann og avløp

Innvendig og utvendig rørarbeid, tilknytning til offentlig VA-nett

VVS-installasjoner for vann og avløp

Terrasse Uteareal

Antall: 1

Uteareal på 23,9 m² med døradkomst

Terrasse eller uteplass

Trapper Innvendige trapper

Antall: 2

To trapper i bygget, antatt i tre eller betong

Innvendige trapper mellom etasjer

Fasade Trekledning

🧱 Tre

Bygget har trekledning på alle fasader

Trekledning for yttervegger

Elektro Elektriske installasjoner

Elektriske installasjoner i henhold til TEK17

Elektroinstallasjoner for bolig

Grunnarbeid Grunn- og terrengarbeider

Grunnarbeider og terrengtilpasning i henhold til situasjonsplan

Grunnarbeider og terrengbearbeiding

Dører Innvendige dører

Antall: 14

Innvendige dører til rom som soverom, bad, bod, vaskerom

Innvendige dører i bolig

Tak Saltak

🧱 Takstein eller tilsvarende

Saltak på hele bygget

Saltak med tilhørende takmaterialer

Gulv Innvendige gulv

Antatt eikeparkett eller tilsvarende i oppholdsrom

Innvendige gulvflater

Pipe Murpipe

🧱 Mur

Antall: 1

Montering av pipe/ildsted

Pipe for ildsted

Dører Ytterdører og balkongdører

🧱 Tre eller kompositt

Antall: 7

Dører fordelt på fasader: Øst 2, Nord 2, Vest 2, samt dører i plantegning

Ytterdører og balkongdører

Vinduer Fasadevindu

🧱 Trelags energiglass antatt

Antall: 24

Vinduer fordelt på fasader: Sør 10, Øst 4, Nord 6, Vest 4

Fasadevinduer med energiglass

Ventilasjon Balansert ventilasjon

Antall: 2

Balansert ventilasjonsanlegg, ett anlegg per boenhet

Ventilasjonsanlegg med kanalføringer begrenset til boenhetens branncelle

Isolasjon Radonsikring

Radonsikring prosjektert og utført

Radonsikring i henhold til forskrift

Betong Mur- og betongarbeider

Mur- og betongarbeider inkludert påstøp, membran og fall til sluk

Betongarbeider for fundament og våtrom

Bad Bad og våtrom

Antall: 4

Bad og vaskerom med membran og fall til sluk

Bad og vaskerom med våtromsstandard

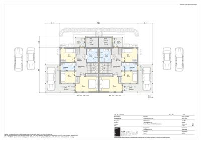
Plantegning

Enebolig 261.0 m²

Etasje 1 261.0 m²

Rom Areal Vinduer Dører
Stue / kjøkken 101 35.6 m² 2 1
TBA 102 26.1 m² 1 1
BRA-i 103 64.1 m² 0 0
Gang/trapp 104 6.8 m² 0 0
Bad 105 6.3 m² 0 1
Bod 106 1.1 m² 0 1
S4 107 11.8 m² 1 1
Soverom S1 14.9 m² 2 1
Soverom S2 8.4 m² 1 1
Soverom S3 8.8 m² 1 1
Bad BRA-i 64.2 m² 0 2
Bad Bad 6.3 m² 0 1
Vaskerom Vask/tek 5.2 m² 0 1
Uteareal UTA 23.9 m² 0 1
Bod Bod 5.2 m² 0 1
Gang Gang/trapp 17.1 m² 0 0

Fasader

Enebolig

Sør
Materiale
Tre
Taktype
Saltak
Vinduer
10
Dører
0
Balkonger
2
Synlige etasjer
2
Øst
Materiale
Tre
Taktype
Saltak
Vinduer
4
Dører
2
Balkonger
1
Synlige etasjer
2
Nord
Materiale
Tre
Taktype
Saltak
Vinduer
6
Dører
2
Synlige etasjer
2
Vest
Materiale
Tre
Taktype
Saltak
Vinduer
4
Dører
2
Balkonger
1
Synlige etasjer
2

Hendelser

14.04.2026 Tilbakemelding fra VA-Oversendes for uttalelse - Tomannsbolig - Gbnr 62/435 - Hjortetråkket 105 og 107, Vestfossen
13.04.2026 Oversendes for uttalelse - Tomannsbolig - Gbnr 62/435 - Hjortetråkket 105 og 107, Vestfossen
12.04.2026 Supplering av søknad - tomannsbolig - gbnr 62/435 - Hjortetråkket 105 og 107, Vestfossen
19.03.2026 Svar fra Geodata- kontroll av plassering - Tomannsbolig - gbnr 62/435 - Hjortetråkket 105 og 107, Vestfossen
13.03.2026 Ett-trinns søknad - tomannsbolig - boligformål - gbnr 62/435 - Hjortetråkket 105, Vestfossen
13.03.2026 Oversendes for kontroll av plassering - Tomannsbolig - gbnr 62/435 - Hjortetråkket 105 og 107, Vestfossen
13.03.2026 Mangelbrev - Tomannsbolig - gbnr 62/435 - Hjortetråkket 105 og 107, Vestfossen