NewConstruction Rammetillatelse Tomannsbolig

Oppføring av flermannsbolig med garasje i Høgåslia 30, Flateby

📍 Høgåslia 30 , 1911 FLATEBY

Nøkkelinfo

Sakstype
Nybygg
Bygningstype
Tomannsbolig
Bruksareal
727 m²
Boenheter
8
Kommune
Enebakk
Fylke
Akershus
Gnr / Bnr
7 / 344
Saksnummer
2025/3960
Fase
Rammetillatelse

Om byggesaken

Ny flermannsbolig (tomannsbolig) med 8 boenheter fordelt på to etasjer og garasje i underetasjen på totalt 727 m² BRA. Bygget har saltak med mønehøyde 9,0 m og gesimshøyde 6,6 m over gjennomsnittlig planert terreng. Hver boenhet har stue/kjøkken, bad, flere soverom, entre og balkong eller terrasse. Garasjeanlegg med 8 parkeringsplasser og boder i underetasjen. Uteområder inkluderer to møteplasser og beplantning. Bygget er oppført i tre med terrengtilpasning og tilknyttet offentlig vann- og avløpsnett. Prosjektet inngår i et større boligområde med felles utearealer og infrastruktur under opparbeidelse.

Produkter og materialer

Gulv Gulv i boligene

Gulv i boligene ikke detaljert, men nødvendig for ferdigstillelse

Innvendige gulvflater i boligene

Terrasse Terrasser og balkonger

Antall: 8

Terrasser og balkonger tilknyttet boenhetene, størrelser fra 6 til 14,6 m²

Utendørs oppholdsarealer for boenhetene

Grunnarbeid Grunnarbeid, landskapsutforming, adkomst/vei og utvendig VA

Grunnarbeid og utvendige anlegg utført av Niklas Eriksen AS og Sandås Fjellsprenging & Graving AS

Grunnarbeid og utomhusarbeider for bygg og infrastruktur

Tømrer Tømrerarbeid og montering av trekonstruksjoner

🧱 Tre

Tømrerarbeid for boligkonstruksjon og boligventilasjon

Trekonstruksjoner for bolig og ventilasjonssystem

Elektro Elektroinstallasjoner

Elektroarbeid ikke detaljert, men nødvendig for boligene

Elektriske installasjoner for boligene

VVS Rør og sanitærinstallasjoner

Rør- og sanitærarbeider utført av Sørumsand rør AS

VVS-installasjoner for vann, avløp og sanitær

Tak Saltak

🧱 Ikke spesifisert, antatt takstein eller metall

Antall: 1

Saltak med mønehøyde 9,0 m og gesimshøyde 6,6 m

Saltak for flermannsboligen med god takhøyde

Ventilasjon Balansert ventilasjon

Balansert ventilasjon prosjektert av Nebbenes Bygg AS

Ventilasjonssystem for boligene

Maling Utvendig og innvendig maling

Maling av trefasader og innvendige overflater antatt nødvendig

Overflatebehandling for beskyttelse og estetikk

Bad Bad med våtromsstandard

Antall: 8

Bad i hver boenhet, kontrollert av GK Takst & Eiendom AS

Bad med våtromsstandard og nødvendig utstyr

Garasjeport Garasjeporter til underetasje

🧱 Ikke spesifisert

Antall: 8

Garasjeporter til 8 parkeringsplasser i underetasjen

Garasjeporter for biloppstilling i underetasjen

Fasade Kledning i tre

🧱 Tre med dus jordtone

Antall: 1

Tre kledning i dus jordtone på alle fasader

Tre kledning som fasademateriale for estetikk og isolasjon

Betong Betongarbeider for fundament og underetasje

Betongarbeider utført av Nebbenes Bygg AS

Betongfundamenter, bjelkelag og garasje i underetasjen

Isolasjon Isolasjon i vegger, tak og gulv

Isolasjon for energikrav og komfort i boligene

Termisk isolasjon i konstruksjoner

Trapper Innvendige trapper

🧱 Tre eller betong (ikke spesifisert)

Antall: 2

To trapper i bygget for etasjeadkomst

Innvendige trapper mellom etasjer i boligene

Dører Ytterdører og balkongdører

🧱 Tre

Antall: 15

Ytterdører og balkongdører i tre, inkludert inngangsdører og balkongadkomst

Ytterdører og balkongdører for adkomst og utgang til balkonger og terrasser

Vinduer Fasadevindu

🧱 Tre med 3-lags energiglass

Antall: 44

Vinduer i fasader nord, vest, sør og øst, inkludert balkongdører

Fasadevinduer og balkongdører i tre med energiglass for lys og isolasjon

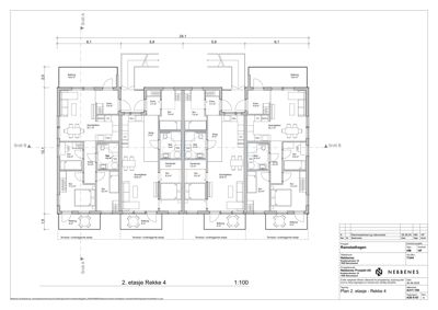
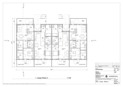
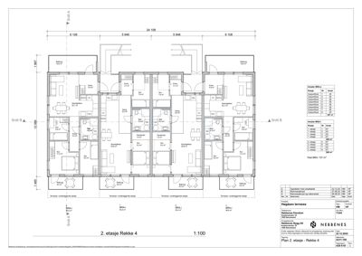
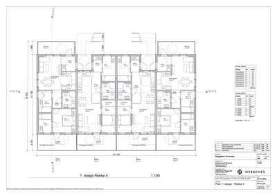
Plantegning

Rekkehus 520.0 m²

Etasje 1 260.0 m²

Rom Areal Vinduer Dører
Sov 1 5.8 m² 1 1
Gang 2 3.6 m² 0 1
Bad 3 4.8 m² 0 0
Sov 4 12.7 m² 1 1
Stue/kjøkken 5 25.4 m² 0 0
Gang 6 6.4 m² 1 1
Bad 7 5.0 m² 0 0
Garderobe 8 1.9 m² 0 0
Sov 9 8.3 m² 1 1
Stue/kjøkken 10 25.4 m² 0 0
Gang 11 6.4 m² 1 1
Bad 12 5.0 m² 0 0
Garderobe 13 1.9 m² 0 0
Sov 14 8.3 m² 1 1
Stue/kjøkken 15 25.4 m² 0 0
Gang 16 3.6 m² 0 1
Bad 17 4.8 m² 0 0
Sov 18 6.6 m² 1 1
Stue/kjøkken 19 23.5 m² 0 0
Entre 20 4.8 m² 1 1
Sov 21 7.6 m² 0 1
Balkong 22 10.8 m² 0 1
Sov 23 7.6 m² 0 1
Entre 24 3.1 m² 0 1
Sov 25 6.6 m² 0 1
Gang 26 3.8 m² 0 1
Bad 27 4.8 m² 0 0
Sov 28 12.7 m² 1 1
Stue/kjøkken 29 23.5 m² 0 0
Entre 30 4.8 m² 1 1
Sov 31 7.6 m² 0 1
Balkong 32 10.8 m² 0 1
Terrasse 33 14.6 m² 0 1
Overliggende balkong 34 0.0 m² 0 0
Terrasse 35 14.6 m² 0 1
Overliggende balkong 36 0.0 m² 0 0
Terrasse 37 14.6 m² 0 1
Overliggende balkong 38 0.0 m² 0 0
Balkong 01 10.8 m² 0 1
Entre 02 4.8 m² 0 1
Stue/kjøkken 03 23.5 m² 2 1
Sov 04 6.6 m² 1 1
Bad 05 4.8 m² 0 1
Sov 06 5.8 m² 1 1
Sov 07 12.7 m² 1 1
Gang 08 3.6 m² 0 2
Stue/kjøkken 09 25.4 m² 1 1

Etasje 2 260.0 m²

Rom Areal Vinduer Dører
Stue/kjøkken 201 25.8 m² 1 1
Sov 202 11.4 m² 1 1
Sov 203 8.2 m² 1 1
Bad 204 4.9 m² 0 1
Gang 205 4.4 m² 0 2
Entre 206 4.8 m² 0 1
Balkong 207 6.0 m² 0 1
Sov 208 7.6 m² 1 1
Sov 209 8.3 m² 1 1
Gang 210 6.0 m² 0 2
Entre 211 3.1 m² 0 1
Balkong 212 10.8 m² 0 1
Stue/kjøkken 213 25.8 m² 1 1
Sov 214 8.3 m² 1 1
Sov 215 11.4 m² 1 1
Bad 216 5.0 m² 0 1
Gang 217 6.0 m² 0 2
Entre 218 4.8 m² 0 1
Balkong 219 6.0 m² 0 1
Sov 220 7.6 m² 1 1
Sov 221 8.3 m² 1 1
Gang 222 6.0 m² 0 2
Entre 223 3.1 m² 0 1
Balkong 224 10.8 m² 0 1
Bad 225 4.9 m² 0 1
Gang 226 4.4 m² 0 1
Balkong 227 10.8 m² 0 1
Balkong 228 6.0 m² 0 1

Garasje 205.8 m²

Etasje 1 205.8 m²

Rom Areal Vinduer Dører
Garasje G01 17.1 m² 0 1
Bod B01 8.1 m² 0 1
Garasje G02 17.1 m² 0 1
Bod B02 7.2 m² 0 1
Garasje G03 17.1 m² 0 1
Bod B03 8.1 m² 0 1
Garasje G04 16.4 m² 0 1
Bod B04 7.8 m² 0 1
Garasje G05 16.5 m² 0 1
Bod B05 7.8 m² 0 1
Garasje G06 17.2 m² 0 1
Bod B06 8.1 m² 0 1
Garasje G07 17.1 m² 0 1
Bod B07 7.2 m² 0 1

Fasader

Rekkehus

Nord
Materiale
Tre
Taktype
Saltak
Vinduer
4
Dører
1
Synlige etasjer
2
Vest
Materiale
Tre
Taktype
Saltak
Vinduer
14
Dører
1
Balkonger
4
Synlige etasjer
3
Sør
Materiale
Tre
Taktype
Saltak
Vinduer
4
Dører
1
Synlige etasjer
2
Øst
Materiale
Tre
Taktype
Saltak
Vinduer
6
Dører
2
Balkonger
2
Synlige etasjer
2

Hendelser

17.04.2026 7/344 - Behandling av søknad om dispensasjon fra rekkefølgekrav - Høgåsen
19.03.2026 7/344 - Søknad om dispensasjon - Høgåsen
02.03.2026 7/344 - Supplering av søknad
23.12.2025 7/344 - Tillatelse til oppføring av flermannsbolig
22.12.2025 7/344 - Innsendt oversikt over bruksareal
18.12.2025 7/344 - Nytt situasjonskart
18.12.2025 7/344 - Det vises til mottatte søknad - Ber om opplysning før behandling kan skje
09.12.2025 7/344 - Søknad om ett-trinn - Nytt bygg - boligformål - Ingen adresse finnes