NewConstruction Ferdigattest Tomannsbolig

Ny tomannsbolig på Jøntelhaugen, Sunndal

📍 Jøntelhaugen 10 , 6612 GRØA

Nøkkelinfo

Sakstype
Nybygg
Bygningstype
Tomannsbolig
Bruksareal
167 m²
Boenheter
2
Kommune
Sunndal
Fylke
Møre og Romsdal
Gnr / Bnr
40 / 66
Saksnummer
25/02025
Fase
Ferdigattest

Om byggesaken

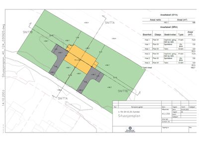
Ny tomannsbolig på totalt 166,7 m² BRA fordelt på to boenheter med separate innganger. Bygget er i én etasje med saltak og flatt tak, og kledd i tre. Fasadene har til sammen 12 vinduer og 5 dører, samt to piper. Bygget inneholder oppholdsrom, gang, bad, vaskerom, sportsbod og teknisk rom. Det er etablert grunnmur, betongarbeider, innvendige trekonstruksjoner, ventilasjonsanlegg, og tilknytning til eksisterende VA-anlegg. Bygget er prosjektert og utført av godkjente foretak med kontroll, og har fått ferdigattest fra kommunen.

Produkter og materialer

VVS Innvendig rørarbeid og sanitærutstyr

Innvendig rørarbeid, montering av utstyr i våtrom, prosjektering av innredning og sanitærutstyr

VVS-installasjoner for våtrom og sanitærutstyr

Tak Saltak og flatt tak

Saltak på tre fasader, flatt tak på en fasade

Tak med saltak på sør/øst, nordøst og sørvest fasader, flatt tak på sør/vest fasade

Vinduer Fasadevindu

🧱 Tre

Antall: 12

6 vinduer på sør/vest, 5 på nordøst, 1 på sørvest fasade

Totalt 12 vinduer i tre på fasadene

Betong Grunnmur og betongarbeider

🧱 Betong

Utførelse av mur- og betongarbeider inkl. grunnmur

Betongarbeider for grunnmur og fundament

Fasade Tre kledning

🧱 Tre

Tre kledning på alle fasader

Ytterkledning i tre på alle fasader

Grunnarbeid Graving og fundamentering

Utskilling av høyde/plan før graving, grunnmur og betongarbeider

Grunnarbeid inkludert graving, fundamentering og grunnmur

Dører Innvendige dører

Innvendige dører mellom rom

Ventilasjon Ventilasjonsanlegg

Montering og innregulering av ventilasjonsanlegg iht produksjonsunderlag

Ventilasjonsanlegg med montering og innregulering

Tømrer Innvendige trekonstruksjoner

🧱 Tre

Ferdigstillelse innvendig inkl. trekonstruksjoner i våtrom

Innvendige trekonstruksjoner og ferdigstilling av innvendige arbeider

Pipe Murpipe

Antall: 2

Pipe på sør/øst og sørvest fasade

To piper på bygget

Bad Bad og vaskerom

Bad og vaskerom med nødvendig utstyr og overflater

Dører Ytterdører

🧱 Tre

Antall: 5

3 dører på sør/vest, 1 på sør/øst, 1 på sørvest fasade

Totalt 5 ytterdører i tre på fasadene

VVS VA-tilknytning og rørfremføring

Tilknytning til eksisterende VA-anlegg og rørfremføring fram til grunnmur

VA-tilknytning og rørarbeid utvendig

Gulv Gulv i bolig

Gulv i oppholdsrom, bad og vaskerom

Fasader

Duplo

Sør/Vest
Materiale
Tre
Taktype
Flatt tak
Vinduer
6
Dører
3
Synlige etasjer
1
Sør/Øst
Materiale
Tre
Taktype
Saltak
Vinduer
0
Dører
1
Synlige etasjer
1
Nordøst
Materiale
Tre
Taktype
Saltak
Vinduer
5
Dører
0
Synlige etasjer
1
Sørvest
Materiale
Tre
Taktype
Saltak
Vinduer
1
Dører
1
Synlige etasjer
1

Hendelser

15.04.2026 25/02025-9 40/138 og 40/139 – Jøntelhaugen 24,26 - ferdigattest for nytt bygg, tomannsbolig
14.04.2026 25/02025-8 40/113 og 40/114 - Jøntelhaugen, ferdigattest for nytt bygg, tomannsbolig
09.04.2026 25/02025-7 Søknad om ferdigattest 40/124
11.09.2025 25/02025-6 40/66 - Jøntelhaugen, nytt bygg, tomannsbolig - boligspesifikasjon i matrikkelen
10.09.2025 25/02025-5 40/66 - Jøntelhaugen godkjent nytt bygg, tomannsbolig
09.09.2025 25/02025-4 40/66 - Jøntelhaugen, nytt bygg, tomannsbolig - snittegning
09.09.2025 25/02025-3 40/66 - Jøntelhaugen, nytt bygg, tomannsbolig - situasjonsplan
09.09.2025 25/02025-2 Situasjonsplan revidert
07.07.2025 25/02025-1 40/124 - søknad om tillatelse i ett trinn