NewConstruction UnderBehandling Tomannsbolig

Ny tomannsbolig med avkjørsel i Knut Bjørhuus vei 4, Drammen

📍 Knut Bjørhuus vei 4 , 3025 DRAMMEN

Nøkkelinfo

Sakstype
Nybygg
Bygningstype
Tomannsbolig
Bruksareal
495 m²
Boenheter
2
Kommune
Drammen
Fylke
Buskerud
Gnr / Bnr
116 / 2284
Saksnummer
22/00855
Fase
Under behandling

Om byggesaken

Ny tomannsbolig oppføres på eiendommen Knut Bjørhuus vei 4 i Drammen kommune. Bygget har tre etasjer inkludert underetasje med integrert dobbel garasje på ca. 42 m², sportsbod, teknisk rom, trimrom, lager, treningskjøkken og bad. Første etasje inneholder stue/spisestue, kjøkken, to soverom, bod, gang, bad og terrasse på ca. 20 m². Andre etasje har stue/spisestue, kjøkken, to soverom, bod, gang, vaskerom, WC, bad og takterrasse på ca. 85 m². Bygget har saltak og flatt tak, med gesimshøyde rundt 6,2-7 meter og mønehøyde opp til 8,4 meter. Tomten er på ca. 530 m² etter arealoverføring, med opparbeidet uteoppholdsareal og støyskjerm mot vei. Det er etablert ny avkjørsel i henhold til godkjent plan og tillatelse fra fylkeskommune. Sprengningsarbeider er gjennomført med tiltak for nabosikring. Prosjektet har gjennomgått flere faser med rammetillatelse, igangsettingstillatelser og midlertidige brukstillatelser, og det gjenstår kun mindre utomhusarbeider før ferdigattest.

Produkter og materialer

Tømrer Tømrerarbeider

Tømrerarbeider utført av DAH AS

Tømrerarbeider for byggkonstruksjon og innredning

Elektro Elektriske installasjoner

Elektriske installasjoner i bolig, ikke nærmere spesifisert

Vinduer Fasadevindu

🧱 Tre

Antall: 14

Fasadevinduer i tre, inkludert større vinduer i 1. og 2. etasje

Gulv Innvendige gulv

Innvendige gulv i bolig, ikke nærmere spesifisert

Tak Saltak og flatt tak med takterrasse

🧱 Taktekking ikke spesifisert

Saltak på hoveddelen, flatt tak på takterrasse

Tak med saltak og flatt tak med takterrasse på ca. 85 m²

Trapper Innvendig trapp

Antall: 1

Innvendig trapp mellom etasjer

VVS Ventilasjon

Prosjektering og utførelse av ventilasjonsanlegg

Ventilasjonsanlegg for bolig

Grunnarbeid Sprengningsarbeider og grunnarbeid

Sprengningsarbeider med tiltak for nabosikring, grunnarbeider utført av ME Graveservice AS

Grunnarbeider og sprengningsarbeider for tomt og fundamentering

Terrasse Takterrasse og terrasse

Antall: 2

Takterrasse ca. 85,8 m² og terrasse ca. 20,5 m²

Uteoppholdsareal på takterrasse og terrasse i 1. etasje

Fasade Tre kledning

🧱 Tre

Tre kledning på alle fasader

Grunnarbeid Arealoverføring og oppmåling

Arealoverføring fra gbnr 116/353 til 116/2284 på 28,2 m², oppmåling utført av Andersen Oppmåling AS

Oppmåling og matrikulering av tomt

Bad Bad med flislegging

Flislegging på bad, utført av DAH AS

Bad med flislagt gulv og vegger

Rekkverk Rekkverk på takterrasse og utvendig trapp

Rekkverk på takterrasse og utvendig trapp, høyde maks 1,6 m

Sikkerhetsrekkverk på takterrasse og utvendig trapp

Dører Ytterdører og garasjeporter

🧱 Tre

Antall: 7

Ytterdører og garasjeporter i tre, inkludert dør til garasje og sportsbod

VVS Sanitæranlegg

Godkjent sanitærabonnement, prosjektering og utførelse av sanitæranlegg

Sanitæranlegg for bolig, inkludert bad og vaskerom

Betong Betongarbeider

Betongarbeider utført av DAH AS

Betongarbeider for fundamenter og konstruksjoner

Plantegning

Enebolig 495.2 m²

Etasje 0 123.6 m²

Rom Areal Vinduer Dører
Garasje Garasje 42.3 m² 0 0
Sportsbod Sportsbod 8.1 m² 0 0
Tekniskrom Tekniskrom 10.2 m² 0 0
Trimrom Trimrom 24.4 m² 0 0
Lager Lager 12.3 m² 0 0
Gang Gang 2.8 m² 0 0
Bod Bod 2.4 m² 0 0
Bod Bod 1.4 m² 0 0
Trapp Trapp 2.2 m² 0 0
Treningskjøkken Treningskjøkken 3.0 m² 0 0
Bad Bad 6.1 m² 0 0
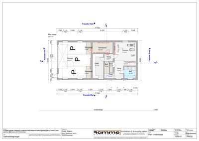
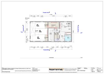
Garasje 001 42.0 m² 0 1
Sportsbod 002 8.4 m² 0 1
Tekniskrom 003 10.2 m² 0 1
Lager 004 12.3 m² 0 1
Gang 005 2.8 m² 0 2
Bod 006 2.4 m² 0 1
Bod 007 1.4 m² 0 1
Trimrom/oppholdsrom 008 24.4 m² 2 1
Treningskjøkken 009 3.0 m² 0 1
Bad 010 6.1 m² 0 1
Trapp 011 2.2 m² 0 0
Garasje P 46.5 m² 0 1
Sportsbod U01 2.5 m² 0 1
Tekniskrom U02 10.2 m² 0 1
Trimrom U03 17.2 m² 0 1
Treningskjøkken U04 3.0 m² 0 1
Bad U05 6.1 m² 0 1
Gang U06 7.2 m² 0 3
Lager U07 12.3 m² 0 1
Bod U08 2.4 m² 0 1
Bod U09 1.4 m² 0 1
Trapp U10 2.2 m² 0 0
Sportsbod U11 2.5 m² 0 1
Sportsbod 101 2.5 m² 0 0
Tekniskrom 102 10.2 m² 0 0
Trimrom 103 17.2 m² 0 0
Gang 104 2.8 m² 0 0
Lager 105 12.3 m² 0 0
Bod 106 2.4 m² 0 0
Bod 107 1.4 m² 0 0
Gang 108 7.2 m² 0 0
Bad 109 6.1 m² 0 0
Treningskjøkken 110 3.0 m² 0 0
Sportsbod 111 2.5 m² 0 0
Trapp 112 2.2 m² 0 0
Trapp 012 2.2 m² 0 0
Sportsbod 013 2.5 m² 0 1
Garasje GP1 44.0 m² 0 1
Tekniskrom 4115 15.8 m² 0 1
Trimmrom 4655 35.0 m² 0 2

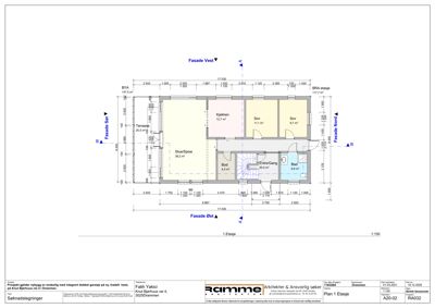
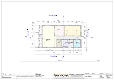
Etasje 1 147.5 m²

Rom Areal Vinduer Dører
Stue/Spise 101 36.2 m² 3 1
Kjøkken 102 12.7 m² 1 1
Sov 103 11.1 m² 1 1
Sov 104 9.7 m² 1 1
Bod 105 4.3 m² 0 1
Entre/Gang 106 20.0 m² 0 2
Bad 107 6.6 m² 0 1
Terrasse 108 20.5 m² 0 1
Terrasse Terrasse 20.5 m² 0 1
Stue/Spise Stue/Spise 36.2 m² 4 1
Kjøkken Kjøkken 12.7 m² 0 1
Soverom Sov 11.1 m² 1 1
Bod Bod 4.3 m² 0 1
Gang Entre/Gang 20.0 m² 0 3
Bad Bad 6.6 m² 1 1
Terrasse 19.8 m² 0 0

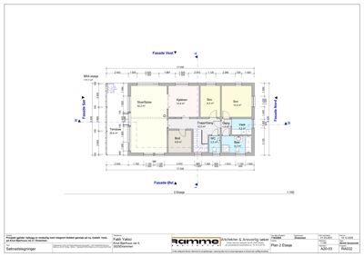
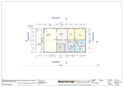
Etasje 2 117.7 m²

Rom Areal Vinduer Dører
Stue/Spise 32.2 m² 2 1
Kjøkken 12.8 m² 0 1
Sov 8.3 m² 1 1
Sov 12.5 m² 1 0
Bod 6.8 m² 0 1
Trapp/Gang 12.5 m² 0 3
Gang 1.9 m² 0 2
WC 2.5 m² 0 1
Vask 4.2 m² 0 1
Bad 6.7 m² 0 1
Stue Stue 32.2 m² 0 1
Kjøkken Kjøkken 12.8 m² 1 1
Soverom Sov 8.3 m² 0 1
Gang Trapp/Gang 12.5 m² 0 0
Bod Bod 6.8 m² 0 1
WC WC 2.5 m² 0 1
Vaskerom Vask 4.2 m² 0 1
Bad Bad 6.7 m² 0 1
Gang Gang 1.9 m² 0 2
Stue/Spise 201 32.2 m² 3 2
Kjøkken 202 12.8 m² 1 1
Sov 203 8.3 m² 1 1
Sov 204 12.5 m² 1 1
Trapp/Gang 205 12.5 m² 0 2
Gang 206 1.9 m² 0 1
Vask 207 4.2 m² 0 1
WC 208 2.5 m² 0 1
Bad 209 6.7 m² 0 1
Bod 210 6.8 m² 0 1
Terrasse Terrasse 20.6 m² 0 1

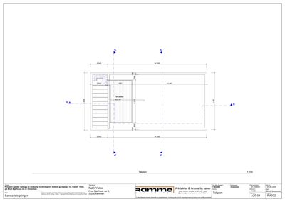
Etasje -1 106.4 m²

Rom Areal Vinduer Dører
Garasje 52.8 m² 0 0
Gang 16.4 m² 0 0

Fasader

Enebolig

Vest
Materiale
Tre
Taktype
Flatt tak
Høyde
7.0 m
Mønehøyde
55.0 m
Vinduer
0
Dører
1
Synlige etasjer
2
Sør
Materiale
Tre
Taktype
Saltak
Høyde
6.2 m
Mønehøyde
8.4 m
Vinduer
0
Dører
1
Synlige etasjer
2
Nord
Materiale
Tre
Taktype
Saltak
Høyde
7.0 m
Mønehøyde
7.3 m
Vinduer
0
Dører
1
Synlige etasjer
2
Øst
Materiale
Tre
Taktype
Saltak
Høyde
6.2 m
Mønehøyde
8.4 m
Vinduer
0
Dører
1
Synlige etasjer
2

Hendelser

15.04.2026 Knut Bjørhuus vei 4, svar på naboklage
26.02.2026 Knut Bjørhuus vei 4, midlertidig brukstillatelse for andre etasje og takterrasse i tomannsbolig
24.02.2026 Knut Bjørhuus vei 4 Supplering av søknad 116/2284
04.02.2026 Knut Bjørhuus vei 4 Søknad om midlertidig brukstillatelse 116/2284
15.01.2026 Knut Bjørhuus vei 4, tillatelse til endring av tidligere gitt tillatelse
15.01.2026 Knut Bjørhuus vei 4 tegninger
29.12.2025 Knut Bjørhuus vei 4 Supplering av søknad 116/2284
19.12.2025 Knut Bjørhuus vei 4 Supplering av søknad 116/2284
17.12.2025 BYGG-22/00040 svar på nabomerknader
10.12.2025 Knut Bjørhuus vei 4 Supplering av søknad 116/2284
08.12.2025 Knut Bjørhuus vei 4, kommunens tilbakemelding om anmodning om fristutsettelse
18.11.2025 Knut Bjørhuus vei 4, anmodning om fristutsettelse
03.11.2025 Knut Bjørhuus vei 4 Supplering av søknad 116/2284
31.10.2025 BYGG-22/00040-57 - Knut Bjørhuus vei 4 Supplering av søknad 116/2284
23.10.2025 Knut Bjørhuus vei 4 Supplering av søknad 116/2284
24.09.2025 Knut Bjørhuus vei 4, vi trenger flere opplysninger for å behandle søknaden din
10.09.2025 Knut Bjørhuus vei 4 Supplering av søknad 116/2284
08.09.2025 Knut Bjørhuus vei 4, Fv. 2724, kopi Endret eller utvidet bruk av avkjørsel - Vedtak
04.09.2025 Knut Bjørhuus vei 4, purring på etterspurt dokumentasjon for å behandle søknaden din
09.07.2025 Knut Bjørhuus vei 4, midlertidig brukstillatelse for deler av enebolig
07.07.2025 Knut Bjørhuus vei 4 Søknad om midlertidig brukstillatelse 116/2284
04.07.2025 Knut Bjørhuus vei 4, ytterligere opplysninger
03.07.2025 Knut Bjørhuus vei 4, vi trenger flere opplysninger for å behandle søknaden din
26.06.2025 Knut Bjørhuus vei 4, avslag på søknad om midlertidig brukstillatelse og anmodning om omgjøring av vedtak
25.06.2025 Knut Bjørhuus vei 4, avslag på søknad om midlertidig brukstillatelse
23.06.2025 Knut Bjørhuus vei 4 Søknad om endring av gitt tillatelse eller godkjenning 116/2284
26.05.2025 Knut Bjørhuusvei 4 varsel om mulig avslag om midlertidig brukstillatelse
30.04.2025 Knut Bjørhuus vei 4 Supplering av søknad 116/2284
25.04.2025 Knut Bjørhuus vei 4, svar på anmodning om fristforlengelse
25.04.2025 Knut Bjørhuus vei 4, anmodning om fristforlengelse
01.04.2025 Knut Bjørhuus vei 4 vi trenger flere opplysninger om søknad om midlertidig brukstillatelse 116/2284
20.03.2025 Knut Bjørhuus vei 4 Søknad om midlertidig brukstillatelse 116/2284
05.02.2025 Knut Bjørhuus vei 4, igangsettelsestillatelse nr. 3 for enebolig
04.02.2025 Knut Bjørhuusvei 4 oppdatert gjennomføringsplan
24.01.2025 Knut Bjørhuus vei 4 Søknad om igangsettingstillatelse 116/2284
09.10.2023 Knut Bjørhuus vei 4, igangsettelsestillatelse nr. 2, nytt bygg - enebolig
05.10.2023 Knut Bjørhuus vei 4, ettersendt dokumentasjon
14.09.2023 Knut Bjørhuus vei 4, vi trenger flere opplysninger for å behandle din søknad om igangsettelse for nytt bygg - enebolig
26.08.2023 Knut Bjørhuus vei 4, melding om mottatt søknad
25.08.2023 Knut Bjørhuus vei 4, Søknad om igangsettingstillatelse 116/2284
20.04.2023 BYGG-22/00040-23 - Knut Bjørhuus vei 4, kopi: henvendelse vedr. sprengningsarbeider
14.04.2023 Knut Bjørhuus vei 4, kopi: henvendelse vedr. sprengningsarbeider
07.11.2022 Knut Bjørhuus vei 4, 114/2284 og 114/353, vedtak om omadressering
13.10.2022 Knut Bjørhuus vei 4, igangsettelsestillatelse for nytt bygg - enebolig
12.10.2022 Knut Bjørhuusvei 4 - godkjent sanitærabonnement
28.09.2022 Knut Bjørhuus vei 4, melding om mottatt søknad
27.09.2022 Knut Bjørhuus vei 4, Søknad om igangsettingstillatelse - IG1 - grunnarbeider
09.03.2022 116/2284, omadressering og ny adresse
08.03.2022 116/2284, Knut Bjørhusvei 4, rammetillatelse til nytt bygg - enebolig
07.03.2022 Knut Bjørhus vei 4 Avkjørselsplan for Knut Bjørhuus vei 22/00040