NewConstruction Ferdigattest Tomannsbolig

Gjenoppføring av tomannsbolig med utleiedel i Kystveien 229C, Arendal

📍 Kystveien 229C , 4841 ARENDAL

Nøkkelinfo

Sakstype
Nybygg
Bygningstype
Tomannsbolig
Bruksareal
283 m²
Boenheter
2
Kommune
Arendal
Fylke
Agder
Gnr / Bnr
511 / 88
Saksnummer
2024/31219
Fase
Ferdigattest

Om byggesaken

Ny gjenoppført tomannsbolig med utleiedel på totalt 283 m² fordelt på to etasjer. Bygget har saltak og trekledning, med to fasader mot sørøst og nordvest. Første etasje inneholder en leilighet på 52,2 m², sportsboder, flere soverom, bad/vaskerom, stue/kjøkken og overbygde inngangspartier. Andre etasje har flere soverom, walk-in garderobe, stor stue/kjøkken på 54,7 m², bad/vaskerom og to terrasser/overbygg. Bygget har pipe, en trapp innvendig, og flere vinduer og dører fordelt på rommene. Varmeforsyning inkluderer elektriske varmekabler, ovn/kamin/peis, luftoppvarming og varmepumpe. Utomhusanlegg er også inkludert i prosjektet.

Produkter og materialer

Bad Våtromsinnredning

Bad og vaskerom med våtromsinnredning og fliser

Fullt utstyrte våtrom i bolig og utleiedel

Trapper Innvendig trapp

🧱 Tre/stål

Antall: 1

Trapp mellom 1. og 2. etasje i bolig

Innvendig trapp for adkomst mellom etasjer

Ventilasjon Mekanisk ventilasjon

Ventilasjonsanlegg for bolig og utleiedel

Mekanisk ventilasjon for inneklima

Tak Saltak

🧱 Tretak med takstein

Antall: 1

Saltak med pipe, taktekking i henhold til standard for bolig

Saltak med takstein og pipe

Pipe Stålpip

🧱 Stål

Antall: 1

Stålpip for ovn/kamin/peis

Pipe tilknyttet varmeovn

Dører Ytterdører og skyvedører

🧱 Tre og glass

Antall: 18

Inkluderer skyvedører til vinterhage og flere ytterdører til sportsboder og innganger

Ytterdører og skyvedører i tre og glass til bolig og utleiedel

Terrasse Terrasse og overbygg

🧱 Tre

Antall: 2

Terrasse/platting på 9,3 m² og terrasse/overbygg på 10,4 m² i 2. etasje

Utendørs terrassearealer med overbygg

Rekkverk Terrasserekkverk

🧱 Tre

Rekkverk på terrasser og overbygg

Sikkerhetsrekkverk på terrasser

VVS Varmefordeling

Elektriske varmekabler, ovn/kamin/peis, luftoppvarming og varmepumpe luft

Varmefordelingssystem med flere varmekilder

Vinduer Fasadevindu

🧱 Tre med 3-lags energiglass

Antall: 20

Vinduer fordelt på 2 fasader, inkludert overlysvinduer i skrå himling

Fasadevinduer i tre med energiglass for bolig og utleiedel

VVS Sanitærinstallasjoner

Sanitærinstallasjoner for bad, vaskerom og kjøkken i bolig og utleiedel

Fullt sanitæranlegg for bolig og utleiedel

Grunnarbeid Grunnarbeid og landskapsutforming

Grunnarbeid, overvannshåndtering og utomhusanlegg

Grunnarbeid og landskapsutforming rundt bolig

Gulv Gulvbelegg og overflater

Gulv med varmekabler og overflater tilpasset boligstandard

Gulvbelegg og varmekabler i bolig

Betong Grunnmur og fundament

🧱 Betong

Betongfundament og grunnmur for bolig

Betongkonstruksjoner for fundament og bærende elementer

Fasade Trekledning

🧱 Tre

Trekledning på fasader sørøst og nordvest

Trekledning som ytterkledning på bolig

Elektro Elektrisk anlegg

Elektrisk anlegg for bolig og utleiedel, inkludert varmekabler

Fullt elektrisk anlegg med varmefordeling

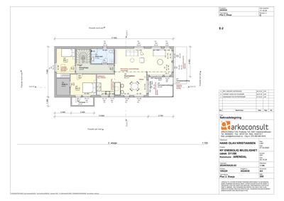
Plantegning

Enebolig 282.9 m²

Etasje 1 118.4 m²

Rom Areal Vinduer Dører
Leilighet 101 52.2 m² 0 0
Sportsbod 102 5.1 m² 0 1
Sov-1 103 9.9 m² 2 1
Entre 104 3.7 m² 0 1
Stue/kjøkken 105 27.1 m² 4 1
Sportsbod/tekn 106 6.5 m² 0 1
Entre 107 8.5 m² 0 1
Bad/vask 108 6.9 m² 0 1
Sov-3 111 11.5 m² 1 1
Overbygd 112 9.4 m² 0 2
Gang/trapp 113 13.2 m² 0 3
Bod 114 8.2 m² 0 1
Overbygd 115 3.1 m² 0 1

Etasje 2 164.5 m²

Rom Areal Vinduer Dører
Sov-1 102 11.2 m² 1 1
Walk in 103 4.8 m² 0 1
Sov-2 104 11.6 m² 1 1
Gang/trapp 105 12.5 m² 0 2
Stue/kjøkken 106 54.7 m² 6 1
Terrasse/platting 107 9.3 m² 0 1
Bådvask 108 7.1 m² 0 1
Terrasse/overbygg 109 10.4 m² 0 1

Fasader

Enebolig

Sørøst
Materiale
Tre
Taktype
Saltak
Vinduer
3
Dører
0
Balkonger
1
Synlige etasjer
2
Nordvest
Materiale
Tre
Taktype
Saltak
Vinduer
2
Dører
0
Synlige etasjer
2

Hendelser

15.04.2026 Fakturagrunnlag - Ferdigattest
15.04.2026 Sentral godkjenning
15.04.2026 Ferdigattest - Kystveien 229 - gjenreisning av bolig med utleiedel
15.04.2026 DOK-analyse - 511/88/0/0 Kystveien 229C
14.04.2026 Kystveien 229C Søknad om ferdigattest 511/88
27.11.2025 Kystveien 229C Supplering av søknad 511/88
17.03.2025 Fakturagrunnlag - BYGG-24_02061 - Brynhild Kristiansen - Igangsettelse.xlsx
17.03.2025 Igangsettelsestillatelse - Kystveien 229C - gjenreising bolig med utleiedel samt utomhusanlegg etter brann
13.03.2025 Kystveien 229C Søknad om igangsettingstillatelse 511/88
07.01.2025 Vedtak - Kystveien 229 C - Søknad om rammetillatelse - gjenoppbygging av bolig med utleiedel og utomhusanlegg etter brann
07.01.2025 Fakturagrunnlag - BYGG-24_02061 - Brynhild Kristiansen
06.01.2025 BYGG-24/02061-2 - 511/88/0/0 - Ber om status i saken
03.01.2025 511/88/0/0 - Ber om status i saken
09.12.2024 Kystveien 229C Søknad om rammetillatelse 511/88