NewConstruction Unknown Tomannsbolig

Riving og ny tomannsbolig på Nedre Rælingsveg 185, Rælingen

📍 Nedre Rælingsveg 185 , 2005 RÆLINGEN

Nøkkelinfo

Sakstype
Nybygg
Bygningstype
Tomannsbolig
Bruksareal
609 m²
Boenheter
2
Kommune
Rælingen
Fylke
Akershus
Gnr / Bnr
103 / 96
Saksnummer
2022/5040
Fase
Unknown

Om byggesaken

Prosjektet omfatter riving av eksisterende enebolig på Nedre Rælingsveg 185 og oppføring av en ny horisontaldelt tomannsbolig med totalt 609 m² BRA. Bygget har to hovedetasjer over en underetasje med integrert garasje og oppbevaringsarealer. Tomannsboligen inneholder to boenheter med fire soverom hver, stue, kjøkken, bad, vaskerom og gangarealer. Bygget har flatt tak og saltak, kledd i naturfarget liggende trepanel med enkelte sortmalte felt, og inkluderer støyskjerm mot vei. Garasjen er under terreng med port ut i åpent terreng, og det er etablert uteområder på takterrasse og terreng. Bygget er prosjektert med hensyn til støy, naboforhold og terrengtilpasning, og har fått dispensasjon for byggehøyder. Prosjektet har omfattende ansvarsrett og kontrollordninger knyttet til arkitektur, konstruksjon, grunnarbeid, VVS, og våtrom.

Produkter og materialer

Annet Støyskjerm

🧱 Tre

Støyskjerm mot Nedre Rælingsveg og på terrasser for støyreduksjon

Støyskjerm for å redusere støybelastning på uteområder

Gulv Innvendige gulv

Gulv i oppholdsrom, bad og vaskerom iht. standard boligutførelse

Innvendige gulv i tomannsboligen

Maling Utvendig og innvendig maling

Maling av trepanel og innvendige overflater

Maling av fasade og innvendige flater

VVS Sanitær og overvann

VVS-installasjoner inkludert sanitærabonnement og overvannshåndtering

VVS-installasjoner for boligene

Elektro Elektriske installasjoner

Elektriske installasjoner iht. TEK17 og gjeldende forskrifter

Elektroinstallasjoner for tomannsboligen

Rekkverk Rekkverk på terrasser og trapper

🧱 Tre/metall

Rekkverk på takterrasse og trapper i brannsikkert materiale

Rekkverk for sikkerhet på terrasser og trapper

Garasjeport Garasjeporter

Antall: 2

Garasjeporter i underetasje for to garasjer på 31 m² hver

Garasjeporter for underetasje garasjer

Tak Flatt tak og saltak

🧱 Taktekking og isolasjon

Flatt tak på hoveddel og saltak på deler av bygget, med isolasjon og membran

Taktekking for tomannsboligen

Grunnarbeid Riving og grunnarbeider

Riving av eksisterende enebolig, grunnarbeider utført av Viken kaso graving AS

Riving av eksisterende bolig og grunnarbeider for ny tomannsbolig

Tømrer Trekonstruksjoner

🧱 Tre

Tømrerarbeider for tomannsboligens trekonstruksjoner og kledning i naturfarget liggende trepanel og sortmalt panel

Tømrerarbeider for boligkropp og fasader

Bad Bad og våtrom

Bad og våtrom med krav til tetthet og uavhengig kontroll

Bad og våtrom i begge boenheter

Trapper Innvendige trapper

🧱 Betong og tre

Antall: 5

3 trapper i kjeller og 2 trapper i bolig, betong i bakkant og tretrapper i bolig

Innvendige trapper i kjeller og bolig

Terrasse Takterrasse og terrengterrasse

🧱 Tre/kompositt

Takterrasse på garasje og terrasser på terreng med støyskjerm

Uteoppholdsarealer på takterrasse og terreng

Vinduer Fasadevindu

🧱 Tre/aluminium

Antall: 28

Store vindusflater mot nord, totalt 28 vinduer fordelt på 2 boenheter

Vinduer for stue, kjøkken og soverom i tomannsboligen

Dører Ytterdører og innerdører

🧱 Tre/Glass

Antall: 44

Ytterdører og innerdører til rom og hybel, totalt 44 dører

Dører for inngang, rom og hybel i tomannsboligen

Betong Plasstøpt betong

🧱 Betong

Betongarbeider for fundamenter, garasje og trapper i brannsikkert materiale

Betongarbeider for underetasje, garasje og trapper

Mur Fundament og grunnmur

🧱 Betong

Fundament og grunnmur i betong under bygget

Grunnmur og fundamentering

Ventilasjon Ventilasjonssystem

Ventilasjon iht. TEK17 krav

Ventilasjonssystem for boligene

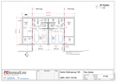
Plantegning

Kjeller 265.0 m²

Etasje 0 265.0 m²

Rom Areal Vinduer Dører
Treningsrom A001 22.0 m² 0 1
Bod A005 9.0 m² 0 1
Bod A002 4.0 m² 0 1
Gang A004 11.0 m² 0 1
Teknisk A003 5.0 m² 0 0
Garasje A006 31.0 m² 0 0
Treningsrom B001 22.0 m² 0 1
Bod B005 9.0 m² 0 1
Bod B002 4.0 m² 0 1
Gang B004 11.0 m² 0 1
Teknisk B003 5.0 m² 0 0
Garasje B006 31.0 m² 0 0

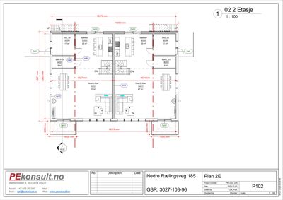
2M-bolig 676.0 m²

Etasje 0 168.0 m²

Rom Areal Vinduer Dører
Garasje 00 168.0 m² 0 2

Etasje 1 278.0 m²

Rom Areal Vinduer Dører
Stue 101 0.0 m² 2 2
Kjøkken 102 0.0 m² 1 1
Vaskerom 103 0.0 m² 0 1
Gang 104 0.0 m² 0 3
Bad 105 0.0 m² 0 1
Sovev. 1 106 0.0 m² 1 1
Sovev. 2 107 0.0 m² 1 1
Sovev. 3 108 0.0 m² 1 1
Sovev. 4 109 0.0 m² 1 1

Etasje 2 230.0 m²

Rom Areal Vinduer Dører
Stue 201 0.0 m² 2 2
Kjøkken 202 0.0 m² 1 1
Vaskerom 203 0.0 m² 0 1
Gang 204 0.0 m² 0 3
Bad 205 0.0 m² 0 1
Sovev. 1 206 0.0 m² 1 1
Sovev. 2 207 0.0 m² 1 1
Sovev. 3 208 0.0 m² 1 1
Sovev. 4 209 0.0 m² 1 1

Enebolig 585.3 m²

Etasje 1 238.5 m²

Rom Areal Vinduer Dører
WIC A101 7.0 m² 0 1
Bad1_01 A102 5.0 m² 0 1
Bad1_02 A103 12.0 m² 0 1
SR1_01 A104 16.0 m² 0 2
Hall A105 18.0 m² 0 4
Gang A106 4.0 m² 0 2
SR1_02 A107 12.0 m² 0 1
SR1_03 A108 10.0 m² 0 1
SR1_04 A109 14.0 m² 0 1
WIC B101 7.0 m² 0 1
Bad1_01 B102 5.0 m² 0 1
Bad1_02 B103 12.0 m² 0 1
SR01_01 B104 16.0 m² 0 2
Hall B105 19.0 m² 0 4
Gang B106 4.0 m² 0 2
SR1_02 B107 12.0 m² 0 1
SR1_03 B108 10.0 m² 0 1
SR1_04 B109 14.0 m² 0 1

Etasje 2 346.8 m²

Rom Areal Vinduer Dører
Stue/S-Stue A201 67.0 m² 5 1
Stue/S-Stue B201 67.0 m² 5 1
Kjøkken A202 29.0 m² 1 1
Kjøkken B202 29.0 m² 1 1
Bad 2-03 A203 6.0 m² 0 1
Bad 2-03 B203 6.0 m² 0 1
SR2_05 A204 11.0 m² 1 1
SR2_05 B204 11.0 m² 1 1

Fasader

Enebolig

Nord
Materiale
Tre
Taktype
Flatt tak
Høyde
5.6 m
Mønehøyde
5.8 m
Vinduer
10
Dører
2
Balkonger
2
Synlige etasjer
3
Sør
Materiale
Tre
Taktype
Flatt tak
Høyde
5.6 m
Mønehøyde
5.8 m
Vinduer
2
Dører
0
Synlige etasjer
3
Vest
Materiale
Tre
Taktype
Saltak
Høyde
5.8 m
Mønehøyde
8.6 m
Vinduer
6
Dører
1
Balkonger
1
Synlige etasjer
2
Øst
Materiale
Tre
Taktype
Saltak
Høyde
5.8 m
Mønehøyde
8.6 m
Vinduer
5
Dører
1
Synlige etasjer
2

Hendelser

10.04.2026 Avslutning av sak - Riving av eksisterende enebolig og oppføring av tomannsbolig - Nedre Rælingsveg 185 Gnr/Bnr 103/96
09.04.2026 Bekreftelse på oppstart av rivingsarbeid - Nedre Rælingsveg 185 - Gnr/Bnr/Fnr/Snr 103/96
28.08.2024 Bortfall av tillatelsen, jf. pbl § 21-9 - Riving av eksisterende enebolig og oppføring av tomannsbolig - Nedre Rælingsveg 185 Gnr/Bnr 103/96
19.07.2023 IG - Igangsettingstillatelse - Nybygg tomannsbolig, rivning eksisterende bolig - Nedre Rælingsveg 185 gnr/bnr 103/96
07.07.2023 Mangelbrev - Søknad om igangsettingstillatelse - Nedre Rælingsveg 185 - Gnr 103 Bnr 96
06.07.2023 Bekreftelse på mottatt søknad - Søknad om igangsettelse - Nedre Rælingsveg 185. gbnr 103/96
04.07.2023 Søknad om igangsettelse - Nedre Rælingsveg 185 - Gnr/Bnr/Fnr/Snr 103/96
31.01.2023 Tilbakemelding om mulighet til endring av gitt tillatelse - Oppføring av flere boenheter - Nedre Rælingsveg 185 - Gnr/Bnr/Fnr/Snr 103/96
13.01.2023 Forespørsel om oppstartsmøte
04.01.2023 Svar på forhåndskonferanse - 3 rekkehus - Nedre Rælingsveg 185 - Gnr/Bnr/Fnr/Snr 103/96
02.01.2023 Forespørsel om oppstartsmøte
12.12.2022 Forhåndskonferanse 103/96 Nedre Rælingsveg 185