NewConstruction Ferdigattest Tomannsbolig

Ny tomannsbolig med sekundærleiligheter i Nyveien 52-58, Slemmestad

📍 Nyveien 52-58

Nøkkelinfo

Sakstype
Nybygg
Bygningstype
Tomannsbolig
Bruksareal
448 m²
Boenheter
4
Kommune
Asker
Fylke
Akershus
Gnr / Bnr
241 / 98
Saksnummer
20/1248
Fase
Ferdigattest

Om byggesaken

Ny tomannsbolig i fire etasjer med totalt fire boenheter, inkludert to hovedenheter og to sekundærleiligheter på 60 m² hver. Bygget har et samlet bruksareal på ca. 448 m² og en bebygd areal (BYA) på 178 m², med totalt utnyttelse på 22,35 %. Bygningen har mansardtak med takterrasse, og fasaden er kledd i tre. Hver boenhet har separate innganger, gode uteoppholdsarealer, balkonger og terrasser. Bygget er utstyrt med balansert ventilasjon, vannbåren gulvvarme, sprinkleranlegg, og har gjennomgått kontroll av våtrom og lufttetthet. Det er etablert parkeringsplasser for alle boenheter, og uteområdene er permeable med gressplen og gruslagte stier. Bygget har fått ferdigattest i 2024 etter fullført bygging og oppfyllelse av alle krav.

Arbeidsomfang

- Oppføring av ny tomannsbolig med sekundærleiligheter (seksjonene 1-4) - Grunnarbeider inkludert betongfundament - Mureri og oppføring av bærende vegger - Tømreri: takkonstruksjon, loftsetasje og innvendige etasjeskiller - Vindusmontering (dører/vinduer) - Installasjon av trapper mellom etasjene (inkludert rekkverk) - Montering av balkonger - Rørleggeri: vann-, avløps- og sprinkleranlegg - Elektrikeri: installasjon av strøm, lys og sikkerhetssystemer - Blikkenslageri: taktekking og eventuelt pipe/takrenner - Maleri og flislegging (innvendig/utvendig) - Gulvlegging

Produkter og materialer

Maling Innvendig og utvendig maling

Antall: 1

Innvendig og utvendig maling av trepanel og innvendige flater.

Overflatebehandling av fasade og innvendige vegger.

Betong Fundamenter og støpte gulv/vegger

🧱 Betong

Antall: 1

Fundamenter, støpt gulv og vegger med radontiltak.

Betongfundamenter og støpte konstruksjoner med radonsikring.

Grunnarbeid Terrengarbeider og VA-anlegg

Antall: 1

Grunnarbeider, veg- og terrengarbeider, vann- og avløpsanlegg med stikkledninger.

Opparbeidelse av tomt med terrengjustering, finplanering og VA-tilknytning.

Tømrer Trekonstruksjon og montering

🧱 Tre

Antall: 1

Tømrerarbeid og montering av trekonstruksjon for bygget.

Trekonstruksjon for bærende og ikke-bærende elementer i bygget.

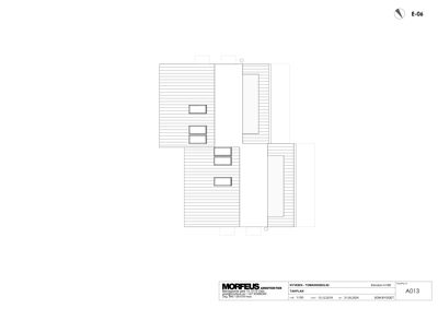
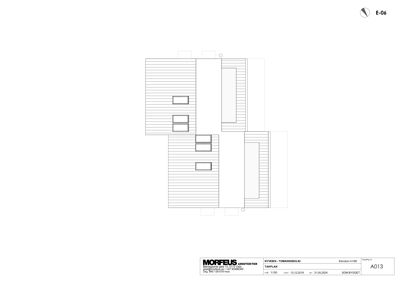
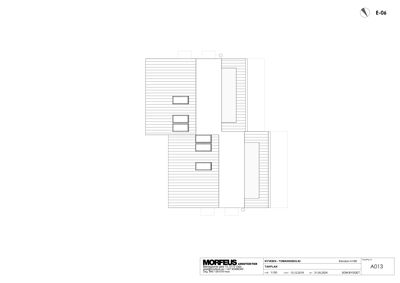
Tak Mansardtak med takterrasse

🧱 Tre og taktekking

Antall: 1

Mansardtak med takterrasse skåret inn i skrå takflate mot vest.

Tak med mansardform og takterrasse for oppholdsareal.

Bad Våtrom

Antall: 8

Bad og våtrom i alle boenheter med kontroll av våtrom og lufttetthet.

Fullt utstyrte bad og våtrom i hver boenhet.

VVS Sprinkleranlegg

Antall: 4

Sprinkleranlegg med trykksatte sprinklersentraler i hver boenhet.

Brannslukkingsanlegg med sprinklersentraler montert og trykksatt.

Trapper Innvendig trapp

Antall: 2

Trapp i boenhet 56 med spilevegg og permanent håndløper på begge sider, samt trapper i andre boenheter der det er relevant.

Innvendige trapper i boenheter med tilhørende rekkverk og spilevegger.

Ventilasjon Balansert ventilasjon

Antall: 4

Balansert ventilasjon for 4-mannsbolig, ett anlegg per boenhet.

Ventilasjonsanlegg med balansert ventilasjon i hver boenhet.

Terrasse Takterrasse og uteområder

Antall: 2

Takterrasse på loft og opparbeidede uteområder med permeable overflater.

Uteoppholdsarealer på takterrasse og terreng med gressplen og gruslagte stier.

Rekkverk Glassrekkverk og spilevegg

🧱 Glass og tre

Antall: 2

Glassrekkverk på balkonger og spilevegg langs innvendig trapp.

Sikring av balkonger og trapper med rekkverk i glass og tre.

Elektro Elektriske installasjoner

Antall: 4

Elektriske installasjoner i alle boenheter.

Fullstendig elektrisk anlegg for boligene.

Gulv Parkett

🧱 Eik eller tilsvarende

Innvendig parkettgulv i boenheter.

Parkettgulv i oppholdsrom og soverom.

Fasade Trepanel

🧱 Tre

Antall: 1

Trepanelkledning på alle fasader.

Fasade kledd i trepanel som harmonerer med nabobebyggelsen.

Dører Ytterdører og balkongdører

🧱 Tre

Antall: 10

Ytterdører og balkongdører i tre, inkludert 2 dører på vestfasade, 1 på sørfasade, 1 på nordfasade, 4 på østfasade og flere inngangsdører til boenheter.

Vinduer Fasadevindu

🧱 Tre

Antall: 36

Fasadevinduer i tre fordelt på alle fasader, inkludert 6 vinduer på ukjent fasade, 10 på østfasade, 10 på vestfasade, 5 på sørfasade og 5 på nordfasade.

VVS Vannbåren gulvvarme

Antall: 4

Vannbåren gulvvarme i hver boenhet.

Varmefordeling med vannbåren gulvvarme i alle boenheter.

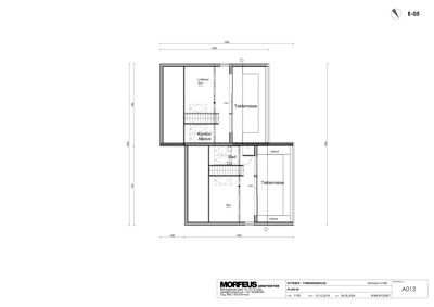
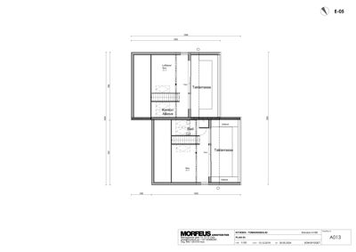
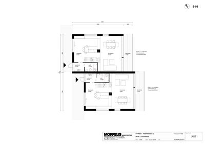
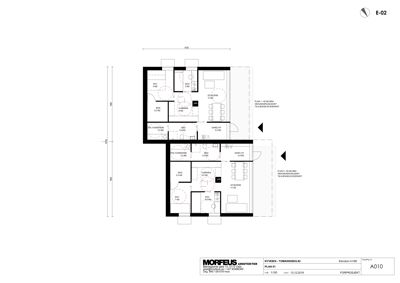
Plantegning

Enebolig 538.7 m²

Etasje 1 168.6 m²

Rom Areal Vinduer Dører
Stue 101 33.9 m² 1 1
Kjøkken 102 26.2 m² 0 1
Vindfang 103 4.2 m² 1 2
Bad 104 2.9 m² 0 1
Vaskerom 105 2.9 m² 0 1
Terrasse 106 14.4 m² 0 1
Peis 107 0.0 m² 0 0
Gard./vf 108 5.5 m² 0 1
Vindfang 101-B 4.2 m² 0 1
Bad/Vaskerom 102-B 4.7 m² 0 1
Kjøkken 103-B 26.2 m² 0 1
Stue 104-B 33.9 m² 1 1
Peis 105-B 0.0 m² 0 0
Terrasse 106-B 13.7 m² 0 1
Stue / Kjøkken U-01-A 26.3 m² 1 2
VF/Gard U-02-A 5.6 m² 0 1
Bad U-03-A 5.4 m² 0 2
Teknisk/ Bod U-04-A 3.9 m² 0 1
Bod U-05-A 4.6 m² 0 1
Sov U-06-A 8.8 m² 1 1
Sov U-07-A 5.2 m² 1 1
Stue / Kjøkken U-01-B 26.3 m² 1 2
VF/Gard U-02-B 5.6 m² 0 1
Bad U-03-B 5.4 m² 0 2
Teknisk/ Bod U-04-B 3.9 m² 0 1
Bod U-05-B 4.6 m² 0 1
Sov U-06-B 8.7 m² 1 1
Sov U-07-B 5.2 m² 1 1
Sov 201-A 12.1 m² 1 1
Sov 202-A 10.8 m² 1 1
Allrom 203-A 13.0 m² 2 2
Sov 204-A 9.4 m² 1 1
Sov 205-A 9.0 m² 1 1
Bad 206-A 5.0 m² 0 1
Bod/Teknisk 207-A 8.8 m² 0 1

Etasje 2 168.6 m²

Rom Areal Vinduer Dører
Stue 201 33.9 m² 1 1
Kjøkken 202 29.2 m² 0 1
Vindfang 203 4.2 m² 1 2
Bad/Vaskerom 204 4.7 m² 0 1
Terrasse 205 13.7 m² 0 1
Peis 206 0.0 m² 0 0
Vindfang 101-A 4.2 m² 0 1
Kjøkken 102-A 29.2 m² 0 1
Bad 103-A 2.9 m² 0 1
Vaskerom 104-A 2.9 m² 0 1
Stue 105-A 33.9 m² 1 1
Peis 106-A 0.0 m² 0 0
Terrasse 107-A 14.4 m² 0 1
Sov 201-B 9.8 m² 1 1
Sov 202-B 14.0 m² 1 1
Allrom 203-B 14.8 m² 2 2
Sov 204-B 8.8 m² 1 1
Sov 205-B 8.2 m² 1 1
Bad 206-B 6.7 m² 0 1
Bod/Teknisk 207-B 5.1 m² 0 1
SOV 207 8.5 m² 1 1

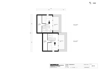
Etasje 3 120.5 m²

Rom Areal Vinduer Dører
Lofstue/Sov 301 16.8 m² 1 1
Kontor/Alkove 302 0.0 m² 0 1
Takterasse 303 0.0 m² 0 0
ALLROM 304 16.5 m² 0 2
BAD 305 6.5 m² 0 1
BOD 306 5.0 m² 0 1
SOV 307 8.5 m² 1 1

Etasje 4 21.0 m²

Rom Areal Vinduer Dører
Lagring 401 0.0 m² 0 1
Loftstue 402 23.0 m² 0 1
Takterrasse 403 15.0 m² 0 0

Etasje 0 60.0 m²

Rom Areal Vinduer Dører
Stue/spis 001 17.0 m² 0 1
Kjøkken 002 9.5 m² 0 1
Sov 003 7.0 m² 1 1
Sov 004 6.5 m² 1 1
Bod 005 5.0 m² 0 1
Tek./vaskerom 006 3.5 m² 0 1
Bad 007 5.0 m² 0 1
Gard./vf 008 5.5 m² 0 1

NYVEIEN - TOMANNSBOLIG 0.0 m²

Etasje 2 0.0 m²

Rom Areal Vinduer Dører

Fasader

Tomannsbolig

Ukjent
Vinduer
6
Dører
0
Synlige etasjer
0
Vest
Materiale
Tre
Taktype
Flatt tak
Vinduer
10
Dører
2
Balkonger
2
Synlige etasjer
4
Sør
Materiale
Tre
Taktype
Saltak
Vinduer
5
Dører
1
Balkonger
1
Synlige etasjer
2
Nord
Materiale
Tre
Taktype
Saltak
Vinduer
5
Dører
1
Balkonger
1
Synlige etasjer
2
Øst
Materiale
Tre
Taktype
Flatt tak
Vinduer
10
Dører
4
Synlige etasjer
2

Hendelser

07.04.2026 241/98 Nyveien 52, 54, 56 og 58 - Deponi med urene masser ved innkjøringen til Berger vel
19.01.2026 241/98 Nyveien 52,54 og 56 Tilbakebetaling av uriktig innkrevd gebyr for ferdigattest - Nybygg tomannsbolig med sekundærleiligheter ferdigattest
21.06.2024 241/98/0/1,2,3,4 - Nyveien 52 - Ferdigattest - Nybygg tomannsbolig med sekundærleiligheter ferdigattest
03.06.2024 241/98 Nyveien 25, 54, 56 og 58 - Søknad om ferdigattest ferdigattest
08.04.2024 241/98/0/4 Nyveien 58 (seksjon 4) - Midlertidig brukstillatelse - Nybygg tomannsbolig midlertidig_brukstillatelse
04.04.2024 241/98 Nyveien 58 (seksjon 4) - Bilde av trapp
02.04.2024 241/98/0/4 Nyveien 58 - Tilleggsinformasjon til søknad om midlertidig brukstillatelse brukstillatelse
11.03.2024 241/98 Nyveien 52-58 - Søknad om midlertidig brukstillatelse brukstillatelse
05.01.2024 241/88 - Rørlegger og søker bekrefter utstyrsmontering - Boenhet 1, 2 og 3
05.01.2024 241/98/0/1 Nyveien 52, 54 og 56 (seksjon 1,2 og 3) - Midlertidig brukstillatelse - Nybygg tomannsbolig midlertidig_brukstillatelse
05.01.2024 241/88 - Mangler i søknad om brukstillatelse boenhet 1, 2 og 3 brukstillatelse
19.12.2023 241/88 Bilder av ferdigstilt trapp - Boenhet 1, 2 og 3 - Søknad om midlertidig brukstillatelse midlertidig_brukstillatelse
19.12.2023 241/88 Trykksatt sprinkleranlegg og bilde av trapp/rekkverk - Boenhet 1, 2 og 3 - Søknad om midlertidig brukstillatelse midlertidig_brukstillatelse
18.12.2023 241/88 Sprinklersentraler montert - boenhet 1, 2 og 3
11.12.2023 241/98 Nyveien 52,54,56 og 58 - Bekreftelse balkong og innvendig trapp er montert - Søknad om brukstillatelse brukstillatelse
28.11.2023 241/98 Nyveien 52-58 - Søknad om midlertidig brukstillatelse midlertidig_brukstillatelse
01.06.2022 241/98 Nyveien 52,54,56,58 - Igangsettingstillatelse 2 - Resterende arbeider - Nybygg tomannsbolig igangsettingstillatelse
25.05.2022 241/98 Søknad om igansettingstillatelse for resterende arbeider - Nybygg tomannsbolig søknad
18.05.2022 241/98 Igangsettingstillatelse for grunnarbeider - Nybygg tomannsbolig igangsettingstillatelse
24.03.2022 241/98 Søknad om igangsettingstillatelse for grunnarbeider - Nybygg tomannsbolig igangsettingstillatelse
05.05.2020 241/98 Ber om endring av tillatelse - Søknad om nybygg tomannsbolig søknad
25.03.2020 241/98 Endring av vilkår i rammetillatelese - Søknad om nybygg tomannsbolig søknad
20.03.2020 241/98 Rammetillatelse - Nybygg tomannsbolig rammetillatelse
10.03.2020 241/98 - Vi ber om informasjon - Søknad om nybygg tomannsbolig søknad
10.02.2020 241/98 Søknad om nybygg tomannsbolig søknad
10.02.2020 241/98 Kvitterigsbrev - søknad om nybygg tomannsbolig søknad
30.01.2020 241/98 Merknad til nabovarsel - Søknad om nybygg tomannsbolig nabovarsel