NewConstruction Ferdigattest Tomannsbolig

Vertikaldelt tomannsbolig med garasjer i Øygardsveien 4, Farsund

📍 Øygardsveien 4 , 4550 FARSUND

Nøkkelinfo

Sakstype
Nybygg
Bygningstype
Tomannsbolig
Bruksareal
241 m²
Boenheter
2
Kommune
Farsund
Fylke
Agder
Gnr / Bnr
434 / 0
Saksnummer
25/00219
Fase
Ferdigattest

Om byggesaken

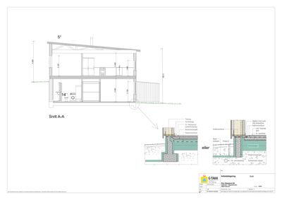
Ny vertikaldelt tomannsbolig i to etasjer med totalt bebygd areal på ca. 170,8 m², fordelt på to boenheter med hver sin garasje på 22,9 m². Bygget har pulttak og flatt tak, og er oppført i trekonstruksjon med trepanel på fasadene. Hver boenhet inneholder kjøkken/stue, flere soverom, bad, walk-in-closet, entre, sluse og garasje. Bygget har totalt 14 vinduer, flere dører, balkonger og pipe. Det er etablert avkjørsler i tråd med kommunens normer. Bygget er tilkoblet offentlig vann- og avløp, og har ventilasjon, sanitærinstallasjoner og elektriske varmekabler samt varmepumpe. Lydskille mellom boenhetene er utført etter Sintef 524.305. Bygget er ferdigstilt og det foreligger ferdigattest.

Produkter og materialer

Elektro Elektriske varmekabler

Elektriske varmekabler for varmefordeling i bygget

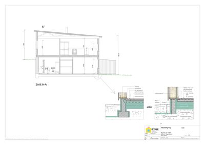
Betong Plasstøpte betongkonstruksjoner

🧱 Betong

Plasstøpte betongkonstruksjoner for fundament og bærende konstruksjoner

Garasjeport Garasjeport

Antall: 2

To garasjeporter tilhørende hver boenhet

Trapper Innvendige trapper

Antall: 2

To innvendige trapper i tomannsboligen

Ventilasjon Ventilasjon- og klimainstallasjoner

Ventilasjon og klimainstallasjoner prosjektert og utført av ansvarlig foretak

Vinduer Fasadevindu

🧱 Tre/aluminium

Antall: 14

Fasadevindu i tre med muligens aluminiumskledning, totalt 14 stk fordelt på begge boenheter

Fasade Trepanel

🧱 Tre

Fasader kledd med trepanel

Gulv Isolasjon og gulvflater

🧱 Isolasjon, eikeparkett (antatt)

Lydskille utføres etter Sintef 524.305, 10 cm isolasjon med drensspor og duk

Isolasjon i gulvkonstruksjon og lydskille mellom boenheter

VVS Sanitærinstallasjoner

Sanitærinstallasjoner for vann og avløp i henhold til TEK17

Grunnarbeid Veg, utearealer og grunnarbeider

Grunnarbeider og utearealer utført av ansvarlig entreprenør

Rekkverk Balkongrekkverk

Antall: 5

Rekkverk høyde 1,0 m

Rekkverk på balkonger og utstikk betongdekke

Bad Våtromsinnredning

Antall: 6

Bad i hver boenhet, totalt 6 bad fordelt på to etasjer

Tak Pulttak og flatt tak

🧱 Tretak med taktekking

Tak med pulttak og flatt tak, utført i tre med taktekking

Kjøkken Kjøkkeninnredning

Antall: 2

Kjøkken i hver boenhet med tilhørende stue

Varmepumpe Luft-til-luft varmepumpe

Antall: 1

Varmepumpe for energiforsyning til bygget

Dører Ytterdører og innerdører

🧱 Tre

Antall: 30

Ytterdører og innerdører i tre, totalt ca. 30 stk fordelt på boenheter, garasjer og sluser

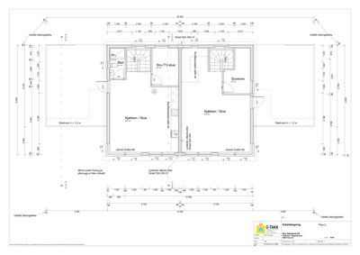
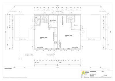
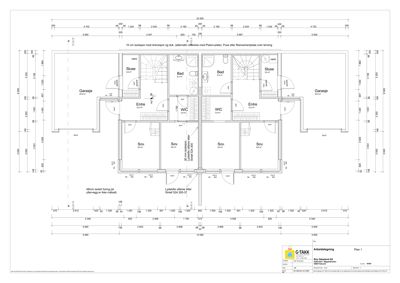
Plantegning

Enebolig 241.0 m²

Etasje 1 120.5 m²

Rom Areal Vinduer Dører
Garasje 001 22.9 m² 0 1
Sluse 002 3.8 m² 0 1
Entre 003 12.2 m² 0 2
Sov. 004 9.6 m² 1 1
Sov. 005 9.6 m² 1 1
WIC 006 3.8 m² 0 1
Bad 007 6.4 m² 0 1
Sov. 008 9.6 m² 1 1
Sov. 009 9.6 m² 1 1
WIC 010 3.9 m² 0 1
Entre 011 12.2 m² 0 2
Bad 012 6.4 m² 0 1
Sluse 013 3.8 m² 0 1
Garasje 014 22.9 m² 0 1
Kjøkken / Stue 101 37.3 m² 4 2
Sov/TV-stue 102 6.7 m² 1 1
Bad 103 3.1 m² 0 1
Soverom 104 6.5 m² 1 1
Sov. 105 9.6 m² 1 1
WIC 106 3.8 m² 0 1
Bad 107 6.4 m² 0 1
Sov. 108 9.6 m² 1 1
Sov. 109 9.6 m² 1 1
WIC 110 3.9 m² 0 1
Entre 111 12.2 m² 0 3
Bad 112 6.4 m² 0 1
Sluse 113 3.8 m² 0 2
Garasje 114 22.9 m² 0 1

Etasje 2 120.5 m²

Rom Areal Vinduer Dører
Kjøkken / Stue 201 37.3 m² 3 2
Sov/Tv-stue 202 6.7 m² 1 1
Soverom 203 6.5 m² 1 1
Bad 204 3.1 m² 0 1

Fasader

Enebolig

Nord-nord-vest
Materiale
Tre
Taktype
Pulttak
Vinduer
3
Dører
1
Balkonger
1
Synlige etasjer
2
Vest-sør-vest
Materiale
Tre
Taktype
Flatt tak
Vinduer
4
Dører
1
Balkonger
2
Synlige etasjer
1
Sør-sør-vest
Materiale
Tre
Taktype
Pulttak
Vinduer
3
Dører
1
Balkonger
1
Synlige etasjer
2
Øst-nord-øst
Materiale
Tre
Taktype
Flatt tak
Vinduer
10
Dører
3
Balkonger
2
Synlige etasjer
2

Hendelser

14.04.2026 25/00219-13 Logger for sak BYGG-25/00037
30.03.2026 25/00219-12 Ferdigattest vertikaldelt tomannsbolig, 4/434 snr 1 og 2. Dalsveien 2A - Øygardsveien 7
27.03.2026 25/00219-10 Søknad om ferdigattest vertikaldelt tomannsbolig - 4/434, Øygardsveien/Dalsveien
27.03.2026 25/00219-11 DOK-analyse - 4/434/0/0
03.06.2025 25/00219-9 Melding om endring av tiltakshaver - 4/434
28.05.2025 25/00219-8 Henvendelse vedrørende korrespondanse og faktura - tomannsbolig - 4/434, Øygardsveien 4
16.05.2025 25/00219-7 Igangsettingstillatelse tomannsbolig 4/434, Øygardsveien 4
15.05.2025 25/00219-6 Søknad om igangsettingstillatelse - 4/434
20.03.2025 25/00219-5 Oversendelse av vedtak i dispensasjonssak - søknad om oppføring av tomannsbolig 4/434, Øygardsveien 4
13.03.2025 25/00219-4 Saksutskrift - Søknad om tomannsbolig 4/434, Øygardsveien