NewConstruction UnderBehandling Tomannsbolig

Ny vertikaldelt tomannsbolig i Ramsdalen 20, Bømlo

📍 Ramsdalen 20A , 5420 RUBBESTADNESET

Nøkkelinfo

Sakstype
Nybygg
Bygningstype
Tomannsbolig
Bruksareal
144 m²
Boenheter
2
Kommune
Bømlo
Fylke
Vestland
Gnr / Bnr
82 / 66
Saksnummer
2021/7257
Fase
Under behandling

Om byggesaken

Ny vertikaldelt tomannsbolig på totalt 144 m² BRA fordelt på to boenheter à 72 m² hver, med tilhørende boder og utvendige plattinger på ca. 20,8 m². Bygget er i tre med saltak og flatt tak på enkelte fasader, og har pipe. Hver boenhet inneholder stue/kjøkken, to soverom, bad, teknisk bod og sportsbod. Bygget er tilknyttet offentlig vann og avløp, og har parkeringsareal på tomten. Fasader er i tre med sikkerhetsglass i vinduer og balkongdører der det er nødvendig. Bygget er prosjektert med brannsikring, radonsikring, ventilasjon og våtrom i henhold til gjeldende forskrifter. Det foreligger godkjent byggeløyve, midlertidige brukstillatelser og søknad om ferdigattest er sendt.

Produkter og materialer

Dører Ytterdører og boddører

Antall: 10

Ytterdører til boenheter og tekniske rom, sportsbod og boder

Gulv Innvendige gulvflater

Innvendige gulv i boenheter og boder

Mur Støttemur/terrengarbeid

Terrengarbeid og eventuell støttemur iht. reguleringsplan

Terrengarbeid og eventuell støttemur i tilknytning til bygget

VVS Innvendig vann og avløp

Bunnledninger og innvendige VA-installasjoner tilknyttet offentlig vann og avløp

VVS-installasjoner for vann og avløp i bygget

Tak Saltak og flatt tak

Saltak med takvinkel 10°, flatt tak på enkelte fasader

Tak med saltak og flatt tak på deler av bygget

Pipe Skorstein

Antall: 2

Skorstein for hver boenhet, unntak ved vannbåren varme

Skorstein for oppvarming, unntatt der vannbåren varme dekker behov

Fasade Trepanel

🧱 Tre

Trefasader med saltak og flatt tak på enkelte fasader

Yttervegger kledd med trepanel, saltak og flatt tak på deler av bygget

Vinduer Fasadevindu og balkongdører

🧱 Sikkerhetsglass

Antall: 14

Sikkerhetsglass på vinduer og balkongdører med brystningshøyde under 0,8 m

Vinduer og balkongdører med 3-lags energiglass og sikkerhetsglass der det kreves

Tømrer Komplett tømrerarbeid

🧱 Tre

Tømrerarbeid for komplett trehus inkl. arkitektur, brannsikring, radonsikring, byggkonstruksjon, våtrom og ventilasjon

Komplett tømrerarbeid for tomannsbolig i tre

Betong Ringmur, plate på mark

Ringmur, bæreveggsfundament og støpt plate

Betongarbeid for fundament og bærende konstruksjoner

Grunnarbeid Byggegrop, komprimering, oppfylling ringmur

Avretting, komprimering, oppfylling ringmur, sikring av skjæring

Grunnarbeid for fundamentering og sikring av byggeplass

Terrasse Utvendige plattinger

🧱 Tre

Antall: 2

Utvendige plattinger på ca. 11,5 m² per boenhet

Terrasse/platting utenfor hver boenhet

Bad Bad og våtrom

Antall: 2

Bad på 6,4 m² per boenhet med våtromsstandard

Bad med våtromsstandard i hver boenhet

Elektro Strømskap og vannskap

Strømskap og vannskap i bygget

Elektriske installasjoner for strøm og vann

Ventilasjon Ventilasjonsaggregat

Antall: 2

Ventilasjonsaggregat for hver boenhet

Ventilasjonsanlegg for boligene

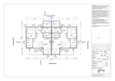
Plantegning

Enebolig 144.0 m²

Etasje 1 144.0 m²

Rom Areal Vinduer Dører
Utvidet platting U-01 11.5 m² 2 0
Utv. platting V-03 11.5 m² 2 0
Soverom Sov 1 12.8 m² 1 1
Soverom Sov 2 7.0 m² 1 1
Entré Entre 4.6 m² 0 2
Stue/Kjøkken Stue/Kjøkken 34.1 m² 2 0
Bad Bad 6.4 m² 0 1
Teknisk bod Teknisk bod 4.0 m² 0 1
Sportsbod Sportsbod 5.1 m² 1 1

Fasader

Enebolig

Vest
Materiale
Tre
Taktype
Saltak
Vinduer
1
Dører
2
Synlige etasjer
1
Øst
Materiale
Tre
Taktype
Saltak
Vinduer
1
Dører
2
Synlige etasjer
1
Nord
Materiale
Tre
Taktype
Saltak
Vinduer
2
Dører
2
Synlige etasjer
1
Sør
Materiale
Tre
Taktype
Flatt tak
Vinduer
4
Dører
0
Synlige etasjer
1

Hendelser

15.04.2026 Søknad om ferdigattest - 82/66 - Ramsdalen 2ob
14.08.2024 Godkjent - Mellombels bruksløyve for tomannsbustad - 82/66 - Ramsdalen 20 A og B
05.08.2024 Søknad om mellombels bruksløyve - 82/66 -Ramsdalen 20 a og b
07.09.2023 Godkjent - mellombels bruksløyve del av tomannsbustad - 82/66 - Ramsdalen 20 b
30.08.2023 Søknad om mellombels bruksløyve - - 82/66 - Langholmen
17.06.2022 Dokumentasjon eiendom 82/66
22.12.2021 LØYVE TIL BYGGING AV TOMANNSBUSTAD PÅ 82/66 LANGHOLMEN
29.10.2021 Søknad om tillatelse i ett trinn 82/66