NewConstruction UnderBehandling Tomannsbolig

Ny tomannsbolig i Russerveien 8 og 10, Vinjeøra

📍 Russerveien 8 , 7203 VINJEØRA

Nøkkelinfo

Sakstype
Nybygg
Bygningstype
Tomannsbolig
Bruksareal
174 m²
Boenheter
2
Kommune
Heim
Fylke
Trøndelag - Trööndelage
Gnr / Bnr
118 / 114
Saksnummer
26/00990
Fase
Under behandling

Om byggesaken

Ny tomannsbolig bestående av to horisontalt delte boenheter på hver 86,8 m² BRA, totalt 173,6 m². Bygget har to etasjer med stue/kjøkken, flere soverom, bad, vaskerom og gang i hver boenhet. Bygget er oppført i tre med saltak og pulttak, og har flere vinduer i stue/kjøkken. Det er etablert ny avkjørsel fra kommunal vei med stikkrenne. Prosjektet inkluderer grunnarbeider, betongarbeider, tømrerarbeid, VVS, ventilasjon og innmåling. Det er ingen balkonger eller trapper i tomannsboligen. Bygget er planlagt og prosjektert med nødvendige kontroller og ansvarsretter.

Produkter og materialer

Gulv Gulvbelegg og overflater

Gulvbelegg ikke spesifisert i dokumenter

Gulvbelegg i boenheter

Dører Ytterdører og innerdører

🧱 Ikke spesifisert

Antall: 20

Ytterdører og innerdører i boenheter

Dører for adkomst og romavgrensning

Elektro Elektriske installasjoner

Elektroarbeid for boligene

Elektriske installasjoner for belysning, strøm og sikkerhet

Grunnarbeid Grunnarbeider for tomannsbolig

Antall: 1

Innmåling tomt, masseflytting med krav til godkjent mottak og vask av utstyr

Grunnarbeid for fundamentering og tomteutforming

Tak Saltak og pulttak

🧱 Taktekking ikke spesifisert

Saltak på hovedfasader, pulttak på deler av bygget

Taktekking for tomannsbolig med saltak og pulttak

Tømrer Tømrerarbeid for tomannsbolig

🧱 Tre

Tømrerarbeid inkludert bæring, vegger, tak og innvendige konstruksjoner

Tømrerarbeid for oppføring av tomannsbolig i tre

Ventilasjon Ventilasjonsanlegg

Ventilasjon prosjektert og utført av G-BYGG AS

Ventilasjonsanlegg for boligene

Fasade Tre kledning

🧱 Tre

Tre kledning på alle fasader

Utvendig tre kledning på bolig

Betong Betongarbeider

🧱 Betong

Betongarbeider for fundament og konstruksjon

Betongarbeid i henhold til prosjektering

Grunnarbeid Avkjørsel med stikkrenne

🧱 Rør ø300 mm

Antall: 1

Avkjørsel fra kommunal vei med stikkrenne ø300 mm i henhold til veglovens krav

Bygging av avkjørsel med stikkrenne for adkomst

Isolasjon Isolasjon i vegger og tak

Isolasjon iht. tekniske krav for bolig

Isolasjon for varme- og lydisolering

Vinduer Fasadevindu

🧱 Ikke spesifisert

Antall: 14

Vinduer i stue/kjøkken og øvrige rom, totalt 14 vinduer

Vinduer for naturlig lys og ventilasjon

VVS Sanitær og varme

VVS-installasjoner for bad, vaskerom og tekniske rom

VVS-installasjoner inkludert sanitær og varme

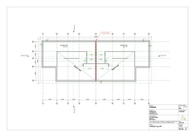
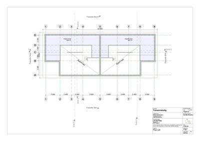
Plantegning

Tomannsbolig 86.8 m²

Etasje 1 86.8 m²

Rom Areal Vinduer Dører
Soverom 101 5.0 m² 0 1
Soverom 102 5.0 m² 0 1
Bad 103 7.6 m² 0 0
Bad 104 7.6 m² 0 0
Soverom 105 5.0 m² 0 1
Soverom 106 5.0 m² 0 1
Vaskerom 107 4.9 m² 0 1
Vaskerom 108 4.9 m² 0 1
Stue/kjøkken 109 48.1 m² 3 1
Stue/kjøkken 110 48.1 m² 3 1
Gang 111 5.4 m² 0 1
Gang 112 5.4 m² 0 1
Soverom 113 10.8 m² 0 1
Soverom 114 10.8 m² 0 1

Enebolig 100.0 m²

Etasje 0 100.0 m²

Rom Areal Vinduer Dører
Gang 001 10.0 m² 0 2
Vaskerom 002 5.0 m² 0 1
Teknisk rom 003 5.0 m² 0 1
Bod 004 5.0 m² 0 1
Gang 005 10.0 m² 0 2
Vaskerom 006 5.0 m² 0 1
Teknisk rom 007 5.0 m² 0 1
Bod 008 5.0 m² 0 1

Fasader

Enebolig

Nord
Materiale
Tre
Taktype
Pulttak
Vinduer
6
Dører
0
Synlige etasjer
1
Vest
Materiale
Tre
Taktype
Saltak
Vinduer
1
Dører
0
Synlige etasjer
1
Sør
Materiale
Tre
Taktype
Saltak
Vinduer
5
Dører
3
Synlige etasjer
1
Øst
Materiale
Tre
Taktype
Saltak
Vinduer
1
Dører
0
Synlige etasjer
1

Hendelser

14.04.2026 26/00990-12 Arbeidstegninger - plan/snitt/fasade
07.04.2026 26/00990-11 Grunnarbeid 2-mannsbolig Russerveien
25.03.2026 26/00990-8 Russerveien 8 og 10, fakturagrunnlag - to-mannsbolig
25.03.2026 26/00990-5 Melding om delegert vedtak - godkjent avkjørsel fra KV1353 Russerveien
25.03.2026 26/00990-6 Russerveien 8 og 10, vedtak nytt bygg - boligformål
12.03.2026 26/00990-2 Russerveien 8 og 10, melding om mottatt søknad
11.03.2026 26/00990-1 Russerveien 8 Søknad om tillatelse i ett trinn 118/114