NewConstruction Ferdigattest Tomannsbolig

Ny firemannsbolig i Skeineshaugen 12, Inndyr

📍 Skeineshaugen 12A , 8140 INNDYR

Nøkkelinfo

Sakstype
Nybygg
Bygningstype
Tomannsbolig
Bruksareal
311 m²
Boenheter
4
Kommune
Gildeskål
Fylke
Nordland - Nordlánnda
Gnr / Bnr
25 / 482
Saksnummer
2024/322
Fase
Ferdigattest

Om byggesaken

Ny firemannsbolig oppført i to etasjer på Skeineshaugen 12 i Inndyr, med totalt bruksareal på 310,8 m² fordelt på fire leiligheter à ca. 77,7 m² hver. Bygget har saltak og trekledning, og inneholder stue/kjøkken, bad, flere soverom og boder i hver leilighet. Bygningen er tilknyttet kommunalt vann- og avløpsnett, og har parkeringsplasser i henhold til reguleringsplan. Bygget er oppført med plasstøpte betongkonstruksjoner, trekonstruksjoner, membraner i våtrom og vannbåren gulvvarme kombinert med varmepumpe for oppvarming. Ferdigattest er utstedt, og prosjektet har gjennomgått uavhengig kontroll av våtrom og lufttetthet.

Produkter og materialer

Fasade Trekledning

🧱 Tre

Trekledning på fasader

Ytterkledning i tre for fasader

Maling Innvendig maling

Innvendig maling av vegger og tak

Trapper Innvendig trapp

Antall: 1

Innvendig trapp mellom etasjer

Betong Plasstøpte betongkonstruksjoner

🧱 Betong

Plasstøpte betongkonstruksjoner for fundament og bærende elementer

Betongkonstruksjoner for fundament og bærende deler

Dører Ytterdører

Antall: 2

Ytterdører i bygget

Gulv Gulvbelegg

Avretting av gulv med fall til sluk i våtrom, øvrige gulv antatt med parkett eller lignende

Gulvbehandling og overflater

Tømrer Trekonstruksjoner

🧱 Tre

Montering av trekonstruksjoner for bærende og ikke-bærende elementer

Tømrerarbeid med trekonstruksjoner

Elektro Elektrisk anlegg

Elektrisk energiforsyning og installasjoner

Elektriske installasjoner i bygget

Tak Saltak

🧱 Tre, takstein eller lignende

Saltak med totalhøyde 8,3 meter

Saltakskonstruksjon med tilhørende takmaterialer

VVS Sanitærinstallasjoner

Sanitærinstallasjoner tilknyttet kommunalt vann og avløp

Sanitærinstallasjoner for vann og avløp

Grunnarbeid Veg, utearealer og landskapsutforming

Graving, vannforsynings- og avløpsanlegg, utearealer og landskapsutforming

Grunnarbeid og uteområder

Vinduer Fasadevindu

Antall: 6

Fasadevindu i bygget

Bad Våtrom med membraner

🧱 Membran

Membraner i våtrom og avretting av gulv med fall til sluk

Våtromsarbeid med membraner og gulvavretting

VVS Varme- og ventilasjonsanlegg

Vannbåren gulvvarme, varmepumpe luft og ventilasjon- og klimainstallasjoner

Oppvarming og ventilasjonssystemer

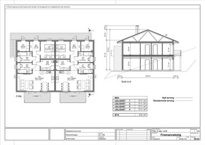
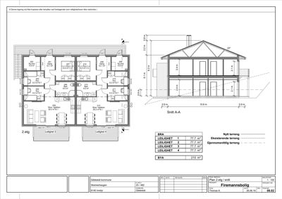
Plantegning

Firemannsbolig 468.8 m²

Etasje 1 258.8 m²

Rom Areal Vinduer Dører
Gang 101 9.9 m² 0 4
Sp.bod 102 4.9 m² 0 1
Sov 103 6.4 m² 0 2
Sov 104 6.4 m² 0 2
Stue / kjøkken 105 29.1 m² 2 2
Bad 106 6.0 m² 0 1
Sov 107 10.0 m² 0 2
Gang 108 9.9 m² 0 4
Sp.bod 109 4.9 m² 0 1
Sov 110 6.4 m² 0 2
Sov 111 6.4 m² 0 2
Stue / kjøkken 112 29.1 m² 2 2
Bad 113 6.0 m² 0 1
Sov 114 10.0 m² 0 2

Etasje 2 210.0 m²

Rom Areal Vinduer Dører
Gang 201 10.1 m² 0 4
Sp.bod 202 4.9 m² 1 1
Sov 203 6.3 m² 0 1
Sov 204 6.3 m² 0 1
Stue / kjøkken 205 29.2 m² 1 1
Bad 206 6.0 m² 0 1
Sov 207 10.0 m² 0 1
Gang 208 10.1 m² 0 4
Sp.bod 209 4.9 m² 1 1
Sov 210 6.3 m² 0 1
Sov 211 6.3 m² 0 1
Stue / kjøkken 212 29.2 m² 1 1
Bad 213 6.0 m² 0 1
Sov 214 10.0 m² 0 1

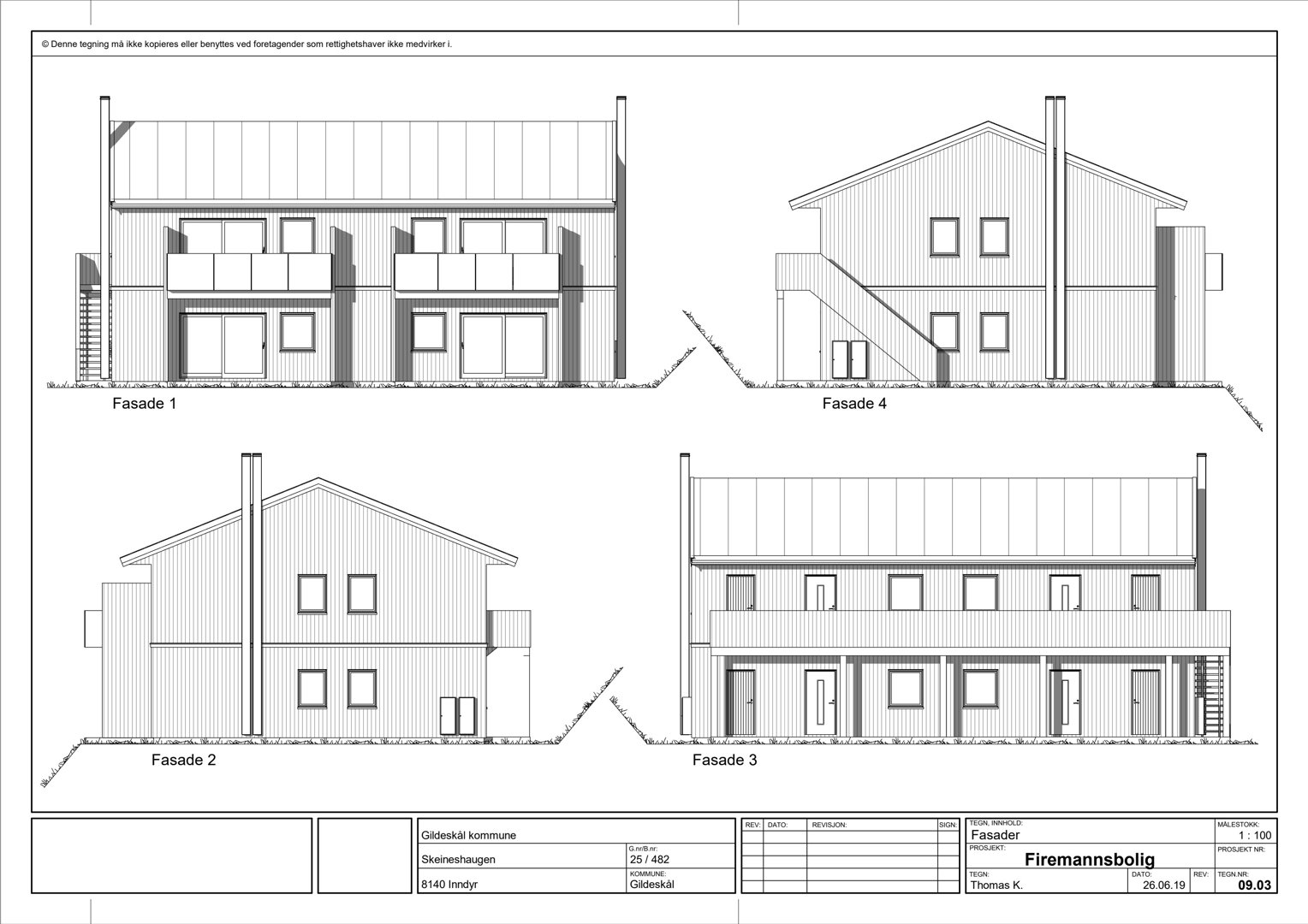
Fasader

Firemannsbolig

Ukjent
Materiale
Tre
Taktype
Saltak
Vinduer
6
Dører
2
Balkonger
2
Synlige etasjer
2

Hendelser

15.04.2026 Ferdigattest for 4-mannsbolig Skeineshaugen 12 A, B, C og D, Inndyr gnr.25 bnr.482
15.04.2026 Ferdigattest for 4-mannsbolig Skeineshaugen 12 A, B, C og D, Inndyr gnr.25 bnr.482
13.04.2026 Skeineshaugen 12 Søknad om ferdigattest 25/482
03.03.2025 Vedtak - Innvilget dispensasjon og igangsettingstillatelse for oppføring av 4-mannsbolig, Skeineshaugen 12, Inndyr gnr.25 bnr.482
03.03.2025 Vedtak - Innvilget dispensasjon og igangsettingstillatelse for oppføring av 4-mannsbolig, Skeineshaugen 12, Inndyr gnr.25 bnr.482
19.02.2025 Søknad om tillatelse i ett trinn - oppføring av firemannsbolig G/B 25/482
03.02.2025 Nabovarsel