NewConstruction UnderBehandling Tomannsbolig

Ny tomannsbolig med parkering på Tytbakktoppen, Arendal

📍 Tytbakktoppen

Nøkkelinfo

Sakstype
Nybygg
Bygningstype
Tomannsbolig
Bruksareal
181 m²
Boenheter
2
Kommune
Arendal
Fylke
Agder
Gnr / Bnr
213 / 261
Saksnummer
2026/9712
Fase
Under behandling

Om byggesaken

Ny tomannsbolig på 181 m² BRA fordelt på to boenheter med saltak og mønehøyde på 10 meter. Bygget har to etasjer, med stue/kjøkken, soverom, bad, vaskerom/bod og sportsbod i hver boenhet. Bygningen oppføres i tre med saltak og har balkonger på flere fasader. Tomten er på 404,6 m² med 36 m² avsatt til parkering for to biler. Bygget er plassert innenfor reguleringsplanens byggegrenser med godkjent avkjørsel og tilknytning til offentlig vann og avløp. Tiltaket oppfyller krav til rekkefølgekrav, nabovarsling og planbestemmelser.

Produkter og materialer

Mur Sportsbod og lagringsrom

Antall: 4

Sportsbod og lagringsrom i hver boenhet

Grunnarbeid Tomteopparbeidelse og sprengning

Sprenging og opparbeidelse av tomt, legging av stikkledninger

Grunnarbeid for tomt og tilknytning til vann og avløp

Terrasse Terrasse

Antall: 2

Terrasseareal til uteopphold

Betong Grunnmur og ringmur

Oppsett av grunnmur/ringmur og radonsikring

Betongarbeid for fundamentering og radonsikring

Garasjeport Garasjeport

Antall: 1

Garasjeport tilknyttet tomannsboligen

Tak Tak- og terrasse membran

Membran og fall til sluk, tak- og terrasse membran

Vanntetting av tak og terrasseflater

Vinduer Fasadevindu

Antall: 14

Vinduer i fasader, totalt 14 stk fordelt på begge boenheter

Ventilasjon Balansert ventilasjon

Prosjektering og montering av balansert ventilasjon iht. produksjonsunderlag fra Systemair AS

Ventilasjonsanlegg for god luftkvalitet

Dører Ytterdører og balkongdører

Antall: 9

Ytterdører og balkongdører til boenhetene

Balkong Balkong

Antall: 4

Balkonger på flere fasader for uteopphold

Fasade Tre fasade med saltak

🧱 Tre

Saltak med takvinkel 35 grader, mønehøyde 10 m, gesimshøyde 7,7 m

Fasade i tre med saltak som hovedtakform for tomannsboligen

Elektro Branntekniske løsninger

Montering av brannvarslere og brannslukningsapparat

Brannsikkerhetsinstallasjoner i bygget

Isolasjon Radonsikring

Radonsikring iht. gjeldende krav

Isolasjon og radonsikring under grunnmur

VVS Vannforsyning og avløp

Tilkobling til offentlig vann og avløp, godkjent av kommunen

Utvendig VA-anlegg og tilkobling til kommunalt nett

Tømrer Innvendige og utvendige tømrerarbeider

Utførelse av tømrerarbeider og montering av trekonstruksjoner

Bygging av bærende trekonstruksjoner og innvendige arbeider

VVS Sanitærinstallasjoner og rørleggerarbeid

Innvendige rørleggerarbeider, rørgjennomføringer, tettedetaljer og montering av sanitærutstyr

VVS-installasjoner for sanitær og vann

Trapper Innvendig trapp

Antall: 1

Innvendig trapp mellom etasjer i tomannsboligen

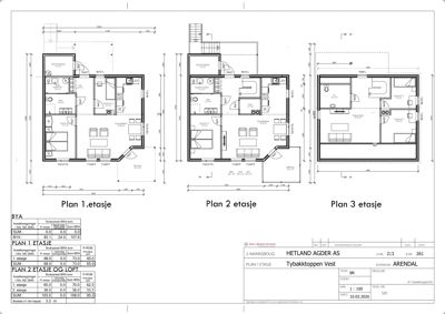
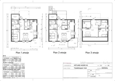
Plantegning

Enebolig 171.0 m²

Etasje 1 68.0 m²

Rom Areal Vinduer Dører
Stue/Kjøkken 101 31.6 m² 2 2
Soverom 1 102 11.7 m² 1 1
Bad 103 5.4 m² 0 1
Vaskerom/bod 104 3.3 m² 0 1
Sport/redskap 105 5.0 m² 0 1
Gang 106 6.4 m² 0 2

Etasje 2 38.0 m²

Rom Areal Vinduer Dører
Stue/Kjøkken 201 31.9 m² 2 2
Soverom 1 202 11.9 m² 1 1
Bad 203 5.4 m² 0 1
Vaskerom/bod 204 3.4 m² 0 1
Sport/redskap 205 5.0 m² 0 1
Bod 206 2.7 m² 0 1

Etasje 3 65.0 m²

Rom Areal Vinduer Dører
Soverom 1 301 9.9 m² 1 1
Soverom 2 302 7.9 m² 1 1
WC 303 6.5 m² 0 1
Disponibelt 304 27.9 m² 0 0

Fasader

2-MANNSBOLIG

Vest
Materiale
Tre
Taktype
Saltak
Høyde
5.0 m
Mønehøyde
8.7 m
Vinduer
4
Dører
1
Balkonger
1
Synlige etasjer
2
Nord
Materiale
Tre
Taktype
Saltak
Vinduer
1
Dører
0
Balkonger
2
Synlige etasjer
2
Sør
Materiale
Tre
Taktype
Saltak
Vinduer
4
Dører
1
Balkonger
2
Synlige etasjer
2
Øst
Materiale
Tre
Taktype
Saltak
Vinduer
3
Dører
1
Balkonger
1
Synlige etasjer
2

Hendelser

15.04.2026 Vedtak - 213/261 - Tybakktoppen - 2-mannsbolig - tomt 31a-b
15.04.2026 DOK-analyse - 213/261/0/0
15.04.2026 Sentral godkjenning
15.04.2026 Fakturagrunnlag - BYGG-26_00508 - HETLAND AGDER AS v Henrik Engeland
15.04.2026 Svar på tilbakemelding på søknad- 213/261 Tybakktoppen saksnr. BYGG-26/00508
14.04.2026 213/261 - Svar på tilbakemelding på søknad - Nabosamtykke
14.04.2026 Svar på tilbakemelding på søknad- 213/261 Tybakktoppen saksnr. BYGG-26/00508
13.04.2026 213/261 - Svar på tilbakemelding på søknad
10.04.2026 Tilbakemelding på søknad - 213/261 -Tybakktoppen - 2 mannsbolig - tomt 31a-b
30.03.2026 Tilbakemelding - 213/261 - Tybakktoppen - 2 mannsbolig - Tomt 31A-B
27.03.2026 213/261 - Ber om tilbakemelding
26.03.2026 Tybakktoppen, melding om mottatt søknad
25.03.2026 Søknad om tillatelse i ett trinn 213/261