Facade
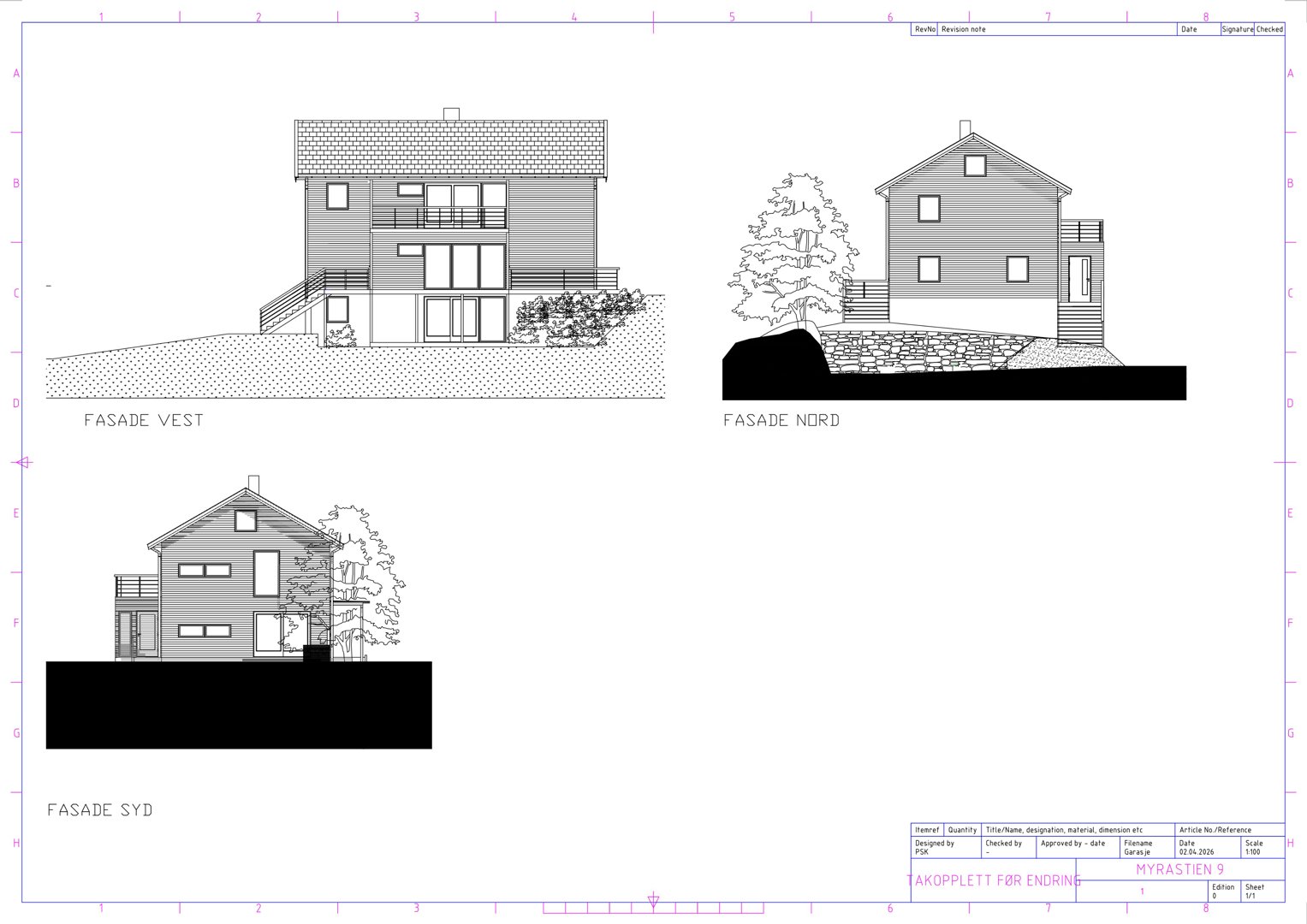
Fasadetegning som viser bygningens utseende fra tre ulike sider (Vest, Nord og Syd).
1 / 2
VerticalExtension
Soeknad
Tomannsbolig
Oppføring av takopplett på tomannsbolig i Myrastien 9, Fredrikstad
📍 Myrastien 9 , 1613 FREDRIKSTAD
Nøkkelinfo
- Sakstype
- Påbygg
- Bygningstype
- Tomannsbolig
- Boenheter
- 2
- Kommune
- Fredrikstad
- Fylke
- Østfold
- Gnr / Bnr
- 410 / 210
- Saksnummer
- 2026/10178
- Fase
- Søknad
Om byggesaken
Ny takopplett over eksisterende horisontaldelt tilbygg på tomannsbolig i Myrastien 9. Takoppletten utvider bygningens volum i høyden og skal beskytte mot lekkasjer på takterrassen i 2. etasje. Bygningen har tre etasjer med saltak tekket med tegl, og fasadene er i tre. Tiltaket innebærer en fasadeendring med nytt tak over uteområdet, og arbeidet utføres av Byggmester Rolf Andreassen AS.
Produkter og materialer
VVS
Takrenner og nedløp
Montering av takrenner og nedløp for nytt takopplett
Maling
Utvendig maling
Maling av ny fasade og takopplett for værbestandighet og estetikk
Tak
Takopplett
🧱 tre, tegl
Antall: 1
Takopplett over eksisterende saltak med teglstein, tilpasset eksisterende takmateriale
Nytt takopplett som utvider takvolumet over tilbygg, med tegl takstein og trekonstruksjon
Grunnarbeid
Fundamentering for takopplett
Fundamentering og understøttelse av takopplett på eksisterende tilbygg
Fasade
Fasadeendring i tre
🧱 tre
Fasadeendring med trepanel tilpasset eksisterende fasade
Endring av fasade for å integrere takopplett i eksisterende trefasade
Tømrer
Konstruksjonsarbeid
🧱 tre
Tømrerarbeid for oppføring av takopplett og tilpasning til eksisterende bygg
Fasader
Enebolig
Vest
- Materiale
- Tre
- Taktype
- Saltak
- Takmat.
- Tegl
- Vinduer
- 5
- Dører
- 1
- Balkonger
- 2
- Synlige etasjer
- 3
Nord
- Materiale
- Tre
- Taktype
- Saltak
- Takmat.
- Tegl
- Vinduer
- 3
- Dører
- 1
- Synlige etasjer
- 2
Sør
- Materiale
- Tre
- Taktype
- Saltak
- Takmat.
- Tegl
- Vinduer
- 4
- Dører
- 1
- Balkonger
- 1
- Synlige etasjer
- 2
Hendelser
14.04.2026
Svar på henvendelse - Myrastien 9 - Eiendom 210/410/484 - Takopplett
07.04.2026
Generell henvendelse - Myrastien 9 - Eiendom 210/410/484 - Takopplett