Facade
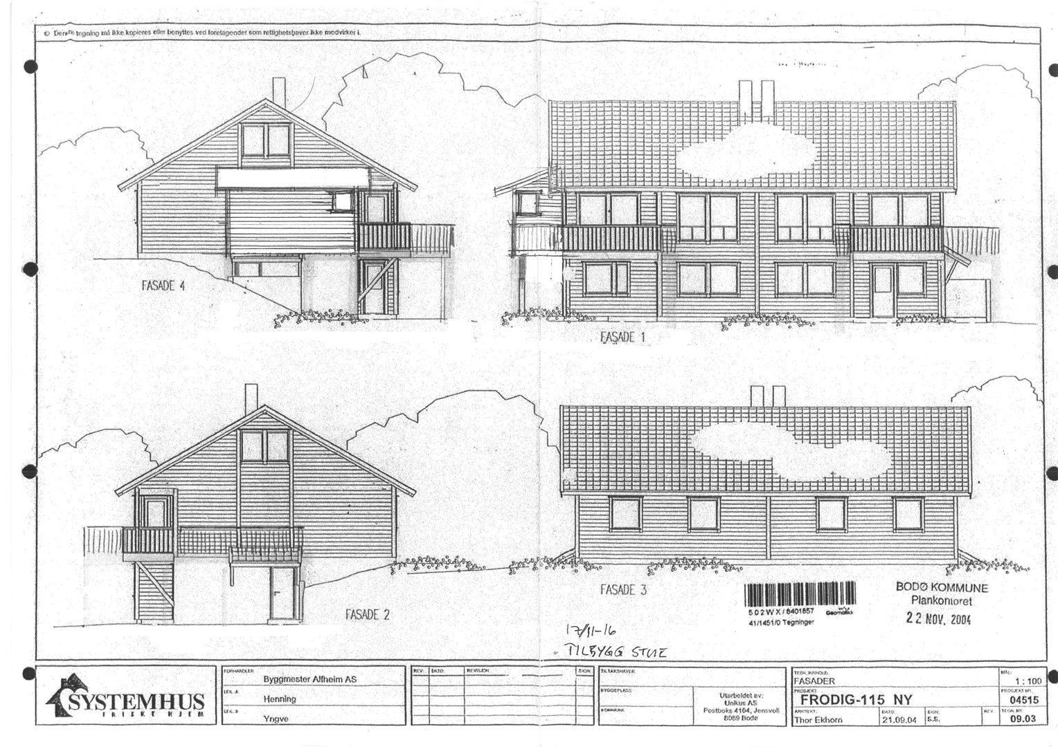
Fasadetegning som viser fire ulike vinkler (Fasade 1-4) på en bolig med tak og grunnplan.
1 / 9
VerticalExtension
Rammetillatelse
Tomannsbolig
Påbygg og fasadeendring på tomannsbolig i Stokkvikveien 16, Bodø
📍 Stokkvikveien 16 , 8019 BODØ
Nøkkelinfo
- Sakstype
- Påbygg
- Bygningstype
- Tomannsbolig
- Bruksareal
- 10 m²
- Boenheter
- 2
- Kommune
- Bodø
- Fylke
- Nordland - Nordlánnda
- Gnr / Bnr
- 41 / 1451
- Saksnummer
- 2026/6538
- Fase
- Rammetillatelse
Om byggesaken
Påbygg på ca. 10 m² for utvidelse av stue på en vertikaldelt tomannsbolig i Stokkvikveien 16, Bodø. Bygningen har to etasjer med saltak tekket med betongtakstein og trekledning på fasadene. Påbygget plasseres på eksisterende balkong, og utnyttelsesgraden endres ikke. Tiltaket inkluderer også fasadeendringer i tre, med flere vinduer og dører fordelt på fasadene. Bygget har pipe og flere balkonger. Arbeidet omfatter tømrerarbeider og prosjektering utført av ansvarlig foretak med sentral godkjenning.
Produkter og materialer
Betong
Fundament og grunnmur
Grunnarbeid og fundamentering for påbygg
Trapper
Innvendig trapp
Antall: 1
Innvendig trapp i boligen
Dører
Ytterdører
Antall: 6
Ytterdører fordelt på fasadene, totalt 6 stk ifølge fasadeanalyse
Vinduer
Fasadevindu
Antall: 24
Vinduer fordelt på fasadene, totalt 24 stk ifølge fasadeanalyse
Tømrer
Påbygg konstruksjon
🧱 Tre
Tømrerarbeider for påbygg og fasadeendring
Fasade
Trekledning
🧱 Tre
Fasade i tre med saltak tekket med betongtakstein
Materialer for fasadeendring og påbygg, inkludert trekledning og taktekking med betongtakstein
Tak
Saltak med betongtakstein
🧱 Betongtakstein
Saltak med betongtakstein som takmateriale
Taktekking for påbygg og fasadeendring
Plantegning
Enebolig 0.0 m²
Etasje 1 0.0 m²
| Rom | Areal | Vinduer | Dører |
|---|---|---|---|
| Stue/Kj 103 | 0.0 m² | 0 | 0 |
| Stue/Kj 106 | 0.0 m² | 0 | 0 |
| BA 105 | 0.0 m² | 0 | 0 |
| BAD 108 | 0.0 m² | 0 | 0 |
| Stue 101 | 35.2 m² | 3 | 2 |
| Kjøkken 102 | 14.0 m² | 1 | 1 |
| Gang 104 | 10.0 m² | 0 | 2 |
| Vaskerom 107 | 6.0 m² | 0 | 1 |
Fasader
Enebolig
Ukjent
- Materiale
- Tre
- Taktype
- Saltak
- Vinduer
- 5
- Dører
- 1
- Balkonger
- 1
- Synlige etasjer
- 2
Vest
- Materiale
- Tre
- Taktype
- Saltak
- Takmat.
- Betongtakstein
- Vinduer
- 3
- Dører
- 1
- Balkonger
- 1
- Synlige etasjer
- 2
Nord
- Materiale
- Tre
- Taktype
- Saltak
- Takmat.
- Betongtakstein
- Vinduer
- 10
- Dører
- 1
- Balkonger
- 3
- Synlige etasjer
- 2
Sør
- Materiale
- Tre
- Taktype
- Saltak
- Takmat.
- Betongtakstein
- Vinduer
- 3
- Dører
- 1
- Synlige etasjer
- 1
Øst
- Materiale
- Tre
- Taktype
- Saltak
- Takmat.
- Betongtakstein
- Vinduer
- 3
- Dører
- 1
- Balkonger
- 1
- Synlige etasjer
- 2
Hendelser
17.04.2026
Tillatelse - Stokkvikveien 16
27.02.2026
Supplering av søknad - Stokkvikveien 16
20.02.2026
Foreløpig svar - behov for tilleggsdokumentasjon
22.01.2026
Bekreftelse på mottatt søknad - Stokkvikveien 16
22.01.2026
Ett-trinns søknad - Stokkvikveien 16