Extension Soeknad Tomannsbolig

Tilbygg med ny boenhet i tomannsbolig, Elnesveien 16, Vollen

📍 Elnesveien 16 , 1488 HAKADAL

Nøkkelinfo

Sakstype
Tilbygg
Bygningstype
Tomannsbolig
Bruksareal
71 m²
Boenheter
2
Kommune
Asker
Fylke
Akershus
Gnr / Bnr
67 / 18
Saksnummer
25/3064
Fase
Søknad

Om byggesaken

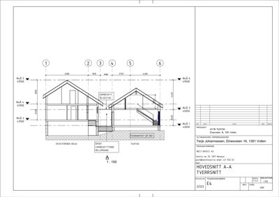
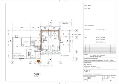
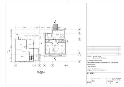
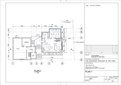
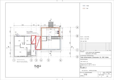
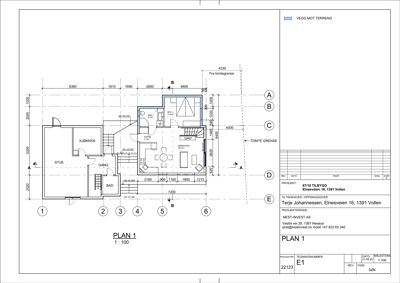
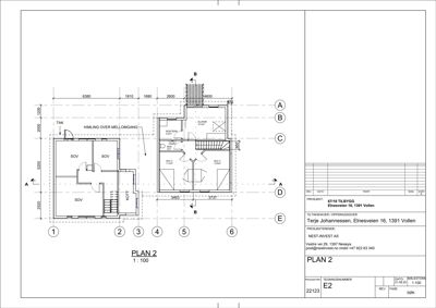
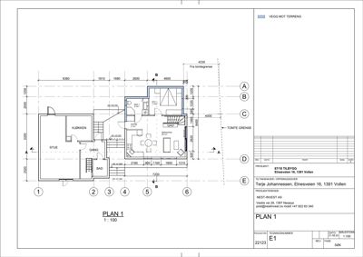
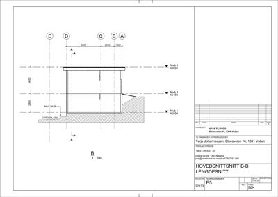
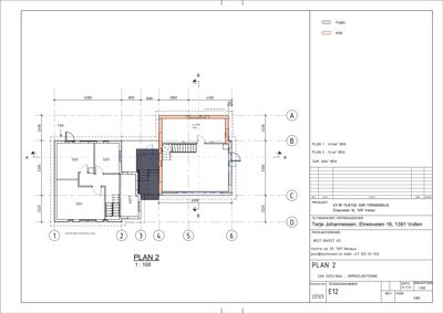
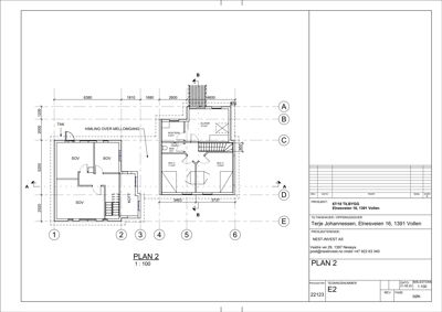
Ny to-etasjers tilbygg på 71,1 m² med saltak i tre, tilknyttet en eksisterende verneverdig enebolig i Elnesveien 16, Vollen. Tilbygget inneholder en separat boenhet, og sammen med eksisterende bolig danner det en tomannsbolig med to separate innganger via et felles overbygget vindfang. Bygget er fundamentert på fjell og tilpasses terrenget med hensyn til eksisterende bebyggelse og utearealer. Fasaden får stående blåmalt kledning som harmonerer med hovedbygget, og vindusformater er tilpasset for å ivareta estetikk og verneverdi. Parkeringsareal for to biler per boenhet er avsatt på tomten. Prosjektet inkluderer også grunnarbeid, betongfundamentering, VA-tilknytning og tekniske installasjoner.

Arbeidsomfang

- Påbygg av ny boenhet (ca. 71 m²) til to-mannsbolig - Nytt inngangsparti/entréparti - Tilpasning av eksisterende fasade og takkonstruksjon for å integrere tilbygget - Oppføring av nytt vindusareal i forbindelse med påbygget

Produkter og materialer

Fasade Stående kledning

🧱 Tre, blåmalt

Stående blåmalt kledning som harmonerer med eksisterende bolig

Fasadebekledning for tilbygg

Betong Fundament og mur

🧱 Betong

Betongfundament og murarbeider for tilbygg og mellombygg

Betongarbeider for fundament og vegger

Dører Ytterdører

🧱 Tre eller tilsvarende

Antall: 4

Separate inngangsdører til hver boenhet, samt felles inngangsdør i mellombygg

Ytterdører for tilbygg og mellombygg

Gulv Innvendige gulv

Standard innvendige gulv i bolig, antatt parkett eller laminat

Innvendige gulv i ny boenhet

Grunnarbeid Fundamentering

🧱 Betong på fjell

Fundamentert på fjell, stabil grunnforhold

Grunnarbeid og fundamentering for tilbygg

VVS Sanitær og vanninstallasjoner

Tilknytning til offentlig vann- og avløpsnett, godkjent sanitærmelding skal foreligge

VVS-installasjoner for ny boenhet

Vinduer Fasadevindu

🧱 Tre eller tre/aluminium, 2- og 3-lags glass

Antall: 10

Vindusformater tilpasset eksisterende bolig, hovedsakelig tofagsvinduer, uten sprosser for å bevare lesbarhet mellom nytt og gammelt

Vinduer til tilbyggets fasader

Bad Baderomsinnredning og fliser

Antall: 2

Bad med sanitærutstyr og flislagte gulv og vegger iht. TEK17

Bad i ny boenhet og eksisterende bolig

Parkering Biloppstillingsplasser

Antall: 4

To parkeringsplasser per boenhet, oppstillingsplasser på egen tomt, dimensjonert iht. kommunens norm

Parkeringsplasser for ny tomannsbolig

Tømrer Bygningsmessige arbeider

🧱 Treverk

Tømrerarbeid for tilbygg, inkludert reisverk, takstoler og innvendige konstruksjoner

Tømrerarbeid for tilbygg og mellombygg

Tak Saltak

🧱 Tre, takstein eller tilsvarende

Saltak med takvinkel tilpasset eksisterende bolig, mulighet for flatt tak over felles inngangsparti

Taktekking for tilbygg og mellombygg

Elektro Elektriske installasjoner

Elektriske installasjoner iht. TEK17 for ny boenhet

Elektroarbeid for tilbygg

Terrasse Uteoppholdsareal

Sydvendt uteoppholdsareal for begge boenheter, tilpasset terreng

Uteareal for ny og eksisterende boenhet

Fasader

Tilbygg

Nord
Materiale
Tre
Taktype
Saltak
Vinduer
4
Dører
1
Synlige etasjer
2
Vest
Materiale
Tre
Taktype
Saltak
Vinduer
2
Dører
1
Balkonger
1
Synlige etasjer
2
Sør
Materiale
Tre
Taktype
Saltak
Vinduer
3
Dører
1
Synlige etasjer
2
Øst
Materiale
Tre
Taktype
Saltak
Vinduer
1
Dører
1
Balkonger
1
Synlige etasjer
2

Enebolig

Nordøst
Materiale
Tre
Taktype
Saltak
Vinduer
3
Dører
1
Synlige etasjer
2
Nordvest
Materiale
Tre
Taktype
Saltak
Vinduer
4
Dører
1
Synlige etasjer
2
Sørvest
Materiale
Tre
Taktype
Saltak
Vinduer
4
Dører
1
Synlige etasjer
2
Sydøst
Materiale
Tre
Taktype
Saltak
Vinduer
4
Dører
1
Synlige etasjer
2
Ukjent
Materiale
Tre
Taktype
Saltak
Vinduer
3
Dører
1
Synlige etasjer
2

Hendelser

31.03.2026 67/18 Elnesveien 16 - Referat fra møte 27.03.2026
25.03.2026 67/18 Elnesveien 16 - Møteinnkalling
23.03.2026 67/18 Elnesveien 16 - Anmodning om møte
16.03.2026 67/18 Elnesveien 16 - Tilbakemelding på nytt omprosjekteringsforslag
04.03.2026 67/18 Elnesveien 16 - Omprosjekteringsforslag
05.02.2026 67/18 Elnesveien 16 - Tilbakemelding på omprosjektering
06.01.2026 67/18 Elnesveien 16 - Etterlyser tilbakemelding
04.12.2025 67/18 Elnesveien 16 - Ber om raske avklaringer
21.11.2025 67/18 Elnesveien 16 - Omprosjektering
23.10.2025 67/18 Elnesveien 16 - Varsel om avslag på søknad om tilbygg avslag
12.09.2025 67/18 Elnesveien 16 - Søknad om tillatelse i ett-trinn - Tilbygg bolig og ny boenhet søknad