Extension UnderBehandling Tomannsbolig

Tilbygg, bruksendring og fasadeendring på tomannsbolig i Hans Hansens vei 149

📍 Hans Hansens vei 149 , 3022 DRAMMEN

Nøkkelinfo

Sakstype
Tilbygg
Bygningstype
Tomannsbolig
Bruksareal
266 m²
Boenheter
3
Kommune
Drammen
Fylke
Buskerud
Gnr / Bnr
21134 / 469
Saksnummer
22/09337
Fase
Under behandling

Om byggesaken

Prosjektet omfatter oppføring av et tilbygg på eksisterende tomannsbolig i Hans Hansens vei 149, Drammen. Tilbygget er i 3 etasjer pluss underetasje, med utvendig trapp til 2. etasje og utvidet vindfang for hver boenhet. Det er gjennomført bruksendring av kjeller og loft fra tilleggsdel til hoveddel, med innredning av kjeller til oppholdsrom og loft til boareal, inkludert vaskerom, WC og loftstue. Veranda underbygges og fasaden endres med nye og større vinduer, takvinduer og verandadører. Det er også oppført støttemur og flyttet avkjørsel for bedre parkering og snuareal. Totalt areal for tomannsboligen er ca. 266 m², med garasje på 19,8 m². Bygget har saltak med teglstein og trekledning, og tiltaket er tilpasset eksisterende bebyggelsesstruktur og nabolagets karakter.

Produkter og materialer

Elektro Brannstige og belysning

Antall: 1

Ny brannstige på loft, elektriske installasjoner i tilbygg

Elektriske installasjoner og brannstige

Ventilasjon Ventilasjon i våtrom og bolig

Ventilasjon i nye og endrede våtrom og oppholdsrom

Ventilasjonsanlegg for bad, vaskerom og oppholdsrom

Dører Ytterdører og verandadører

🧱 Tre/glass

Antall: 3

Verandadører for begge boenheter, nye ytterdører i tilbygg

Dører for inngang og veranda

Gulv Innvendige gulv

Oppgradering av gulv i tilbygg og innvendige rom

Nye gulvflater i tilbygg og bruksendrede rom

Trapper Innvendig og utvendig trapp

🧱 Tre

Antall: 2

Innvendig trapp mellom 1. og 2. etasje fjernes, ny utvendig trapp til 2. etasje i tilbygg, innbygging av trapp i endringssøknad

Trapper for adkomst mellom etasjer og til loft

VVS Vaskerom og bad

Innredning av vaskerom og bad i kjeller og loft, inkludert WC og teknisk rom

VVS-installasjoner for nye våtrom

Grunnarbeid Utgraving og støttemur

🧱 Forskalingsblokker B25xH17, rød granitt

Mini støttemur mot naboeiendommer, høyde 50-80 cm, samtykke fra naboer

Grunnarbeid med utgraving for kjellerinngang og støttemur

Garasjeport Garasjeport

Antall: 1

Eksisterende garasje på 19,8 m² med garasjeport

Garasjeport til eksisterende garasje

Maling Utvendig og innvendig maling

Oppussing og maling av fasade og innvendige flater

Maling av trepanel og innvendige vegger

Tak Saltak med teglstein

🧱 Teglstein

Tak forlenges over tilbygget, saltak med teglstein

Taktekking med teglstein på saltak

Fasade Vinduer

🧱 Tre med 3-lags energiglass

Antall: 14

Nye og større vinduer i kjeller, 3 takvinduer (Velux FK06), ekstra vinduer i fasade, verandadører

Nye og større vinduer, takvinduer og verandadører for bedre lys og ventilasjon

Tømrer Tilbygg og underbygg veranda

🧱 Tre

Tilbygg i 3 etasjer pluss underetasje, innbygging av utvendig trapp og veranda

Bygging av tilbygg, innbygging av trapp og veranda

Utendørs Avkjørsel og parkering

Flytting av avkjørsel til vestsiden av boligen, opparbeidelse av snu- og parkeringsareal

Opparbeidelse av ny avkjørsel og parkeringsplass

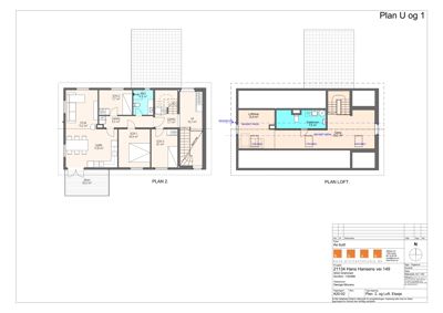
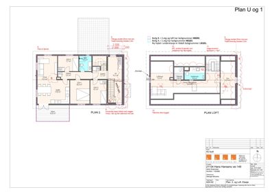
Plantegning

Enebolig 266.2 m²

Etasje 0 38.0 m²

Rom Areal Vinduer Dører
Hybel U01 38.0 m² 0 1
Sportsbod 001 11.7 m² 0 1
Kjellerstue 002 18.6 m² 0 1
Gang 003 5.5 m² 0 3
Sov 004 9.7 m² 0 1
Bod 005 6.8 m² 0 1
Vask 006 6.1 m² 0 1
Bod 007 4.1 m² 0 1
Bad 008 4.0 m² 0 1
Sov.2 009 10.4 m² 0 1
Kjellerstue U02 18.6 m² 0 1
Sov.2 U03 10.4 m² 0 1
Gang U04 2.8 m² 0 2
Bad U05 4.0 m² 0 1
Gang U06 5.5 m² 0 2
Sov U07 9.7 m² 0 1
Gang U08 6.3 m² 0 2
Bod U09 7.2 m² 0 1
Vask U10 6.9 m² 0 1
Bad U11 7.7 m² 0 1

Etasje 1 106.5 m²

Rom Areal Vinduer Dører
Stue 101 106.5 m² 3 1
Stue 102 11.2 m² 1 1
Kjøk 103 17.8 m² 0 1
Gang 104 5.5 m² 0 3
Sov.1 105 10.9 m² 0 1
Sov.3 106 9.1 m² 0 1
Sov.2 107 7.7 m² 0 1
Bad 108 4.5 m² 0 1
Benk 109 12.0 m² 0 1
Bod 110 4.1 m² 0 1
Benk 111 0.0 m² 0 0
Garasje 112 19.8 m² 0 1

Etasje 2 94.5 m²

Rom Areal Vinduer Dører
Soverom 201 94.5 m² 2 1
Kjøkken 202 17.8 m² 0 1
Sov.1 203 10.9 m² 1 1
Sov.2 204 7.7 m² 1 1
Sov.3 205 9.1 m² 1 1
Gang 206 5.5 m² 0 2
Gang 207 7.7 m² 0 2
Bad 208 4.5 m² 0 1
Veranda 209 3.7 m² 1 1
Altan 210 10.5 m² 0 1

Etasje 3 27.2 m²

Rom Areal Vinduer Dører
Loft 301 27.2 m² 0 1
Vaskerom 302 4.4 m² 1 1
WC 303 2.1 m² 0 1
Gang 304 23.1 m² 1 2

Bolig A (H0101) 224.8 m²

Etasje 0 38.0 m²

Rom Areal Vinduer Dører
Hybel U01 38.0 m² 0 1

Etasje 1 65.1 m²

Rom Areal Vinduer Dører
Stue 101 65.1 m² 2 1

Etasje 2 94.5 m²

Rom Areal Vinduer Dører
Soverom 201 94.5 m² 2 1

Etasje 3 27.2 m²

Rom Areal Vinduer Dører
Loft 301 27.2 m² 0 1

Fasader

Eksisterende

Sør
Materiale
Tre
Taktype
Saltak
Takmat.
Tegl
Vinduer
4
Dører
1
Balkonger
2
Synlige etasjer
2

Tilbygg

Øst
Materiale
Tre
Taktype
Saltak
Takmat.
Tegl
Vinduer
3
Dører
1
Balkonger
2
Synlige etasjer
2

Enebolig

Vest
Materiale
Tre
Taktype
Saltak
Takmat.
Tegl
Høyde
7.7 m
Mønehøyde
8.7 m
Vinduer
4
Dører
0
Synlige etasjer
2
Nord
Materiale
Tre
Taktype
Saltak
Takmat.
Tegl
Høyde
7.7 m
Mønehøyde
8.7 m
Vinduer
4
Dører
1
Synlige etasjer
2
Sør
Materiale
Tre
Taktype
Saltak
Vinduer
7
Dører
2
Balkonger
2
Synlige etasjer
2
Øst
Materiale
Tre
Taktype
Saltak
Vinduer
1
Dører
2
Balkonger
1
Synlige etasjer
2

Hendelser

09.04.2026 Hans Hansens vei 149, tillatelse til endring av tidligere gitt tillatelse
04.03.2026 Hans Hansens vei 149, etterspurte opplysninger til søkaden
25.02.2026 Hans Hansens vei 149, vi trenger flere opplysninger for å behandle søknaden din
10.09.2025 Hans Hansens vei 149 Søknad om endring av gitt tillatelse eller godkjenning 116/469
13.08.2025 Hans Hansens vei 149, søkers svar og anmodning om at saken settes i bero
27.06.2025 Hans Hansens vei 149, vi vurderer å avslå søknaden din
22.04.2025 Hans Hansens vei 149 Søknad om ferdigattest 116/469
16.11.2022 Hans Hansens vei 149, henvendelse vedrørende støttemur
16.09.2022 116/469, Hans Hansens vei 149, bruksendring
16.09.2022 Hans Hansens vei 149, Tillatelse til tilbygg til tomannsbolig, bruksendring av kjeller og loft, underbygg av veranda og fasadeendring
06.09.2022 Hans Hansens vei 149, Dispensasjon fra byggegrense
05.09.2022 Hans Hansens vei 149, komplettering av søknad
26.08.2022 Kopi: Hans Hansens vei 149 - Vedtak - Dispensasjon fra byggegrense - Oppføring av tilbygg
26.08.2022 Kopi: Hans Hansens vei 149 - Vedtak - Tillatelse til flytting av avkjørsel
02.08.2022 Hans Hansens vei 149, Redegjørelse og søknad om dispensasjon
08.07.2022 Hans Hansens vei 149, vi trenger flere opplysninger for å behandle søknaden din
25.05.2022 Hans Hansens vei 149 Gjennomføringsplan 116/469
25.05.2022 Hans Hansens Vei 149, vedrørende lukke tilsyn mot foretaket, og søknad om ansvarsrett PRO jfr SAK§11.4-6.ledd
25.05.2022 Hans Hansens Vei 149, vedrørende lukke tilsyn uavhengig kontroll og ny ansvarsrett
16.03.2022 Hans Hansens vei 149, melding om mottatt søknad
15.03.2022 Hans Hansens vei 149 Søknad om tillatelse i ett trinn 116/469