Extension UnderBehandling Tomannsbolig

Tilbygg med nye balkonger på tomannsbolig, Nordre Sætrevei 42 B og C

📍 Nordre Sætrevei 42B , 3475 SÆTRE

Nøkkelinfo

Sakstype
Tilbygg
Bygningstype
Tomannsbolig
Bruksareal
18 m²
Boenheter
2
Kommune
Asker
Fylke
Akershus
Gnr / Bnr
357 / 829
Saksnummer
20/5906
Fase
Under behandling

Om byggesaken

To nye balkonger på til sammen 18 m² bygges som tilbygg på en tomannsbolig i Nordre Sætrevei 42 B og C. Hver balkong er 9 m² og har understøttelse på bakken med rekkverk i glass. Eksisterende vinduer på fasaden erstattes med dører i samme størrelse for å gi utgang til balkongene. Balkongene øker bebygd areal (BYA) fra 243,4 m² til 261,4 m², og utnyttelsesgraden øker fra 23,5 % til 25 %. Bygningen er en to-etasjes tomannsbolig med tre- og flatt tak, og fasaden er i tre med mørk grå/svart farge. Prosjektet inkluderer ingen andre fasadeendringer enn balkongene og dørutskiftingene.

Produkter og materialer

Dører Ytterdør i fasade, erstatning for vindu

Antall: 2

Eksisterende vinduer skiftes ut med dører i samme størrelse

To dører som erstatter eksisterende vinduer for utgang til balkong

Tømrer Bygging av balkongkonstruksjon

🧱 Tre og glass

Antall: 2

Balkongkonstruksjon med tre og glassrekkverk

Tømrerarbeid for oppføring av balkonger med glassrekkverk

Fasade Trepanel fasade

🧱 Tre

Fasade i tre med mørk grå/svart farge, ingen andre fasadeendringer enn balkonger og dørutskifting

Fasade i tre som tilpasses balkongtilbygg

Balkong Balkong med understøttelse på bakken

🧱 Glassrekkverk

Antall: 2

Hver balkong 9 m², rekkverk i glass, understøttet på bakken

To balkonger som tilbygg på tomannsbolig, hver 9 m² med glassrekkverk og understøttelse på bakken

Grunnarbeid Fundamentering for balkonger

Antall: 2

Understøttelse på bakken for to balkonger

Grunnarbeid for fundamentering av balkonger

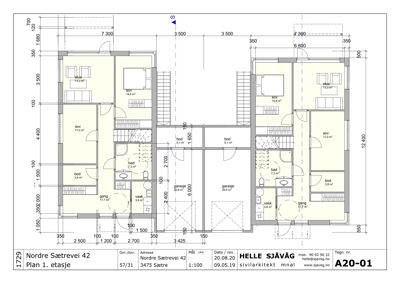
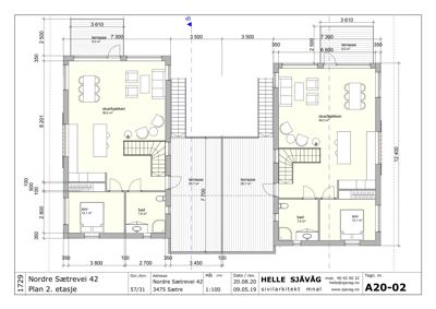
Plantegning

Enebolig 493.8 m²

Etasje 2 226.8 m²

Rom Areal Vinduer Dører
Stue/kjøkken 201 56.5 m² 3 2
Sov 202 12.1 m² 1 1
Bad 203 7.6 m² 0 1
Terrasse 204 26.7 m² 0 0
Terrasse 205 9.0 m² 0 0
Terrasse 206 26.7 m² 0 0
Terrasse 207 9.0 m² 0 0
Stue/kjøkken 208 56.5 m² 3 2
Sov 209 12.1 m² 1 1
Bad 210 7.6 m² 0 1

Etasje 1 267.0 m²

Rom Areal Vinduer Dører
Stue 101 13.3 m² 1 1
Sov 102 14.6 m² 0 1
Sov 103 11.0 m² 0 1
Bod 104 3.8 m² 0 1
Gang 105 17.7 m² 0 2
Vask 106 3.6 m² 0 1
Bad 107 7.3 m² 0 1
Bod 108 5.1 m² 0 1
Garasje 109 20.6 m² 0 1
Stue 110 13.3 m² 1 1
Sov 111 14.6 m² 0 1
Sov 112 11.0 m² 0 1
Bod 113 3.8 m² 0 1
Gang 114 17.7 m² 0 2
Vask 115 3.6 m² 0 1
Bad 116 7.3 m² 0 1
Bod 117 5.1 m² 0 1
Garasje 118 20.6 m² 0 1

Fasader

Enebolig

Nordøst
Materiale
Tre
Taktype
Flatt tak
Vinduer
4
Dører
2
Balkonger
1
Synlige etasjer
2
Nordvest
Materiale
Tre
Taktype
Flatt tak
Vinduer
4
Dører
1
Synlige etasjer
2
Sydvest
Materiale
Tre
Taktype
Flatt tak
Vinduer
4
Dører
2
Synlige etasjer
2
Sydøst
Materiale
Tre
Taktype
Flatt tak
Vinduer
6
Dører
1
Balkonger
1
Synlige etasjer
2

Hendelser

13.04.2026 357/829 Nye balkonger på tomannsbolig - Manglende ferdigattest eller midlertidig brukstillatelse
02.10.2020 357/829 Tillatelse til tiltak uten ansvarsrett - Nye balkonger på tomannsbolig
14.09.2020 357/829 Kvitteringsbrev - Nye balkonger på tomannsbolig
11.09.2020 357/829 Søknad om tiltak uten ansvarsrett - Nye balkonger på tomannsbolig