Extension Ferdigattest Tomannsbolig

Tilbygg, underbygg og bruksendring i Skogliveien 88, Drammen

📍 Skogliveien 88 , 3047 DRAMMEN

Nøkkelinfo

Sakstype
Tilbygg
Bygningstype
Tomannsbolig
Bruksareal
264 m²
Boenheter
3
Kommune
Drammen
Fylke
Buskerud
Gnr / Bnr
13 / 17
Saksnummer
22/21757
Fase
Ferdigattest

Om byggesaken

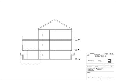
Ny inngangspart med altan over, underbygg under tidligere tilbygg og bruksendring av rom i kjeller fra bod til oppholdsrom i en tomannsbolig på Skogliveien 88 i Drammen. Tilbygget har et bebygd areal på ca. 17,4 m², underbygget har en høyde på 2,2 meter og rommet i kjeller skal brukes til lagring/bod og hybel. Bygget har saltak og trekledning, med flere nye vinduer i fasadene. Kjelleretasjen får eget bolignummer som hybel. Prosjektet er fullført med ferdigattest utstedt i 2026.

Produkter og materialer

Fasade Trekledning

🧱 Tre

Trekledning på fasader med saltak

Kledning av tilbygg og underbygg i tre

Isolasjon Isolasjon for tilbygg og kjeller

Isolasjon i vegger, tak og gulv i tilbygg og kjeller

Elektro Elektrisk installasjon

Elektrisk anlegg for tilbygg og kjeller

Bad Bad og våtrom

Antall: 2

Oppgradering og tilpasning av bad i tilbygg og kjeller

Balkong Altan over inngangsparti

Antall: 1

Altan over inngangsparti med rekkverk

Ny balkong/altan over inngangsparti

Trapper Utvendig trapp til kjeller

Antall: 1

Utvendig trapp til kjeller med rekkverk

Ny utvendig trapp til kjeller

Mur Underbygg murarbeid

Murarbeid for underbygg under tilbygg

Fundamentering og murarbeid for underbygg

Gulv Innvendige gulv

Innvendige gulv i tilbygg og kjeller

Dører Ytterdører

Antall: 7

Ytterdører i tilbygg og kjeller

Nye ytterdører i tilbygg og kjeller

Vinduer Fasadevindu

Antall: 23

Flere nye vinduer i fasader, størrelser bl.a. 100x100, 160x130 cm

Nye fasadevindu i tilbygg og kjeller

Tak Saltak

Saltak på eksisterende bygg og tilbygg

Taktekking med saltak på tilbygg og eksisterende bygg

VVS VVS installasjon

VVS installasjoner for tilbygg og kjeller

Tømrer Tømrerarbeid tilbygg og kjeller

Tømrerarbeid for tilbygg, underbygg og kjeller

Tømrerarbeid knyttet til oppføring av tilbygg, underbygg og innvendige arbeider i kjeller

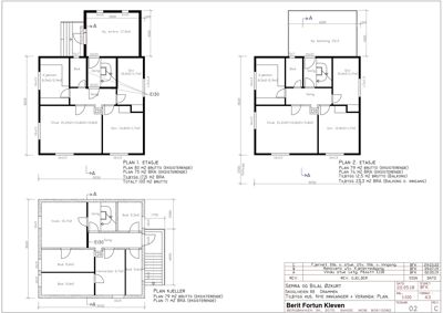
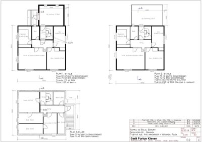
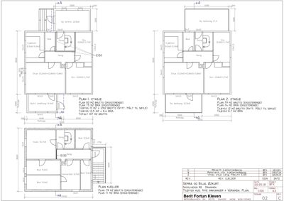
Plantegning

Enebolig 264.0 m²

Etasje 0 62.0 m²

Rom Areal Vinduer Dører
Stue 001 22.0 m² 2 1
Sov 002 12.0 m² 1 1
Vask 003 14.6 m² 1 1
Bad 004 5.3 m² 0 1
Bod 005 9.0 m² 0 1
Verksted 006 9.7 m² 0 1
Bod 007 5.6 m² 0 1

Etasje 1 101.0 m²

Rom Areal Vinduer Dører
Stue 101 21.0 m² 2 1
Sov 102 13.8 m² 1 1
Kjøkken 103 10.0 m² 1 1
Bad 104 3.7 m² 0 1
Gang 105 0.0 m² 0 2
Gang 106 12.5 m² 0 2
Gang 107 1.7 m² 0 1
Entre 108 12.5 m² 0 1
Vindfang 109 8.4 m² 1 1

Etasje 2 101.0 m²

Rom Areal Vinduer Dører
Stue 201 35.0 m² 2 1
Sov 202 10.0 m² 1 1
Kjøkken 203 10.0 m² 1 1
Bad 204 3.7 m² 0 1
Gang 205 0.0 m² 0 2
Sov 206 10.0 m² 1 1

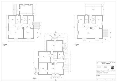
Fasader

Enebolig

Vest
Materiale
Tre
Taktype
Saltak
Vinduer
4
Dører
1
Balkonger
1
Synlige etasjer
2
Sør
Materiale
Tre
Taktype
Saltak
Vinduer
4
Dører
0
Synlige etasjer
2
Øst
Materiale
Tre
Taktype
Saltak
Vinduer
3
Dører
1
Balkonger
1
Synlige etasjer
2
Nord
Materiale
Tre
Taktype
Saltak
Vinduer
5
Dører
1
Balkonger
1
Synlige etasjer
2

Hendelser

14.04.2026 Skogliveien 88, ferdigattest for tilbygg, underbygg, bruksendring
07.04.2026 Skogliveien 88, Søknad om ferdigattest
16.08.2023 Skogliveien 88, bruksendring av kjeller til en hybel, nytt bolignummer.
15.08.2023 Skogliveien 88, tillatelse til endring av tidligere gitt tillatelse
03.07.2023 Skogliveien 88, ettersendt dokumentasjon
22.05.2023 vedr. søknad Skogliveien 88
09.05.2023 Skogliveien 88, melding om mottatt søknad
08.05.2023 Skogliveien 88, Søknad om tillatelse til tiltak
03.10.2022 Skogliveien 88, tillatelse til tilbygg
29.09.2022 Skogliveien 88, tilleggsdokumentasjon
27.09.2022 Skogliveien 88, tilleggsdokumentasjon
26.09.2022 Skogliveien 88, vi trenger flere opplysninger for å behandle søknaden din
02.09.2022 Skogliveien 88, etterspurt dokumentasjon
02.09.2022 Skogliveien 88, vi trenger flere opplysninger for å behandle søknaden din
02.09.2022 Skogliveien 88, melding om mottatt søknad
02.09.2022 Skogliveien 88 Søknad om tillatelse i ett trinn 13/17