Extension UnderBehandling Tomannsbolig

Påbygg, tilbygg, bruksendring og riving ved Toppen 5, Sørumsand

📍 Toppen 5 , 1920 SØRUMSAND

Nøkkelinfo

Sakstype
Tilbygg
Bygningstype
Tomannsbolig
Bruksareal
276 m²
Boenheter
2
Kommune
Lillestrøm
Fylke
Akershus
Gnr / Bnr
246 / 408
Saksnummer
24/15293
Fase
Under behandling

Om byggesaken

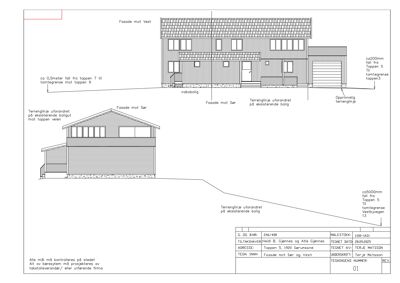
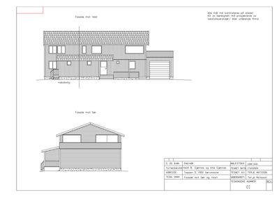
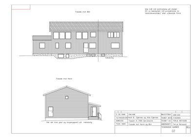
Prosjektet omfatter omfattende endringer på en tomannsbolig på Toppen 5 i Sørumsand. Det bygges et tilbygg med garasje på ca. 33,9 m², inkludert takterrasse over garasjen på 36,8 m². Det utføres også påbygg på eksisterende bolig, med tilpasning til eksisterende tak og gesims, samt bruksendring av kjeller med etablering av utvendig kjellernedgang. Fasadeendringer inkluderer utskifting av vinduer til enhetlig stil, etterisolering og ny kledning i grå farge (Marnar Bruk RG.20) med stående og liggende utførelse. Eksisterende frittliggende garasje på ca. 53 m² rives. Totalt bruksareal etter tiltaket blir ca. 276 m² BRA, noe som overskrider kommuneplanens tillatte maks BRA, og det søkes derfor dispensasjon. Tiltaket inkluderer også etterisolering av tak med ny takstein. Det foreligger nabosamtykke for tiltakene, og geoteknisk vurdering konkluderer med at det ikke er fare for områdeskred. Prosjektet krever oppdaterte tegninger, situasjonsplan og godkjenning av ansvarlig søker.

Produkter og materialer

VVS Oppgradering av bad og vaskerom

Bad og vaskerom i kjeller og 1. etasje oppgraderes i forbindelse med bruksendring

VVS-installasjoner for bad og vaskerom i bolig

Grunnarbeid Riving av eksisterende garasje og grunnarbeid for tilbygg

Riving av frittliggende garasje på ca. 53 m², grunnarbeid for nytt tilbygg med garasje

Riving og grunnarbeid for nytt tilbygg med garasje

Dører Ytterdører og terrassedør

🧱 Tre eller kompositt, hvit og lysebrun farge

Antall: 4

Terrassedør hvit, inngangsdør lysebrun, antall dører i plantegninger

Utskifting av ytterdører og terrassedør i tilknytning til fasadeendring

Betong Fundamenter og kjellertrapp

Fundamentering av tilbygg og påbygg, utvendig kjellertrapp med repos og trinn

Betongarbeider for fundamenter og kjellertrapp

Tak Saltak med ny takstein

🧱 Takstein i tilsvarende form og farge som eksisterende

Etterisolering av tak med maks 20 cm heving, ny takstein som ikke bryter byggets karakter

Etterisolering og utskifting av takstein på hele tomannsboligen

Fasade Ny ytterkledning Marnar Bruk RG.20

🧱 Trepanel, grå farge, stående og liggende utførelse

Helhetlig kledning for hele tomannsboligen, stående på langvegger, liggende på mønevegger

Utskifting og etterisolering av ytterkledning for hele tomannsboligen

Vinduer Ett-rams vinduer i hvit utførelse

🧱 Tre/aluminium, 3-lags energiglass

Antall: 14

Enhetlig uttrykk, redusert antall størrelser, uten inndeling for lys og rømningsvei

Utskifting av eksisterende vinduer til nye ett-rams vinduer i hvit utførelse for hele tomannsboligen

Isolasjon Etterisolering av yttervegger og tak

🧱 Mineralull eller tilsvarende

Etterisolering med inntil 20 cm tykkelse i vegger og tak

Isolasjon for yttervegger og tak i forbindelse med fasadeendring og påbygg

Elektro Oppgradering av elektrisk anlegg

Oppgradering av elektrisk anlegg i forbindelse med påbygg og bruksendring

Elektroinstallasjoner for bolig

Terrasse Takterrasse over garasje

Antall: 1

Takterrasse på ca. 36,8 m² over garasjetilbygg

Ny takterrasse over garasje i tilbygget

Tømrer Bygging av tilbygg og påbygg

🧱 Treverk, bjelker, stendere

Tømrerarbeid for oppføring av tilbygg med garasje og påbygg på eksisterende bolig

Tømrerarbeid for nye bygningsdeler

Gulv Innvendige gulvflater

Nye gulv i påbygg og tilbygg, samt oppgradering i eksisterende bolig

Gulvbelegg og overflater i bolig

Garasjeport Port til enkelgarasje i tilbygg

Antall: 1

Garasje med plass til én bil, integrert i tilbygget

Ny garasjeport for enkelgarasje i tilbygget

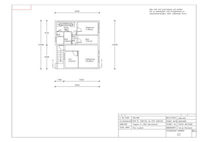
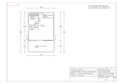
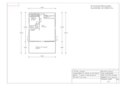
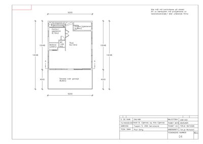
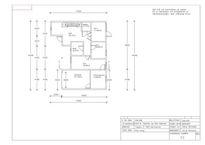
Plantegning

Enebolig 220.9 m²

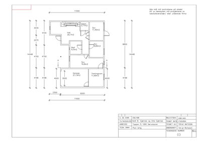
Etasje 1 129.2 m²

Rom Areal Vinduer Dører
Inngang 1 0.0 m² 0 1
Hall Hall 29.7 m² 0 2
Vaskerom Vaskerom 3.2 m² 0 1
Sov Sov 11.4 m² 1 1
Sov Sov 9.8 m² 0 1
Sov Sov 16.8 m² 1 1
Bad Bad 6.5 m² 0 1
Garasje Garasje 21.1 m² 1 1
Treningsrom Treningsrom 11.7 m² 0 1
Hall 101 29.7 m² 0 1
Vaskerom 102 3.2 m² 0 1
Sov 103 11.4 m² 1 1
Bad 104 6.5 m² 0 1
Sov 105 9.8 m² 1 1
Sov 106 16.8 m² 1 1
Garasje 107 21.1 m² 1 1
Treningsrom 108 11.7 m² 1 1

Etasje 2 10.9 m²

Rom Areal Vinduer Dører
Kontor/gjesterom Kontor/gjesterom 5.7 m² 0 1
Kontor/gjesterom Kontor/gjesterom 6.2 m² 0 1
Metbod Metbod 2.7 m² 0 1
WC WC 1.7 m² 0 1
Stue Stue 62.1 m² 0 1
Terasse over garasje Terasse over garasje 36.8 m² 0 0
Stue 201 62.1 m² 4 1
Kontor/gjesterom 202 9.7 m² 1 1
Kontor/gjesterom 203 6.3 m² 1 0
Matbod 204 2.7 m² 0 1
WC 205 1.7 m² 0 1
Terasse over garasje 206 36.8 m² 0 0
Stue 62.1 m² 5 0
Kontor/gjesterom 9.7 m² 1 1
Kontor/gjesterom 6.3 m² 0 1
Matbod 2.7 m² 0 1
WC 1.7 m² 0 1
Stue 62.1 m² 5 1
Kontor/gjesterom 9.7 m² 0 1
Kontor/gjesterom 6.3 m² 0 0
Matbod 2.7 m² 1 1
WC 1.7 m² 0 1

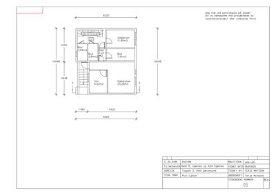
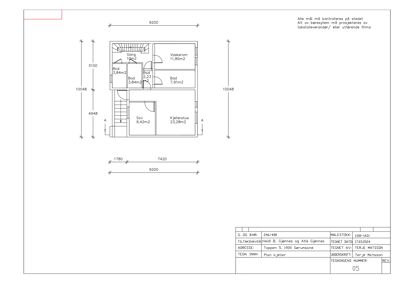
Etasje 0 80.7 m²

Rom Areal Vinduer Dører
Kjellerstue 001 23.3 m² 0 1
Sov 002 9.4 m² 0 1
Gang 003 10.0 m² 0 0
Vaskerom 004 11.8 m² 0 1
Bad 005 7.9 m² 0 1
Bod 006 3.8 m² 0 1
Bod 007 3.8 m² 0 1
Bod 008 2.2 m² 0 1
Gang Gang 10.0 m² 0 2
Bod Bod 3.8 m² 0 1
Vaskerom Vaskerom 11.8 m² 0 1
Bad Bad 7.9 m² 0 1
Soverom Sov 9.4 m² 0 1
Kjellerstue Kjellerstue 23.3 m² 2 0

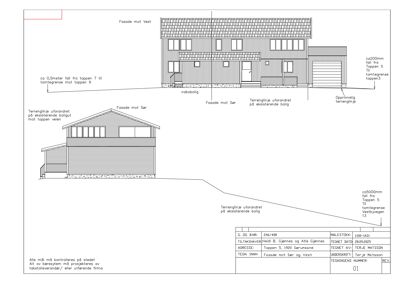
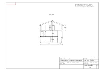
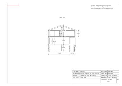
Fasader

Enebolig

Vest
Materiale
Tre
Taktype
Saltak
Vinduer
6
Dører
2
Synlige etasjer
2
Sør
Materiale
Tre
Taktype
Saltak
Vinduer
2
Dører
0
Balkonger
1
Synlige etasjer
2
Øst
Materiale
Tre
Taktype
Saltak
Vinduer
10
Dører
2
Synlige etasjer
2
Nord
Materiale
Tre
Taktype
Saltak
Vinduer
1
Dører
2
Synlige etasjer
1

Hendelser

10.04.2026 24/15293-20 246/408 og 246/146 Supplering av søknad - vurdering av områdestabilitet
27.03.2026 24/15293-19 246/408 og 246/146 Toppen 5 og 7, mangelbrev til søknad om fasadeendring, påbygg, tilbygg, bruksendring og riving av frittliggende garasje
26.01.2026 24/15293-17 246/408/0/0 Toppen 5 - Supplering av søknad om rammetillatelse - bruksendring, fasadeendring, tilbygg større enn 50 m2 og riving av bygning under 70 m2
14.01.2026 24/15293-16 246/408 Oversender mangelbrev til tiltakshaver
21.11.2025 24/15293-15 246/408 og 246/36, Toppen 5 og 7, mangelbrev til søknad om påbygg, tilbygg, fasadeendring, bruksendring og riving av frittliggende garasje
06.10.2025 24/15293-14 246/408 Supplering av søknad
27.08.2025 24/15293-13 246/408 og 246/136, Toppen 5 og 7, mangelbrev til søknad om tiltak på 2-mannsbolig
10.06.2025 24/15293-10 246/408 Supplering av søknad
30.04.2025 24/15293-9 246/408, Toppen 5, mangelbrev til søknad om rammetillatelse for påbygg, tilbygg, bruksendring og riving av frittliggende garasje
29.01.2025 24/15293-8 246/408 Supplering av søknad