Extension UnderBehandling Tomannsbolig

Fasadeendring og tilbygg på tomannsbolig i Wærns gate 17, Halden

📍 Wærns gate 17 , 1778 HALDEN

Nøkkelinfo

Sakstype
Tilbygg
Bygningstype
Tomannsbolig
Bruksareal
139 m²
Boenheter
2
Kommune
Halden
Fylke
Østfold
Gnr / Bnr
66 / 633
Saksnummer
2025/2435
Fase
Under behandling

Om byggesaken

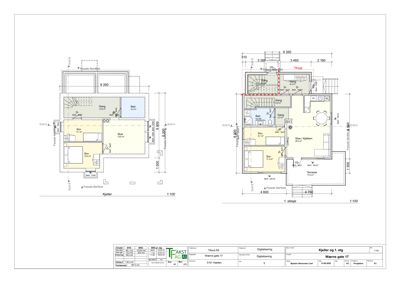
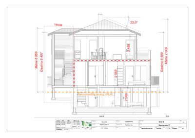
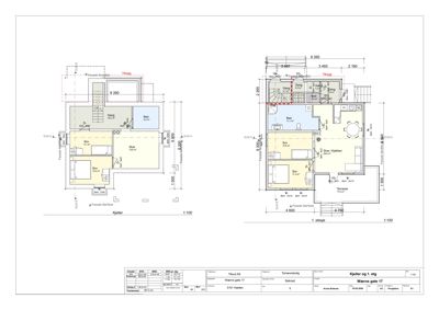
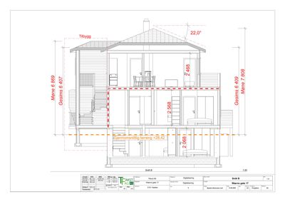
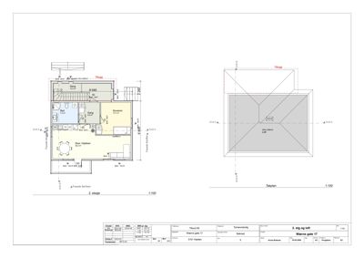
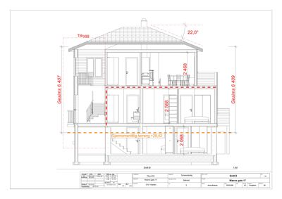
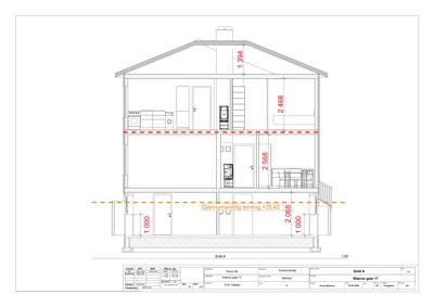
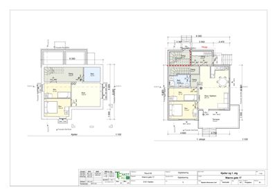
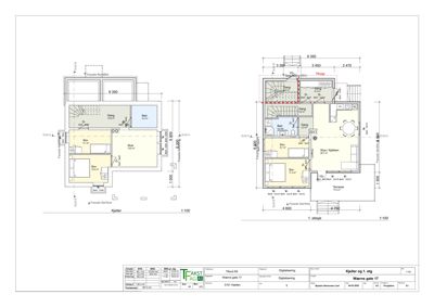
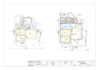
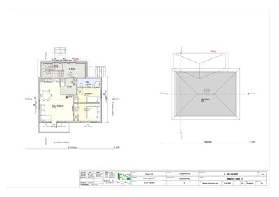
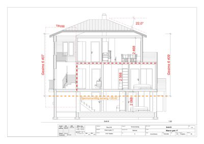
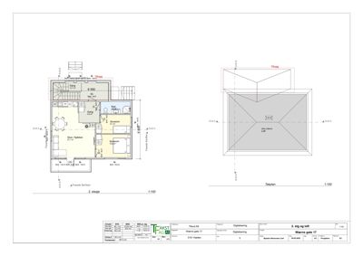
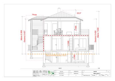
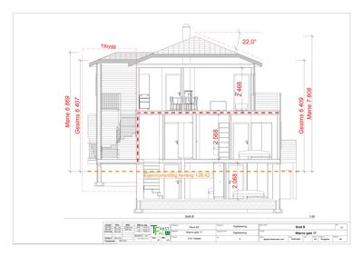
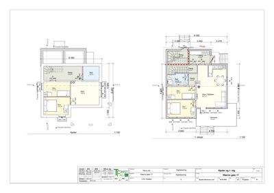
Prosjektet omfatter rehabilitering og tilbakeføring av en eksisterende bygning fra 1939 til tomannsbolig med fasadeendringer, oppføring av et to-etasjes tilbygg på 13,2 m² BYA mot nordøst, og sammenføyning av første etasje og kjeller. Bygningen har funksjonalistisk byggmesterstil med opprinnelig liggende weatherboard-kledning, gjærede hjørner uten hjørnekasser, og saltak med teglstein. Tilbygget inneholder trapperom og entré for de to boenhetene, og fasaden males hvit med ny dobbeltfals kledning. Vinduer skiftes til sidehengslede med dobbeltfag i tråd med opprinnelig stil, men noen endringer i vindusplassering og størrelse er gjort for å oppfylle dagens tekniske krav. Kjellervinduer justeres for brannsikkerhet og rømning. Taket har økt fall og forlenget takutstikk for bedre fuktsikring. Prosjektet har vært gjenstand for omfattende dialog med bygningsmyndigheter og kulturminnemyndigheter, med flere omprosjekteringer og endringer underveis. Det foreligger godkjent tillatelse, men det har vært pålegg om stans på grunn av avvik fra opprinnelig tillatelse. Endringssøknad for utførte avvik er under behandling.

Produkter og materialer

Brannvern Brannskiller og rømningsvinduer

Brannskiller i sammenføyning av etasjer, kjellervinduer justert for brannsikkerhet og rømning

Brannsikkerhetstiltak i bygget

Vinduer Sidehengslet vindu med dobbeltfag

🧱 Tre

Vinduer i liggende format, tilpasset funksjonalistisk byggmesterstil, med enkelte justeringer i størrelse og plassering for tekniske krav

Utskifting av vinduer for bedre isolasjon, brannsikkerhet og ventilasjon

Isolasjon Etterisolering av yttervegger

🧱 Mineralull eller tilsvarende

Etterisolering med utforing ca. 15 cm, for bedre energieffektivitet

Isolasjon for å oppfylle TEK17 krav

Tak Saltak med takstein

🧱 Teglstein

Taktekking med teglstein, økt takfall, forlenget takutstikk, metallnedløp med høyere forkantbord

Nytt tak med lang levetid og god fuktsikring

Tømrer Bygging av tilbygg og konstruksjoner

🧱 Tre

Oppføring av tilbygg i to etasjer med tilpasset takvinkel og kledning

Tømrerarbeid for tilbygg og fasadeendring

Grunnarbeid Drenering og grunnforhold

Unngå omfattende drenering og sprengningsarbeider i fjellgrunn, tiltak i kvikkleireområde med tiltakskategori K0

Grunnarbeid tilpasset stabile forhold

Maling Fasademaling

🧱 Miljøvennlig fasademaling

Maling i hvit farge, anbefalt å skrape i malingslag for å finne opprinnelig farge

Overflatebehandling av fasade

Dører Ytterdører i tre

🧱 Tre

Nye ytterdører tilpasset byggets stil, med to nye inngangspartier i tilbygget

Dører til hovedinngang og kjellerinngang i tilbygg

Fasade Weatherboard kledning

🧱 Tre, dobbeltfals

Ny dobbeltfals kledning i tre, hvitmalt, med hjørnekasser 19x68 mm i minimalistisk uttrykk, i tråd med områdekarakter

Utskifting og oppussing av fasadekledning med bevaring av stil og materialbruk

Trapper Utvendig trapp i tilbygg

🧱 Tre og betong

Antall: 1

Ny trappeløsning i tilbygg for adkomst til kjeller og 1. etasje, separat inngang til kjeller

Trapperom i tilbygg for bedre adkomst og brannsikkerhet

Fasader

Enebolig

Sydvest
Taktype
Saltak
Vinduer
3
Dører
1
Balkonger
1
Synlige etasjer
2
Sydøst
Taktype
Saltak
Vinduer
2
Dører
1
Balkonger
1
Synlige etasjer
2
Nordøst
Materiale
Tre
Taktype
Saltak
Høyde
3.0 m
Mønehøyde
8.5 m
Vinduer
3
Dører
1
Synlige etasjer
2
SørVest
Materiale
Tre
Taktype
Saltak
Høyde
3.0 m
Mønehøyde
8.5 m
Vinduer
6
Dører
1
Synlige etasjer
2
SørØst
Materiale
Tre
Taktype
Saltak
Høyde
6.0 m
Mønehøyde
8.0 m
Vinduer
3
Dører
1
Balkonger
1
Synlige etasjer
2
NordVest
Materiale
Tre
Taktype
Saltak
Høyde
6.0 m
Mønehøyde
8.0 m
Vinduer
2
Dører
0
Synlige etasjer
2

Hendelser

14.04.2026 Tilbakemelding på foreløpig vurdering - Wærns gate 17 - Saksnummer 2025/2435
10.04.2026 Foreløpige vurderinger og videre saksbehandling - Wærns gate 17
19.03.2026 Tilbakemelding på uttalelse og videre saksgang - Wærns gate 17 - Saksnummer 2025/2435
27.02.2026 Oversender Østfold fylkeskommunes uttalelse til søknad om endring av gitt tillatelse
24.02.2026 Uttalelse - gbnr. 66/633 - Wærns gate 17 - Fasadeendring, tilbygg og sammenføyning - Halden kommune
13.02.2026 Oversendelse av byggesak til uttalelse - gnr. 66 bnr. 633, Wærns gate 17
05.02.2026 Wærns gate 17 – tilleggsdokumentasjon / redegjørelse og as-built-tegninger
29.01.2026 Bekreftelse på mottak av melding om endring av ansvarsrett
27.01.2026 Wærns gate 17 - endring av ansvar
02.12.2025 Bekreftelse på stans av arbeid – Wærns gate 17 (gnr/bnr 66/633)
02.12.2025 Pålegg om stans med øyeblikkelig virkning og varsel om tilsyn og ileggelse av tvangsmulkt
09.07.2025 Oversender kopi av vedtak - Wærns gate 17 - gnr. 66 bnr. 633
04.07.2025 Tillatelse til tiltak med ansvarlig foretak - ett trinn
13.06.2025 66/633 - Wærns gate 17 - Supplering av søknad
02.06.2025 66/633 - Wærns gate 17 - Supplering av søknad
30.05.2025 Svar vedrørende brev - kulturminne - gbnr. 66/633 - Wærns gate 17 - Fasadeendring, tilbygg og sammenføyning
23.04.2025 Oversendelse av uttalelse fra fylkeskommunen
14.04.2025 Halden kommune - kulturminne - gbnr. 66/633 - Wærns gate 17 - fasadeendring, tilbygg og sammenføyning - oversendelse av sak til uttalelse
24.03.2025 Oversendelse av sak til uttalelse - gnr. 66 bnr. 633 Wærns gate 17
11.03.2025 66/633 - Wærns gate 17 - Bruks- og fasadeendring