FloorPlan
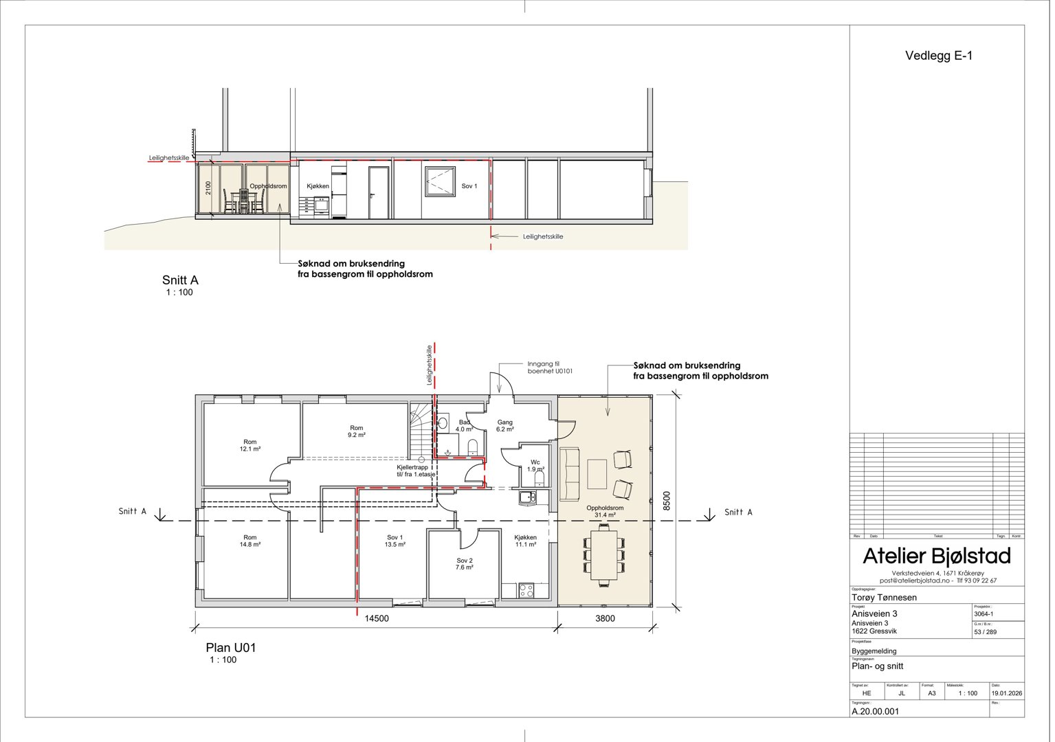
Etasjeplan (Plan U01) med romfordeling, dimensjoner og snittlinjer, samt en tilhørende snittegning (Snitt A).
1 / 2
ChangeOfUse
Rammetillatelse
Enebolig
Bruksendring og brannskilleendring i enebolig, Anisveien 3
📍 Anisveien 3 , 1622 GRESSVIK
Nøkkelinfo
- Sakstype
- Bruksendring
- Bygningstype
- Enebolig
- Bruksareal
- 120 m²
- Boenheter
- 1
- Kommune
- Fredrikstad
- Fylke
- Østfold
- Gnr / Bnr
- 53 / 289
- Saksnummer
- 2026/2771
- Fase
- Rammetillatelse
Om byggesaken
Bruksendring av bassengrom til oppholdsrom i underetasjen i en enebolig på 120,5 m² i Anisveien 3. Prosjektet inkluderer også ettergodkjenning og kontroll av endret brannskille mellom boenhetene for å sikre at brannkrav i TEK17 overholdes. Tiltaket omfatter kontroll og eventuelle utbedringer av eksisterende konstruksjoner, spesielt branncelleskillere og deler av terrassen som må oppgraderes til minimum EI30 brannmotstand. Bygget har ett trapperom og flere rom som oppholdsrom, kjøkken, soverom, bad og wc. Arbeidet krever oppdatert gjennomføringsplan og ansvarsrett for utførende før oppstart.
Produkter og materialer
Ventilasjon
Ingen spesifisert ventilasjon
Ingen ventilasjonsarbeider eksplisitt nevnt, men kan være relevant ved bruksendring
Mur
Brannskille
Branncelleskiller med krav til brannmotstand i henhold til TEK17, minimum EI30 for deler av terrasse
Utbedring og kontroll av brannskille mellom boenheter, inkludert oppgradering av terrasse til EI30 brannmotstand
Grunnarbeid
Ingen nye grunnarbeider
Ingen nye grunnarbeider da tiltaket gjelder innvendig bruksendring og brannskille
Tømrer
Utbedring av eksisterende konstruksjoner
Kontroll og utbedring av eksisterende konstruksjoner berørt av tiltaket
Utførelse av nødvendige tømrerarbeider i forbindelse med brannskille og bruksendring
Gulv
Oppholdsrom gulv
Oppgradering av gulv i bassengrom som endres til oppholdsrom kan være nødvendig, men ikke spesifisert
Plantegning
Enebolig 120.5 m²
Etasje 0 120.5 m²
| Rom | Areal | Vinduer | Dører |
|---|---|---|---|
| Oppholdsrom U01 | 31.4 m² | 0 | 1 |
| Kjøkken U02 | 11.1 m² | 0 | 1 |
| Sov 1 U03 | 13.5 m² | 0 | 1 |
| Sov 2 U04 | 7.6 m² | 0 | 1 |
| Rom U05 | 14.8 m² | 0 | 1 |
| Rom U06 | 12.1 m² | 0 | 1 |
| Gang U07 | 6.2 m² | 0 | 2 |
| Bad U08 | 4.0 m² | 0 | 1 |
| Wc U09 | 1.9 m² | 0 | 1 |
Hendelser
21.04.2026
Svar på henvendelse - Anisveien 3 - Eiendom 53/289
17.04.2026
Tilleggsopplysninger - Anisveien 3 - Eiendom 53/289 - Bruksendring andre bygg, Endring - brannskille
23.03.2026
Tillatelse - Endring, brannskille - Anisveien 3 - Eiendom 53/289
05.03.2026
Supplering av søknad - eiendom 53/289 - Anisveien 3
26.01.2026
Ett-trinns søknad - Anisveien 3 - Eiendom 53/289 - Bruksendring andre bygg, Endring - brannskille
26.01.2026
Bekreftelse på mottatt søknad - Ett-trinns søknad - Bruksendring andre bygg, Endring - brannskille - Anisveien 3 - Eiendom 53/289