ChangeOfUse Igangsettingstillatelse Enebolig

Bruksendring og ombygging til enebolig i Austerfjordveien 42

📍 Austerfjordveien 42 , 9475 BORKENES

Nøkkelinfo

Sakstype
Bruksendring
Bygningstype
Enebolig
Bruksareal
391 m²
Boenheter
1
Kommune
Kvæfjord
Fylke
Troms - Romsa - Tromssa
Gnr / Bnr
30 / 46
Saksnummer
2025/528
Fase
Igangsettingstillatelse

Om byggesaken

Bygningen i Austerfjordveien 42 er et tidligere kombinert forretningsbygg og bolig som nå ombygges til en ren enebolig med et samlet areal på ca. 391 m² fordelt på fire etasjer inkludert kjeller og loft. Bygget har tre trapper, en balkong på 34,1 m² og flere plattinger. Fasaden er i tre med saltak og flatt tak, og det er etablert flere vinduer og dører i alle etasjer. Ombyggingen inkluderer innvendige endringer som reduserer antall boenheter fra to til én, samt fasadeendringer. Sikkerhet mot naturfare som flom og skred er vurdert og dokumentert, med tiltak som jordvoll mot garasje og vurdering av kulvert under gårdsplassen. Avkjørsel til fylkesvei 7784 er oppgradert og godkjent med dispensasjon fra byggegrense. Tiltaket har fått dispensasjon, rammetillatelse og igangsettingstillatelse, og det er søkt om ferdigattest.

Produkter og materialer

Dører Ytterdører og balkongdører

🧱 Tre

Antall: 15

Dører i alle etasjer, inkludert balkongdør på 34,1 m² balkong, dører til bod, lager, teknisk rom, og flere innvendige dører

Ytterdører og balkongdører i tre, samt innvendige dører

Grunnarbeid Fundamentering og jordvoll

🧱 Sprengstein, geoduk, jordvoll

Masseutskiftning 1 meter under fundament, geoduk klasse 3, komprimert sprengstein, armert jordvoll mot garasje for flomsikring

Fundamentering med masseutskiftning og flomsikring med jordvoll

Balkong Balkong med dør

🧱 Tre

Antall: 1

Balkong på 34,1 m² med dør fra stue

Stor balkong i 2. etasje

Trapper Innvendige trapper

🧱 Tre

Antall: 3

Tre innvendige trapper mellom etasjer

Tre innvendige trapper i bygningen

Bad Bad og våtrom

Antall: 3

Bad i 1. og 2. etasje på ca. 5,2-7,5 m², bad i loftsetasje 7,5 m²

Bad og våtrom i bolig

Isolasjon Bygningsisolasjon

Ikke spesifisert, men nødvendig for ombygging og oppgradering av bolig

Isolasjon i vegger, tak og gulv iht. TEK17 eller unntak

Ventilasjon Ventilasjon i bolig

Unntak fra TEK17 § 13-2 Ventilasjon er gitt

Ventilasjon i bolig med unntak fra krav i TEK17

Elektro Strømkapasitet

Ingen merknader fra Noranett AS, strømkapasiteten anses tilstrekkelig for bruksendringen

Strømforsyning til bolig

Terrasse Platting

🧱 Tre

Antall: 3

Plattinger på 5,6 m², 3,1 m² og 5,6 m² i ulike etasjer

Terrasse/platting i tilknytning til bolig

Kjøkken Kjøkkeninnredning

Antall: 3

Kjøkken i 1. og 2. etasje, samt i hybel på 23,7 m²

Kjøkkeninnredning i bolig

VVS Privat vann og avløp

Eksisterende privat vann- og avløpsanlegg vurderes som tilstrekkelig dimensjonert med godkjent renseløsning, slamavskiller er satt ned

Privat vann- og avløpsanlegg til bolig

Fasade Permanent fysisk avgrensing mot fylkesvei

🧱 Stolper i asfalt med tau/kjetting

Stolper 90-100 cm høye satt ned i asfalt med tau eller kjetting mellom, markert med refleksbånd

Permanent fysisk avgrensing mellom eiendom og fylkesvei for trafikksikkerhet

Vinduer Fasadevindu

🧱 Tre/aluminium

Antall: 20

Vinduer i alle etasjer, inkludert 1 vindu i stue 1.etg, 1 vindu i soverom 1.etg, 1 vindu i stue 2.etg, 1 vindu i soverom 2.etg, 1 vindu i hybel, 1 vindu i kjøkken 2.etg, 1 vindu i sov 3.etg, 1 vindu i sov 3.etg, 9 vinduer på sørfasade

Fasadevinduer i tre/aluminium i flere rom og etasjer

Fasade Trepanel med saltak og flatt tak

🧱 Tre

Fasade i tre med saltak på vest, nord og øst, flatt tak på sør, pipe på alle fasader

Fasadeendringer i tre med saltak og flatt tak, inkludert pipe

Maling Fasade og innvendig maling

Fasade i tre, antatt maling eller behandling iht. eksisterende standard, innvendige overflater ikke spesifisert

Maling og overflatebehandling av fasade og innvendig

Betong Kulvert under gårdsplass

🧱 Jern/stål Ø600 mm

Antall: 1

Kulvert under gårdsplass av jern/stål med diameter 600 mm, tilsvarende kulvert under fylkesvei 7784

Kulvert for vannføring under gårdsplass

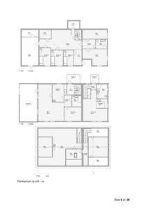
Plantegning

Enebolig 391.3 m²

Etasje 1 102.0 m²

Rom Areal Vinduer Dører
Stue 101 36.1 m² 1 1
Soverom 102 11.6 m² 1 1
Kjøkken 103 11.6 m² 0 1
Entre 104 4.1 m² 0 1
Bad 105 5.2 m² 0 1
V.F 106 7.4 m² 0 1
Platting 107 5.6 m² 0 0
Balkong 108 34.1 m² 0 1
Gang 109 6.3 m² 0 2
Bad 110 5.5 m² 0 1
Stue 111 17.2 m² 1 1
Lager 112 4.5 m² 0 1

Etasje 2 102.0 m²

Rom Areal Vinduer Dører
Stue 201 36.1 m² 1 1
Soverom 202 11.6 m² 1 1
Kjøkken 203 11.6 m² 0 1
Entre 204 4.1 m² 0 1
Bad 205 5.2 m² 0 1
V.F 206 7.4 m² 0 1
Platting 207 5.6 m² 0 0
Balkong 208 34.1 m² 0 1
Hybel Leil. 209 23.7 m² 1 1
Kjøkken 210 4.9 m² 1 1
Bad 211 7.5 m² 0 1
V.F 212 1.9 m² 0 1
Platting 213 3.1 m² 0 1

Etasje 3 102.0 m²

Rom Areal Vinduer Dører
Sov 301 13.5 m² 1 1
Sov 302 7.6 m² 0 1
Gang 303 8.2 m² 0 2
Bad 304 7.5 m² 0 1
Sov 305 15.7 m² 1 1
Bod 306 7.2 m² 0 1
Bod 307 7.8 m² 0 1
Loft 308 62.3 m² 0 0

Etasje 0 85.3 m²

Rom Areal Vinduer Dører
Kjellerstue 001 45.2 m² 2 1
Lager 002 25.1 m² 1 1
Teknisk rom 003 15.0 m² 0 1

Fasader

Enebolig

Vest
Materiale
Tre
Taktype
Saltak
Vinduer
3
Dører
0
Balkonger
1
Synlige etasjer
2
Nord
Materiale
Tre
Taktype
Saltak
Vinduer
2
Dører
2
Synlige etasjer
1
Øst
Materiale
Tre
Taktype
Saltak
Vinduer
4
Dører
0
Synlige etasjer
2
Sør
Materiale
Tre
Taktype
Flatt tak
Vinduer
9
Dører
1
Synlige etasjer
2

Hendelser

17.04.2026 Vedr. Gbnr 30/46 Austerfjordveien 42 , Revsnes. Bruksendring av tidligere forretning med bolig til ren enebolig.
17.04.2026 Om ferdigattest
18.12.2025 Gbnr 30/46 Austerfjordveien 42 - Igangsettingstillatelse bruksendring/ombygging av tidligere forretningsbygg med bolig til ren enebolig
17.12.2025 Tillatelse til dispensasjon fra byggegrense og avkjørsel - fylkesveg 7784 - gbnr. 30/46 - Kvæfjord kommune
11.12.2025 Gbnr 30/46 Austerfjordveien 42 - Dispensasjon og rammetillatelse i forbindelse med bruksendring / ombygging av tidligere forretningsbygg med bolig til ren enebolig
11.12.2025 sak 25 528 - Om vedtak om dispensasjon og rammetillatelse
08.12.2025 Sv: Svar - Vedrørende søknad om dispensasjon - Bruksendring av tidligere forretningsbygg med bolig til ren bolig - gbnr. 30/46 - Kvæfjord kommune
05.12.2025 Re: Rapport skred- og flomvurdering.
05.12.2025 Re 25 528 - Om byggesak og sikkerhet mot naturfare
04.12.2025 Sv 25 528 - Om byggesak og sikkerhet mot naturfare
03.12.2025 25 528 - Om byggesak og sikkerhet mot naturfare
02.12.2025 Gbnr 30 46 Austerfjordveien 42. Høringsutspill.
02.12.2025 Sv Gbnr 30 46 Austerfjordveien 42. Høringsutspill.
01.12.2025 Om sikkerhet mot naturfare og tidligere rapport i området
01.12.2025 Om behandling av søknaden om dispensasjon og eventuell også rammetillatelse
19.11.2025 Sv Svar - Vedrørende søknad om dispensasjon - Bruksendring av tidligere forretningsbygg med bolig til ren bolig - gbnr. 30 46 - Kvæfjord kommune
12.11.2025 sak 25 528 - Vs Austerfjordveien 42, avgrensing mot vei.
10.11.2025 Austerfjordveien 42, avgrensing mot vei.
06.11.2025 Gbnr 30/46 Austerfjordveien 42 - Om mottatte høringsinnspill
28.10.2025 Fylkeskommunens uttalelse - Høring - Bruksendring av tidligere forretningsbygg med bolig til ren bolig - gbnr. 30/46 - Austerfjordveien 42 - Kvæfjord kommune
27.10.2025 Uttalelse til høring, søknad om dispensasjon for bruksendring av tidligere forretningsbygg med bolig til ren bolig - Gbnr 30/46 - Austerfjordveien 42 - Kvæfjord kommune
24.10.2025 Til uttalelse - dispensasjon - Kvæfjord 30/46 - Austerfjordveien 42 - bruksendring