ChangeOfUse Soeknad Enebolig

Bruksendring med ny trapp i enebolig, Borgundvegen 957

📍 Borgundvegen 957 , 6017 ÅLESUND

Nøkkelinfo

Sakstype
Bruksendring
Bygningstype
Enebolig
Bruksareal
158 m²
Boenheter
1
Kommune
Ålesund
Fylke
Møre og Romsdal
Gnr / Bnr
50 / 546
Saksnummer
2026/6469
Fase
Søknad

Om byggesaken

Innvendig bruksendring i eksisterende enebolig på Borgundvegen 957 med totalareal på ca. 158 m². Prosjektet omfatter flytting av intern trapp, omdisponering av underetasjens rom fra bod til bad/vaskerom og teknisk rom, samt utvidelse og omorganisering av stue og kjøkken i kjelleretasjen. Eksisterende soverom i underetasjen fjernes for å gi plass til ny trapp. Det gjøres ingen vesentlige utvendige endringer, og byggets plassering og fasade beholdes i hovedsak uendret. Prosjektet inkluderer også endringer i bæring i forbindelse med trappens flytting.

Produkter og materialer

Fasade Vinduer

Antall: 0

Ingen vesentlige utvendige endringer eller nye vinduer

Fasaden beholdes i hovedsak uendret, ingen nye vinduer eller fasadeendringer

Gulv Nye gulvflater

Nye gulv i ombygde rom i underetasjen

Legging av nye gulv i bad, teknisk rom og stue/kjøkken i underetasjen

Tømrer Innvendige vegger og bæring

Endring av bæring i forbindelse med flytting av trapp og romomdisponering

Tømrerarbeid knyttet til flytting av trapp, oppbygging av nye vegger og bærende konstruksjoner

Bad Bad/vaskerom

Antall: 1

Etablering av bad/vaskerom i tidligere bod i underetasjen

Oppgradering og ombygging av bod til bad/vaskerom med nødvendige VVS-installasjoner

Elektro Elektriske installasjoner

Elektriske arbeider i forbindelse med ombygging og ny trapp

Oppdatering og flytting av elektriske installasjoner i underetasjen

Teknisk Teknisk rom

Antall: 1

Ombygging av bod til teknisk rom i underetasjen

Opprettelse av teknisk rom for tekniske installasjoner

Trapper Intern trapp

Antall: 1

Flytting av intern trapp i bolig, inkludert endring i bæring og utveksling i bjelkelag

Ny plassering av intern trapp i underetasjen som krever bærende konstruksjonsendringer

VVS Sanitærinstallasjoner

Nye VVS-installasjoner for bad/vaskerom i underetasjen

Oppgradering og etablering av vann- og avløpsinstallasjoner i nye bad/vaskerom

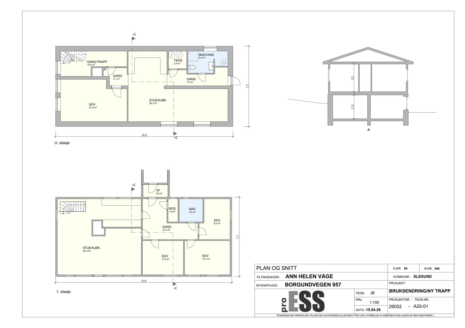
Plantegning

Enebolig 158.4 m²

Etasje 0 66.6 m²

Rom Areal Vinduer Dører
Gang/Trapp GANG/TRAPP 10.9 m² 0 1
Gang GANG 3.1 m² 0 1
Sov SOV 21.4 m² 1 1
Stue/Kjøkken STUE/KJØK 38.7 m² 2 1
Teknisk rom TEKN. 2.6 m² 0 1
Bad/Vask BAD/VASK. 6.4 m² 0 1
Gang GANG 7.2 m² 0 1
Bod 001 5.0 m² 0 1

Etasje 1 91.8 m²

Rom Areal Vinduer Dører
Stue/Kjøkken STUE/KJØK. 50.3 m² 3 1
Vaskerom VF 2.6 m² 0 1
Gang GANG 12.3 m² 0 3
Bod BOD 1.9 m² 0 1
Bad BAD 4.5 m² 0 1
Sov SOV 9.3 m² 1 1
Sov SOV 11.5 m² 1 1
Sov SOV 12.7 m² 1 1
Stue 101 30.5 m² 1 1
Kjøkken 102 18.4 m² 1 1
Gang 103 26.1 m² 0 4
Soverom 1 104 11.3 m² 1 1
Soverom 2 105 22.3 m² 1 1
Soverom 3 106 11.0 m² 1 1
Bad 107 0.0 m² 0 1
Vaskerom 108 3.0 m² 0 1

Hendelser

16.04.2026 Gbnr. 50/546 - Søknad om tillatelse i ett trinn - Borgundvegen 957 - Bruksendring bolig