ChangeOfUse UnderBehandling Enebolig

Bruksendring og fasadeendring på enebolig i Breivikveien 22A, Bodø

📍 Breivikveien 22A , 8003 BODØ

Nøkkelinfo

Sakstype
Bruksendring
Bygningstype
Enebolig
Bruksareal
212 m²
Boenheter
2
Kommune
Bodø
Fylke
Nordland - Nordlánnda
Gnr / Bnr
2025 / 7903
Saksnummer
2026/2184
Fase
Under behandling

Om byggesaken

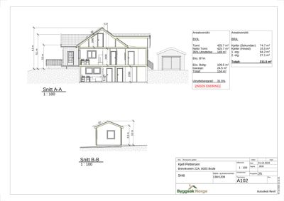
Prosjektet omfatter bruksendring av kjellerareal i en eksisterende enebolig fra tilleggsdel til hoveddel, inkludert etablering av en egen boenhet med egen inngang. Kjelleren har et areal på 90,2 m² fordelt på sekundærdel og hoveddel, med rom som soverom, stue, kjøkken, bad og vaskerom. Det er også planlagt fasadeendringer som innsetting av takvinduer og større vindu i gavlvegg på loftet. I tillegg inngår oppføring av en garasje med støttemur på eiendommen. Bygningen har saltak med teglstein og trekledning på fasadene. Det er etablert nye vinduer i kjelleren, og det søkes om unntak fra energikrav for gulv i kjeller. Uteoppholdsareal og parkering for leiligheten i kjeller er løst på egen og naboeiendom med tinglyste rettigheter og nabosamtykke. Prosjektet innebærer også oppdatering av situasjonsplan og BYA-beregning i henhold til gjeldende kommuneplan.

Produkter og materialer

Grunnarbeid Støttemur og fundament for garasje

🧱 Betong

Støttemur for garasje, fundamentering iht. situasjonsplan

Grunnarbeid for ny garasje

Fasade Trekledning og tegl tak

🧱 Tre kledning, teglstein tak

Eksisterende trekledning og saltak med teglstein, fasadeendringer med nye vinduer og takvinduer

Materialer for fasadeendring og vedlikehold

Terrasse Privat og felles uteoppholdsareal

Privat uteoppholdsareal for kjellerleilighet og felles uteareal på naboeiendom

Utearealer for boenheter i prosjektet

Ventilasjon Ventilasjon for kjellerleilighet

Ventilasjon tilpasset varig oppholdsrom i kjeller

Ventilasjon for boenhet i kjeller

Isolasjon Isolasjon i yttervegger og gulv

🧱 50 mm isolasjon i yttervegger, ingen isolasjon i kjellergulv

Isolasjon i yttervegger i kjeller, unntak fra energikrav for gulv i kjeller

Isolasjon for oppgradering av kjeller til boenhet

Garasjeport Garasjeport til frittstående garasje

Antall: 1

Garasje med støttemur, plassert 0 meter fra nabogrense med tinglyst rettighet

Garasjeport for ny garasje på eiendommen

Bad Sanitærinstallasjoner og fliser

Antall: 2

Bad i kjeller og 1. etasje, oppgradering av sanitærinstallasjoner

Bad for ny boenhet og eksisterende bolig

Maling Innvendig og utvendig maling

Maling av fasade og innvendige flater ved oppgradering

Overflatebehandling for fasade og innvendige rom

Dører Ytterdører og inngangsdører

Antall: 10

Dører til kjellerleilighet, hovedinngang og øvrige etasjer

Dører for ny boenhet og eksisterende bolig

Tømrer Innvendige vegger, trapper og dører

🧱 Treverk

Antall: 1

Innvendig trapp i kjeller, vegger og dører i boenhet

Tømrerarbeid for oppgradering og bruksendring

Vinduer Fasadevindu og takvindu

🧱 3-lags energiglass

Antall: 14

Nye vinduer i kjeller, takvinduer i loft, større vindu i gavlvegg

Vinduer for fasadeendring og oppgradering av kjeller til boenhet

Elektro Nytt elektrisk anlegg i kjeller

Etablering av nytt elektrisk anlegg for bedre oppvarming og funksjonalitet

Elektrisk oppgradering i kjellerleilighet

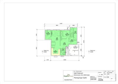
Plantegning

Enebolig 32.7 m²

Etasje 0 0.0 m²

Rom Areal Vinduer Dører
Kjeller 001 0.0 m² 0 0
Gang 002 0.0 m² 0 0
Arbeidsrom 003 0.0 m² 0 0
Bad 004 0.0 m² 0 0
Vaskerom 005 0.0 m² 0 0
Pålerom 006 0.0 m² 0 0
Kulledrom 007 0.0 m² 0 0
Magasin 008 0.0 m² 0 0
Soverom 108 6.2 m² 1 1
Stue 109 19.0 m² 1 1
Gang 110 9.3 m² 0 2
Vaskerom 115 11.2 m² 1 1
Kjøkken 116 8.0 m² 1 1
Bad 117 3.9 m² 0 1
Bod 118 4.6 m² 1 1
Gang 119 5.6 m² 0 1
Soverom 100 9.3 m² 1 1
Trapp 112 3.3 m² 0 0

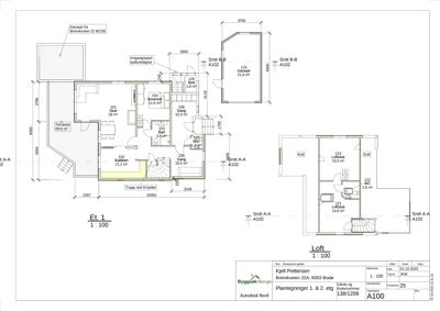
Etasje 1 0.0 m²

Rom Areal Vinduer Dører
Stue 101 0.0 m² 1 1
Kjøkken 102 0.0 m² 1 1
Soverom 103 0.0 m² 1 1
Bad 104 0.0 m² 0 1
Gang 105 0.0 m² 0 1
Entré 106 0.0 m² 0 1
Vaskerom 107 0.0 m² 0 1
Teknisk rom 108 0.0 m² 0 1
Toalett 109 0.0 m² 0 1
Bod 110 0.0 m² 0 1
Bod 120 1.8 m² 0 1

Etasje 2 32.7 m²

Rom Areal Vinduer Dører
Loftstue 121 14.6 m² 0 1
WC 122 2.6 m² 0 1
Loftstue 123 15.5 m² 0 1

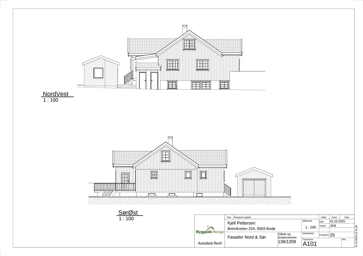
Fasader

Enebolig

NordVest
Materiale
Tre
Taktype
Saltak
Takmat.
Tegl
Vinduer
5
Dører
2
Synlige etasjer
2
SørØst
Materiale
Tre
Taktype
Saltak
Takmat.
Tegl
Vinduer
4
Dører
1
Balkonger
1
Synlige etasjer
2
Sørvest
Materiale
Tre
Taktype
Saltak
Vinduer
4
Dører
1
Synlige etasjer
1
Nordøst
Materiale
Tre
Taktype
Saltak
Vinduer
1
Dører
1
Synlige etasjer
1

Hendelser

20.04.2026 Foreløpig svar - behov for tilleggsdokumentasjon
23.01.2026 Supplering av søknad
22.01.2026 Foreløpig svar - behov for tilleggsdokumentasjon
12.01.2026 Ett-trinns søknad - Breivikveien 22A
12.01.2026 Supplering i søknad