ChangeOfUse Rammetillatelse Enebolig

Bruksendring og fasadeendring på enebolig i Bukkene Bruses vei 9

📍 Bukkene Bruses vei 9 , 1388 BORGEN

Nøkkelinfo

Sakstype
Bruksendring
Bygningstype
Enebolig
Bruksareal
424 m²
Boenheter
1
Kommune
Asker
Fylke
Akershus
Gnr / Bnr
6 / 175
Saksnummer
26/338
Fase
Rammetillatelse

Om byggesaken

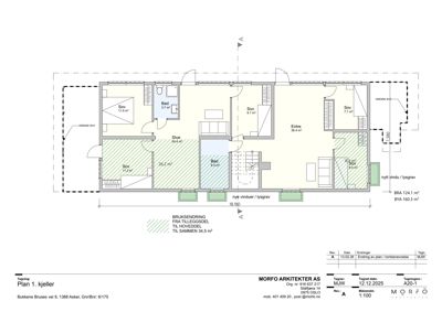
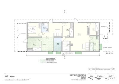
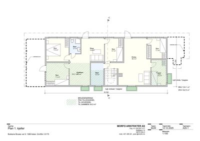
Prosjektet omfatter bruksendring av kjellerrom fra tilleggsdel til hoveddel med et samlet areal på ca. 34,5 m², inkludert nye soverom, stue og bad. Det er også fasadeendringer med etablering av nye og større vinduer og dører, samt innbygging av tidligere overdekket veranda. To eksisterende verandaer på totalt 29 m² ettergodkjennes. Det er videre søkt om et mindre terrenginngrep for utvidelse av snuplass foran garasje for bedre manøvrering. Bygningen er en trehus enebolig med saltak og tegl takmateriale, med totalt ca. 423,8 m² fordelt på tre etasjer. Fasadeendringene gir bedre dagslys og funksjonalitet uten å endre hovedvolum eller arkitektonisk karakter.

Produkter og materialer

Vinduer Fasadevindu

🧱 Tre/aluminium

Antall: 29

Nye og større vinduer i fasadeendring, inkludert vinduer i kjeller og etasjer, forbedret dagslys

Nye og større fasadevinduer for bedre lysforhold og funksjonalitet

Bad Våtromsinnredning

Antall: 3

Bad i kjeller og etasjer oppgraderes i forbindelse med bruksendring

Oppgradering og tilpasning av bad i bruksendringsprosjekt

Elektro Tekniske installasjoner

Endring av tekniske installasjoner i bygg i forbindelse med bruksendring og fasadeendring

Oppgradering og endring av elektroinstallasjoner

Grunnarbeid Terrenginngrep for snuplass

Mindre terrenginngrep for utvidelse av snuplass foran garasje for bedre manøvrering

Terrengarbeid for snuplassutvidelse

Tak Saltak med teglstein

🧱 Teglstein

Eksisterende saltak med teglstein opprettholdes, ingen endring i takhøyde

Eksisterende saltak med teglstein, ingen endring

VVS Sanitærinstallasjoner

Oppgradering av sanitærinstallasjoner i våtrom i forbindelse med bruksendring

Oppgradering av VVS i bad og våtrom

Fasade Trepanel

🧱 Tre

Endret fasade med innbygging av veranda, ny kledning tilpasset eksisterende trepanel

Fasadeendring med ny kledning og innbygging av veranda

Tømrer Innvendige vegger og romoppdeling

🧱 Tre/stenderverk

Endring av rombruk i kjeller fra tilleggsdel til hoveddel, nye vegger for soverom, stue og bad

Innvendige konstruksjoner for bruksendring

Dører Ytterdører og verandadører

🧱 Tre/aluminium

Antall: 7

Nye og større dører i fasadeendring, inkludert verandadører og ytterdører

Nye ytterdører og verandadører i forbindelse med fasadeendring og innbygging av veranda

Terrasse Veranda

🧱 Tre

Antall: 2

To eksisterende verandaer på totalt 29 m² ettergodkjennes, en veranda bygges inn som del av stue

Ettergodkjenning og innbygging av verandaer

Plantegning

Enebolig 423.8 m²

Etasje 2 140.4 m²

Rom Areal Vinduer Dører
Soverom 201 14.4 m² 1 1
Soverom 202 12.6 m² 1 1
Kjøkken & Spis 203 36.4 m² 1 1
Stue 204 47.4 m² 1 1
Sov 205 9.4 m² 1 1
Bad 206 8.8 m² 0 1
WC 207 2.3 m² 0 1

Etasje 0 162.9 m²

Rom Areal Vinduer Dører
Sov 001 11.5 m² 0 1
Bad 002 3.7 m² 0 1
Stue 003 13.6 m² 1 1
Sov 004 9.1 m² 0 1
Entre 005 36.4 m² 1 2
Sov 006 7.1 m² 0 1
Sov 007 11.2 m² 0 1
Kjøkken 008 26.2 m² 1 1
Bad 009 6.3 m² 0 1
Sov 010 8.3 m² 0 1

Etasje 1 120.5 m²

Rom Areal Vinduer Dører
Soverom 101 10.0 m² 0 1
Soverom 102 10.0 m² 0 1
Soverom 103 10.0 m² 0 1
Dagligstue 104 32.0 m² 1 1
Kjøkken 105 26.0 m² 1 1
Bad 106 6.0 m² 0 1
Gang 107 12.0 m² 0 2
Stue 108 20.0 m² 1 1
Terrasse 109 20.0 m² 0 1

Fasader

Enebolig

Ukjent
Materiale
Tre
Taktype
Flatt tak
Vinduer
4
Dører
0
Synlige etasjer
1
Nordvest
Materiale
Tre
Taktype
Saltak
Vinduer
4
Dører
1
Balkonger
1
Synlige etasjer
2
Sydvest
Materiale
Tre
Taktype
Saltak
Takmat.
Tegl
Vinduer
4
Dører
1
Synlige etasjer
1
Sydøst
Materiale
Tre
Taktype
Saltak
Vinduer
2
Dører
1
Balkonger
1
Synlige etasjer
2
Nordøst
Materiale
Tre
Taktype
Saltak
Takmat.
Tegl
Vinduer
10
Dører
2
Synlige etasjer
2
Nord
Materiale
Tre
Taktype
Flatt tak
Vinduer
4
Dører
0
Synlige etasjer
1
Sør
Materiale
Tre
Taktype
Saltak
Vinduer
3
Dører
1
Balkonger
1
Synlige etasjer
1
Vest
Materiale
Tre
Taktype
Flatt tak
Vinduer
10
Dører
1
Balkonger
1
Synlige etasjer
2
Øst
Materiale
Tre
Taktype
Saltak
Vinduer
4
Dører
0
Synlige etasjer
1

Hendelser

10.04.2026 6/175 Bukkene Bruses vei 9 - Søknad om endring av gitt tillatelse
19.02.2026 6/175 Bukkene Bruses vei 9 - Tillatelse til tiltak i ett trinn for bruksendring og fasadeendring
16.02.2026 6/175 Bukkene Bruses vei 9 - Supplering av søknad
12.02.2026 6/175 Bukkene Bruses vei 9 - Ufullstendig søknad om bruksendring og fasadeendring
03.02.2026 6/175 Bukkene Bruses vei 9 - Søknad om tillatelse i ett trinn - Bruksendring, fasadeendring og ettergodkjenning