ChangeOfUse Ferdigattest Enebolig

Bruksendring med to soverom i kjeller, Buskerudveien 207

📍 Buskerudveien 207 , 3027 DRAMMEN

Nøkkelinfo

Sakstype
Bruksendring
Bygningstype
Enebolig
Bruksareal
242 m²
Boenheter
1
Kommune
Drammen
Fylke
Buskerud
Gnr / Bnr
117 / 159
Saksnummer
25/13519
Fase
Ferdigattest

Om byggesaken

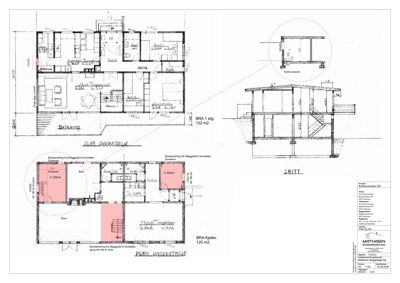
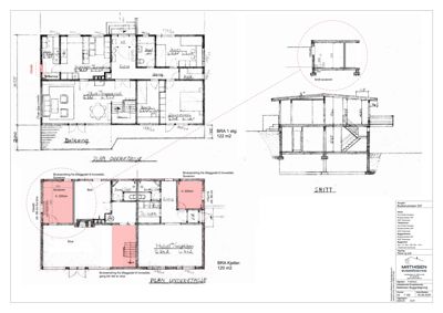
Bruksendring av kjeller i en enebolig på Buskerudveien 207, Drammen, fra tilleggsdel til hoveddel med etablering av to nye soverom. Skilleveggen mellom gang og kjellerstue er fjernet, og gangarealet innlemmes i stue. Det er også utført en mindre fasadeendring hvor en dør fra vaskerom fjernes og erstattes med et vindu. Terrengendring på vestsiden av kjelleren er gjort for å tilrettelegge for vindu til det nye soverommet. Totalt areal for kjeller er 120 m² og 122 m² for 1. etasje. Tiltaket er gjennomført med selvbyggeransvar og godkjent ferdigattest er gitt.

Produkter og materialer

Fasade Terrengendring

Antall: 1

Terrengendring på vestsiden av kjeller for å tilrettelegge for vindu til nytt soverom

Endring av terreng for å muliggjøre vindu i kjeller

Vinduer Fasadevindu

🧱 Tre

Antall: 1

Erstatning av dør fra vaskerom med vindu i kjeller

Nytt fasadevindu i kjeller som erstatning for fjernet dør

Gulv Gulvbelegg

Oppgradering av gulv i nye soverom i kjeller (antatt iht. byggteknisk forskrift)

Nytt gulv i soverom i kjeller

Mur Betongmur/terrengstøtte

🧱 Betong

Terrengtilpasning med mur/betongarbeider utført som selvbyggerarbeid

Støtte for terrengendring ved kjeller

Tømrer Innvendige vegger

🧱 Tre/stenderverk

Fjerning av skillevegg mellom gang og kjellerstue, innlemming av gang i stue

Endring av innvendig rominndeling i kjeller

Elektro Elektrisk installasjon

Elektrisk installasjon i nye soverom og stue i kjeller

Belysning og stikkontakter i nye rom

Grunnarbeid Terrengarbeid

Mindre terrengendringer utført i 2012, formelt innarbeidet i søknad

Terrengarbeid for drenering og tilrettelegging for vindu

Ventilasjon Ventilasjon i kjeller

Ventilasjon til nye soverom i kjeller (antatt iht. TEK17 krav)

Ventilasjon for oppholdsrom i kjeller

Plantegning

Enebolig 242.0 m²

Etasje 0 120.0 m²

Rom Areal Vinduer Dører
Stue 001 34.0 m² 2 2
Hybel/Kjøkken 002 34.0 m² 0 1
Soverom 003 12.0 m² 1 1
Bod 004 12.0 m² 0 1
Te-kjøk 005 12.0 m² 0 1
Entré 006 6.0 m² 0 1
Entre 007 0.0 m² 0 1
Bod 008 0.0 m² 0 1
Ved 009 0.0 m² 0 1
Bisp bod 010 0.0 m² 0 1

Etasje 1 122.0 m²

Rom Areal Vinduer Dører
Stue 101 35.1 m² 2 2
Kjøkken 102 18.0 m² 1 1
Entré 103 12.0 m² 0 2
Gang 104 12.0 m² 0 2
Barn 105 12.0 m² 0 1
Soverom 106 12.0 m² 1 1
Bad 107 6.0 m² 0 1
Vaskerom 108 6.0 m² 0 1
Barn 109 0.0 m² 0 1
Bade 110 0.0 m² 0 1

Fasader

Enebolig

Vest
Materiale
Tre
Taktype
Pulttak
Høyde
2.4 m
Mønehøyde
2.7 m
Vinduer
4
Dører
1
Synlige etasjer
1
Sør
Materiale
Tre
Taktype
Flatt tak
Høyde
2.4 m
Mønehøyde
2.7 m
Vinduer
6
Dører
2
Balkonger
1
Synlige etasjer
2
Nord
Materiale
Tre
Taktype
Flatt tak
Høyde
2.4 m
Mønehøyde
2.7 m
Vinduer
6
Dører
1
Synlige etasjer
1
Øst
Materiale
Tre
Taktype
Flatt tak
Høyde
2.4 m
Mønehøyde
2.7 m
Vinduer
2
Dører
1
Synlige etasjer
1

Hendelser

08.04.2026 Buskerudveien 207, ferdigattest for bruksendring fra tilleggsdel til hoveddel ferdigattest
07.04.2026 Buskerudveien 207 Søknad om ferdigattest 117/159 ferdigattest
27.03.2026 Buskerudveien 207, tillatelse til bruksendring fra tilleggsdel til hoveddel
18.02.2026 Buskerudveien 207, supplerende dokumentasjon
26.01.2026 Buskerudveien 207, vi trenger flere opplysninger for å behandle søknaden din søknad
23.01.2026 Buskerudveien 207 Supplering av søknad 117/159 søknad
08.01.2026 Buskerudveien 207, nabomerkad angående avstandserklæring
08.01.2026 Buskerudveien 207, angående avstandserklæring
07.01.2026 Buskerudveien 207, vi trenger flere opplysninger for å behandle søknaden din søknad
12.12.2025 Buskerudveien 207, søknad om dispensasjon dispensasjon
17.11.2025 Buskerudveien 207, svar på henvendelse om å trekke avstandserklæring
17.11.2025 Buskerudveien 207, trekker avstandserklæring
13.11.2025 Buskerudveien 207, vedr. avstandserklæring
10.11.2025 Buskerudveien 207, Henvendelse vedrørende avstandserklæring
04.11.2025 Buskerudveien 207, fristutsettelse til 12.12.2025
27.10.2025 Buskerudveien 207, henvendelse vedr avstandserklæring
19.09.2025 Buskerudveien 207, vi trenger flere opplysninger for å behandle søknaden din søknad
11.09.2025 Buskerudveien 207 Søknad om tillatelse i ett trinn 117/159 søknad
11.08.2025 Buskerudveien 207, fristutsettelse til 01.10.2025
11.08.2025 Buskerudveien 207, anmodning om fristutsettelse
16.06.2025 Buskerudveien 207, vi trenger flere opplysninger for å behandle søknaden din søknad
02.06.2025 Buskerudveien 207, supplerende dokumentasjon
25.04.2025 Buskerudveien 207, vi trenger flere opplysninger for å behandle søknaden din søknad
07.04.2025 Buskerudveien 207 Søknad om tillatelse til tiltak uten ansvarsrett 117/159 byggetillatelse