ChangeOfUse UnderBehandling Enebolig

Bruksendring og fasadeendring i enebolig, Evjegata 25A, Mjøndalen

📍 Evjegata 25A , 3050 MJØNDALEN

Nøkkelinfo

Sakstype
Bruksendring
Bygningstype
Enebolig
Bruksareal
115 m²
Boenheter
1
Kommune
Drammen
Fylke
Buskerud
Gnr / Bnr
223 / 250
Saksnummer
25/31944
Fase
Under behandling

Om byggesaken

Bruksendring av kjellerareal i en eksisterende enebolig på Evjegata 25A i Mjøndalen, hvor kjelleren på ca. 115 m² omgjøres fra tilleggsdel til hoveddel med flere soverom og oppholdsrom. Tiltaket inkluderer forstørrelse og utskifting av kjellervinduer for å tilfredsstille krav til dagslys og rømningsveier, samt etablering av lysgraver. Det gjøres ingen endringer i bebygd areal eller ny utvendig dør. Fasadeendringer omfatter utskifting av vinduer i kjellerfasaden med tre- og saltakskledd yttervegg. Det er søkt dispensasjon for byggegrense mot vassdrag, og tiltaket krever dokumentasjon av flomsikkerhet i henhold til TEK17. Det er to trapper i bygget, og fasadene har trepanel med saltak og tegl takmateriale.

Produkter og materialer

Elektro Elektrisk installasjon

Oppgradering av elektrisk anlegg i kjeller for varig opphold

Elektrisk installasjon i kjellerrom som skal tas i bruk som oppholdsrom

Vinduer Kjellervinduer med lysgrav

🧱 tre

Antall: 13

Større vinduer for bedre dagslys og rømningsvei, med lysgrav, i kjellerfasade

Utskifting og forstørrelse av eksisterende kjellervinduer for å oppnå godkjent varig opphold og rømningsvei

Maling Innvendig maling

Innvendig maling av kjellerrom etter oppgradering

Overflatebehandling av nye oppholdsrom i kjeller

Isolasjon Kjellerisolasjon

Isolasjon i kjellervegger og gulv for varig opphold

Isolasjon for å oppgradere kjeller til varig oppholdsrom

Grunnarbeid Lysgraver

Lysgraver til kjellervinduer for å sikre dagslys og rømningsvei

Etablering av lysgraver ved kjellervinduer

Fasade Trepanel fasade

🧱 tre

Trepanel på alle fasader, saltak med tegl takmateriale

Fasadeendring med utskifting av vinduer, opprettholdelse av trepanel og saltak

VVS Varme

Eksisterende varmekabler i gulv og veggvarme i ett rom i kjeller

Opprettholdelse og eventuell oppgradering av varme i kjellerrom

Trapper Innvendige trapper

Antall: 2

Endret plassering av intern trapp i kjeller og 1. etasje

Flytting av trapp i henhold til eksisterende faktisk plassering

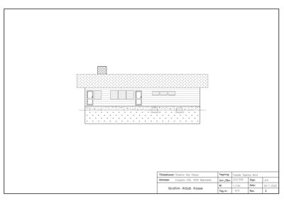
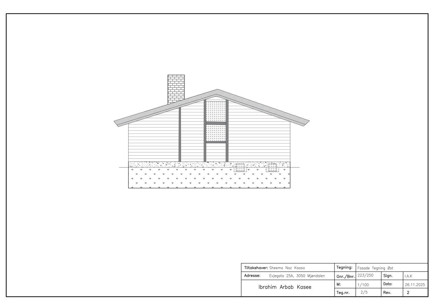
Fasader

Enebolig

Øst
Materiale
Tre
Taktype
Saltak
Høyde
2.5 m
Mønehøyde
4.5 m
Vinduer
2
Dører
0
Synlige etasjer
2
Sør
Materiale
Tre
Taktype
Saltak
Høyde
2.5 m
Mønehøyde
4.5 m
Vinduer
5
Dører
1
Synlige etasjer
1
Vest
Materiale
Tre
Taktype
Saltak
Høyde
2.5 m
Mønehøyde
4.5 m
Vinduer
1
Dører
1
Synlige etasjer
1
Nord
Materiale
Tre
Taktype
Saltak
Takmat.
Tegl
Høyde
2.5 m
Mønehøyde
4.5 m
Vinduer
6
Dører
1
Synlige etasjer
1

Hendelser

21.04.2026 Evjegata 25A, vi trenger flere opplysninger
10.03.2026 Evjegata 25A, komplettering av søknad
18.02.2026 Evjegata 25A, utsatt frist for innsendelse
17.02.2026 Evjegata 25A, ber om utsatt frist
06.01.2026 Evjegata 25A, utsatt frist for innsendelse
02.01.2026 Evjegata 25A, ber om forlengelse av frist
10.12.2025 Evjegata 25A, vi trenger flere opplysninger for å behandle søknaden din
08.12.2025 Evjegata 25A, vedr. offentlighet
08.12.2025 Evjegata 25A, plantening av kjeller
02.12.2025 Evjegata 25A, flere opplysninger, svar på mangelbrev
30.10.2025 Evjegata 25A, vi trenger flere opplysninger for å behandle søknaden din
01.09.2025 Evjegata 25A Søknad om tillatelse til tiltak uten ansvarsrett 223/250