ChangeOfUse Rammetillatelse Enebolig

Bruksendring i kjeller på Farmen nedre 5, Drammen

📍 Farmen nedre 5 , 3024 DRAMMEN

Nøkkelinfo

Sakstype
Bruksendring
Bygningstype
Enebolig
Bruksareal
68 m²
Boenheter
1
Kommune
Drammen
Fylke
Buskerud
Gnr / Bnr
116 / 775
Saksnummer
26/10496
Fase
Rammetillatelse

Om byggesaken

Bruksendring av kjellerareal i en enebolig på Farmen nedre 5 i Drammen. Opprinnelige boder på 27,5 m² er ombygget til soverom på 14-15 m² og en kjellerstue på 25 m². Kjelleretasjen på totalt 67,9 m² inneholder også tekniske rom og gangareal. Endringen innebærer at kjellerarealet går fra tilleggsdel til hoveddel med tilfredsstillende høyder og rømningsmuligheter. Fasaden er i tre med saltak, og bygget har to trapper. Det er ikke oppført nye bygningsdeler utvendig, men innvendig er det rommessige endringer og oppgradering av bruksfunksjon.

Produkter og materialer

Tømrer Innvendige vegger og himling

🧱 tre

Oppbygging av vegger og himling for soverom og kjellerstue

Tømrerarbeid for å ombygge boder til oppholdsrom

Gulv Gulv i kjeller

Oppgradering av gulv i kjeller for hoveddel standard

Gulvbelegg eller parkett tilpasset oppgradert kjellerrom

Ventilasjon Ventilasjon i kjeller

Ventilasjon tilpasset oppholdsrom i kjeller

Ventilasjon for soverom og kjellerstue i kjeller

Dører Innvendige dører i kjeller

Antall: 6

Dører til soverom, kjellerstue, tekniske rom og bod

Innvendige dører for romavgrensning i kjeller

Brannvern Røykvarsler og brannsikring

Brannsikring i henhold til TEK for hoveddel i kjeller

Installasjon av røykvarslere og eventuelle brannskiller

Isolasjon Isolasjon i kjellervegger og tak

Isolasjon for å oppnå krav til oppvarmet oppholdsrom

Isolasjon for vegger og tak i kjeller ved bruksendring

Elektro Elektrisk anlegg i kjeller

Elektrisk installasjon for belysning og stikkontakter i nye oppholdsrom

Oppgradering eller nyinstallasjon av elektrisk anlegg i kjeller

Vinduer Rømning vinduer i kjeller

🧱 ukjent

Antall: 5

Vinduer i kjellerstue og soverom markert som rømningsvinduer

Vinduer som tilfredsstiller krav til rømningsvei i kjeller

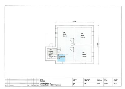
Plantegning

Enebolig 207.3 m²

Etasje 0 67.9 m²

Rom Areal Vinduer Dører
Gang 102 2.3 m² 0 1
Teknisk rom 103 3.4 m² 0 1
Sov 104 14.0 m² 1 1
Kjellerstue 105 25.0 m² 2 2
Teknisk rom 101 1.9 m² 0 1
Bod 106 27.5 m² 1 1

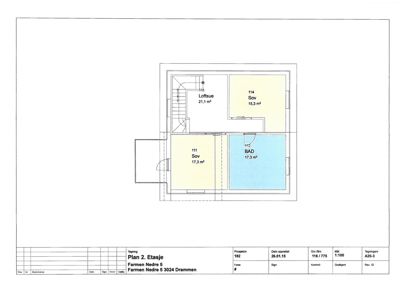
Etasje 1 85.7 m²

Rom Areal Vinduer Dører
Kjøkken/spisestue 107 24.4 m² 2 1
stue 108 17.8 m² 3 1
Sov 109 18.7 m² 2 1
gang 110 11.6 m² 0 2
BAD 116 2.9 m² 0 1

Etasje 2 53.7 m²

Rom Areal Vinduer Dører
Sov 111 17.3 m² 1 1
Sov 114 15.3 m² 1 1
Loftsue 115 21.1 m² 1 1
BAD 116 17.3 m² 0 1
BAD 112 17.3 m² 0 1

Fasader

Enebolig

Nord
Materiale
Tre
Taktype
Saltak
Vinduer
4
Dører
0
Synlige etasjer
2
Øst
Materiale
Tre
Taktype
Saltak
Vinduer
4
Dører
0
Synlige etasjer
2
Syd
Materiale
Tre
Taktype
Saltak
Vinduer
2
Dører
0
Synlige etasjer
2
Vest
Materiale
Tre
Taktype
Saltak
Vinduer
3
Dører
1
Synlige etasjer
2
Sør
Materiale
Tre
Taktype
Saltak
Vinduer
4
Dører
1
Balkonger
1
Synlige etasjer
2

Hendelser

21.04.2026 Farmen nedre 5, tillatelse til bruksendring fra tilleggsdel til hoveddel i kjeller
14.04.2026 Farmen nedre 5 Søknad om tillatelse til tiltak uten ansvarsrett 116/775